Fot. Lina Németh | Arch. Prodesi/Domesi

Drewniany domz panoramicznym tarasem

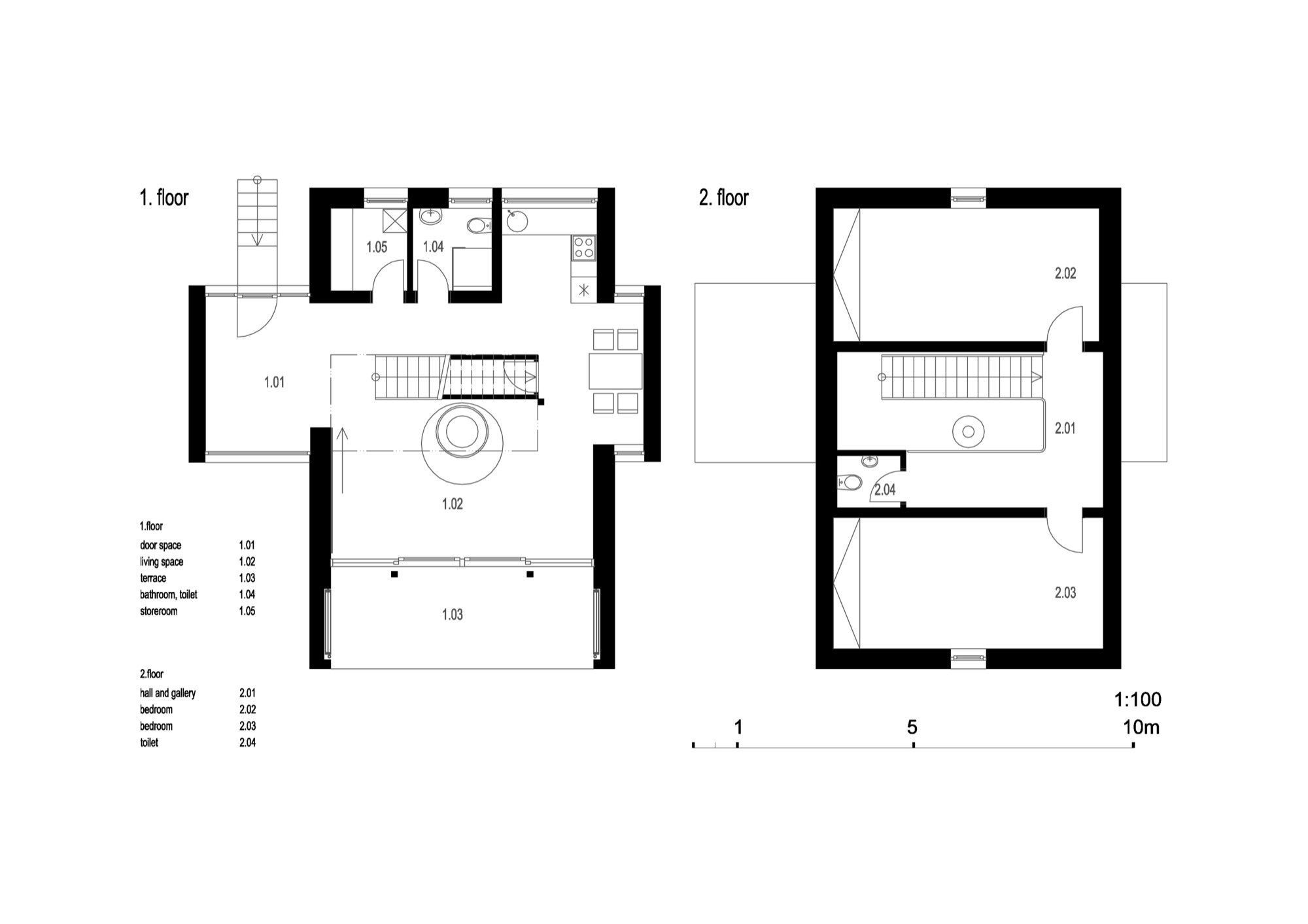
Ten współczesny dom z dwiema sypialniami znajduje się w Czechach i został zaprojektowany przez Pawła Horakina we współpracy z firmą Prodesi | Domesi. Budynek powstał na miejscu zniszczonej chaty, wykorzystując istniejące kamienne fundamenty, które zostały rozbudowane i włączone w nową konstrukcję. Drewniany szkielet budynku z elementami słupowo-ryglowymi, elewacja obłożona drewnem oraz dach pokryty podłużną blachą nadają bryle lekkości i harmonii z otoczeniem.

Fot. Lina Németh | Arch. Prodesi/Domesi

Wnętrze domu jest jasne i ciepłe dzięki dużym oknom sięgającym od podłogi po sufit, drewnianej podłodze i widocznym belkom stropowym. Przestrzenie są zorganizowane wokół centralnej klatki schodowej – na parterze dominuje salon z widokiem na ogród i wyjściem na duży osłonięty taras z panelami zamykającymi, a mniejsze pomieszczenia, w tym kuchnia, wykorzystują wysokość sufitu do dodatkowych schowków. Na piętrze znajdują się przestronne sypialnie, a całe założenie zostało ustawione na południe, aby maksymalnie wykorzystać światło dzienne i piękny widok na rzekę. Budowa trwała zaledwie trzy i pół miesiąca, a dom służy głównie jako weekendowy i letni wypoczynek dla rodziny.