Fot. Stefan Ivković | Arch. Modelart Arhitekti

Połączenie nowoczesnościz tradycją i naturą

„We wszystkim jest pęknięcie. By światło mogło przebić się…”
-Leonard Cohen

Fot. Stefan Ivković | Arch. Modelart Arhitekti

Największym wyzwaniem przy rekonstrukcji i powiększaniu tego starego, serbskiego domu oraz jednoczesnej przemianie go w domek idealny na wakacje było wykorzystanie jego największych zalet – otoczenia naturalnego i tego, które stworzył człowiek. Działka znajduje się w niezbyt zabudowanym miejscu, przy lokalnej drodze Smilovci – Protopopinci, u stóp góry Stara Planina, w pobliżu jeziora Smilovci.Istniejący w tym miejscu dom, choć był dobrze zachowany, nie spełniał oczekiwań klienta, więc musiał być zmieniony i powiększony. Poza zamianą starej konstrukcji dachu i powiększeniem budynku od tyłu, odnowiono także ogród, zarówno od strony wejścia na działkę, jak i w części tylnej.

Fot. Stefan Ivković | Arch. Modelart Arhitekti

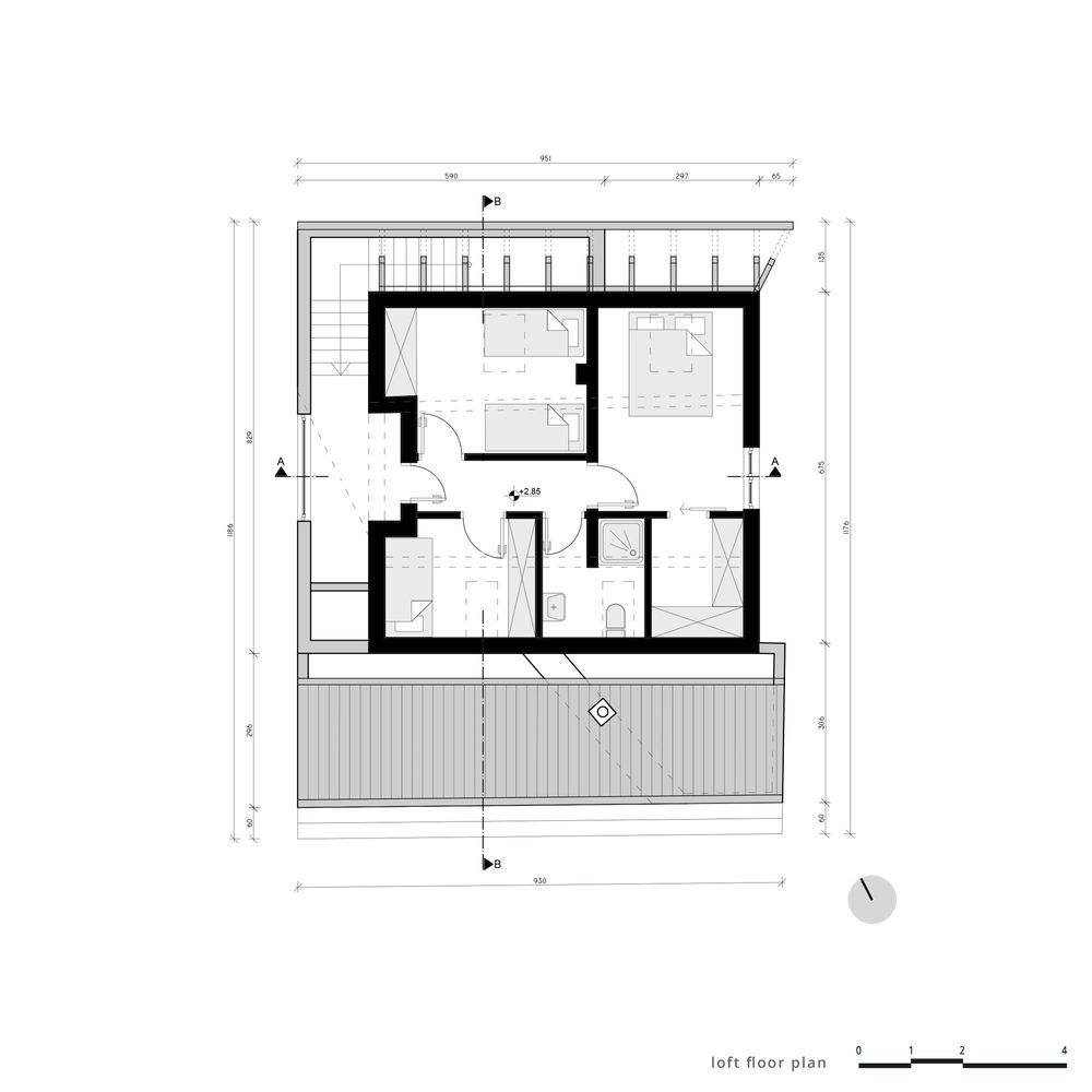
Funkcjonalnie dom został podzielony na dwa poziomy. Parter mieści salon, kuchnię z jadalnią oraz taras, a na strychu znajdują się trzy sypialnie i łazienka. Wszystko zaprojektowane zgodnie z uwielbianym przez właścicielki minimalizmem. Wejście do domu znajduje się po stronie północnej, a po stronie południowej istniejący dom powiększono i zakończono go tarasem, który tworzy przestrzeń przejściową między wnętrzem i ogrodem.

Fot. Stefan Ivković | Arch. Modelart Arhitekti

Elementy dobudowane na parterze zostały obłożone miejscowo pozyskiwanym kamieniem. Piętro wyższe częściowo obito deskami, co łączy dom z sąsiednimi budynkami, które zwykle są również obite drewnem.

Fot. Stefan Ivković | Arch. Modelart Arhitekti

Po stronie końcowej tarasu umieszczono przesuwne, perforowane panele, które chronią wnętrze przed słońcem. Panele zostały wykonane w oparciu o cyfrowy projekt i inspirowane są geometrycznymi motywami znanymi z ćilimu, tradycyjnego dywanu ze wschodniej Serbii. Dzięki otworom pojawia się w środku wyjątkowa gra światła i cienia, tworząc różne efekty świetlne na przestrzeniach wewnętrznych.