Fot. TAMÁS BATA | Arch. BARNA ARCHITECTS
  • Architekt

    BARNA ARCHITECTS
  • Fotograf

    TAMÁS BATA
  • Lokalizacja

    Dörgicse, Węgry

Minimalistyczna architekturaz widokiem na Balaton

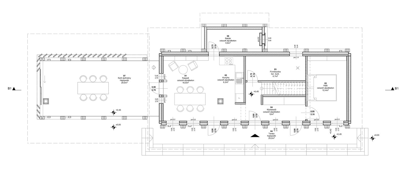
Podstawowym założeniem projektu było stworzenie pensjonatu, który harmonijnie wpisuje się w lokalny krajobraz regionu Balatonu. Głównym celem było połączenie nowoczesnej architektury z rodzimą atmosferą – osiągniętą dzięki zastosowaniu tradycyjnych materiałów i minimalistycznych, współczesnych form. Bryła budynku, oparta na drewnianej konstrukcji ramowej, nawiązuje do archetypicznych form wiejskiej zabudowy, przypominając nowoczesną stodołę, która z szacunkiem odnosi się do przeszłości, ale odpowiada na potrzeby współczesnych użytkowników. Przemyślana geometria oraz rytmiczne rozmieszczenie filarów nadają budynkowi spokojny, spójny charakter.

Fot. TAMÁS BATA | Arch. BARNA ARCHITECTS

Konstrukcja oparta na parami rozmieszczonych filarach (co 1,4 m) umożliwia zastosowanie dużych przeszkleń w elewacji frontowej, które otwierają wnętrze na krajobraz i pozwalają naturalnemu światłu swobodnie przenikać do środka. To rozwiązanie wzmacnia kontakt mieszkańców z otaczającą przyrodą i umożliwia płynne przenikanie się przestrzeni wewnętrznych z zewnętrznymi. Taras, stanowiący integralną część projektu, zaprojektowano w tym samym duchu – jako przedłużenie salonu i strefę wypoczynkową, która funkcjonuje jak mieszkalna przestrzeń na świeżym powietrzu.

Fot. TAMÁS BATA | Arch. BARNA ARCHITECTS

Cały projekt powstał w ścisłej współpracy z inwestorem i bazuje na lokalnych archetypach architektonicznych regionu Balatonu. Inspiracją była zarówno tradycja budownictwa węgierskiej wyżyny, jak i klasyczne idee architektury pierwotnej, jak choćby chata prymitywna według Laugiera. Projekt łączy w sobie elementy lokalności, minimalizmu i ekologicznej świadomości, uwzględniając surowe przepisy budowlane w obszarach chronionych. Efektem jest wyjątkowa, nowoczesna interpretacja domu wiejskiego – nowoczesna stodoła, która łączy funkcjonalność, estetykę i głęboki związek z miejscem.