Arch. Multitude Studio

Nowe życie domuz 1937 roku

W South Salem, w hrabstwie Westchester (stan Nowy Jork), architekt Nate Dalesio – założyciel pracowni Multitude Studio – stworzył dla siebie i swojej rodziny dom, który łączy prostotę, energooszczędność i odważne użycie nietypowych materiałów. Budynek powstał na fundamentach opuszczonego domu z 1937 roku, który z powodu zniszczeń musiał zostać niemal całkowicie rozebrany. Zachowano jedynie obrys, a nowe rozwiązania pozwoliły nie tylko odtworzyć przestrzeń mieszkalną, lecz także ją powiększyć.

Arch. Multitude Studio

Układ funkcjonalny i przestrzeń

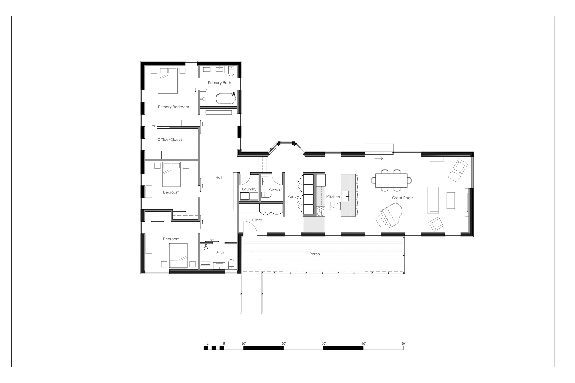
Nowy dom o powierzchni 232 m² został zaprojektowany w układzie litery T. Jedno ramię mieści strefę dzienną i kuchnię, drugie – trzy sypialnie i dwie łazienki. Z uwagi na pochyłość działki, wejście prowadzi przez ganek, do którego dochodzi się po schodach. Wnętrze otwiera wiatrołap z dużą zabudową i toaletą, oddzielony od kuchni blatem zapewniającym przejrzystość przestrzeni.

Wnętrza pełne światła

W środku królują białe ściany, szerokie deski z białego dębu oraz przestrzenie o otwartych, spadzistych sufitach. Wysokie, sklepione stropy sprawiają, że dom wydaje się większy, niż wskazuje jego powierzchnia, a liczne świetliki i przesuwne przeszklenia wprowadzają do środka naturalne światło przez cały dzień. Od strony ogrodu salon otwiera się na taras, tworząc płynne połączenie z otoczeniem.

Arch. Multitude Studio

Minimalistyczna estetyka z nutą tradycji

Dalesio inspirował się lokalną architekturą rolniczą – stodołami i prostymi budynkami gospodarczymi – jednak nadał całości bardziej współczesną, minimalistyczną formę. Zamiast starego, blaszanych dachów i drewnianych okładzin zastosował czarną blachę falistą oraz panele korkowe, które tworzą wyjątkowy kontrast wizualny, a jednocześnie spełniają praktyczną funkcję.

Korek – materiał przyszłości

Elewacja z korka, czyli sprasowanych płyt korkowych, pełni rolę warstwy wykończeniowej i izolacyjnej jednocześnie. Materiał ten jest lekki, odporny na wilgoć i pleśń, a przy tym w pełni nadaje się do recyklingu. W połączeniu z grubą izolacją dachu, ścian i podłóg oraz systemem szczelnych okien, dom spełnia wysokie standardy energooszczędności. Wszystko to udało się zrealizować w ramach budżetu 150 dolarów za stopę kwadratową.

Arch. Multitude Studio

Rodzinny dom z charakterem

Projekt pokazuje, że architektura tworzona z ograniczonych środków może być jednocześnie funkcjonalna, nowoczesna i przyjazna środowisku. Dom z korka Nate’a Dalesio to dowód, że prostota formy, naturalne materiały i świadome decyzje projektowe mogą stworzyć przestrzeń, która odpowiada potrzebom współczesnej rodziny, zachowując przy tym szacunek dla miejsca i jego historii.