Arch. Kristian Olesen
  • Architekt

    Kristian Olesen
  • Lokalizacja

    Aarhus, Dania

Kompaktowy domekw stylu nordyckim

Ten kompaktowy domek powstał w mieście Aarhus w Danii, w przepięknym rejonie w  pobliżu jeziora Brabrand. nowoczesną stodołę otaczają łąki znajdujące się przy jeziorze, a sama działka leży przy publicznej ścieżce spacerowej biegnącej wokół jeziora. Projekt domku przygotował Kristian Olesen, który inspirował się nordycką tradycją związaną z domkami powstającymi na działkach. Często były to małe chatki budowane samodzielnie z materiałów pochodzących z odzysku.

Arch. Kristian Olesen

Ten konkretny domek ulokowano na działce w taki sposób, by właściciele mogli cieszyć się stworzonym w sąsiedztwie słonecznym ogrodem, który łączy się z otaczającym go krajobrazem. Od strony południowej i zachodniej powstały tarasy, będące przedłużeniem salonu, który w dowolnej chwili można otworzyć na okoliczne krajobrazy. nowoczesna stodoła ma kompaktowy kształt. Zorganizowano ją w taki sposób, by idealnie wykorzystać ograniczoną przestrzeń całej działki. Uniesiono ją lekko na fundamentach, dzięki czemu mieszkańcy mają lepsze widoki i są lepiej chronieni na wypadek ulewnego deszczu.

Arch. Kristian Olesen

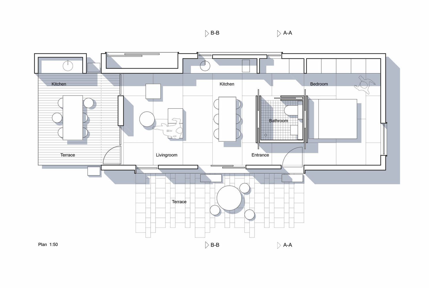
Wnętrze o powierzchni w sumie 50 metrów kwadratowych zorganizowano jako pojedynczą przestrzeń. Podzielono ją przez element centralny, który mieści łazienkę. Od strony zachodniej znajduje się salon z kuchnią, a od wschodu urządzono sypialnię. Cały domek można podzielić na cztery pomieszczenia, dzięki przesuwnym drzwiom znajdującym się po obu stronach elementu centralnego.

Arch. Kristian Olesen

Domek ma drewnianą konstrukcję obitą różnymi materiałami drewnianymi. Dach wykończono deską ułożoną na zakładkę, co inspirowane jest dawną tradycją nordyckich dachów drewnianych. Deski przechodzą aż na powierzchnię ścian zewnętrznych, co nadaje całości wrażenia spójnego i spokojnego.

Arch. Kristian Olesen

Ściany szczytowe wykończono od zewnątrz deskami ułożonymi pionowo, by kontrastować z deskami na dachu i fasadzie. Framugi okien wykonano z drewna daglezji. Pomiędzy oknami elewacja znowu się zmienia, ponieważ wykończona jest ona ułożonym pionowo, surowym drewnem. Deski na dachu i fasadzie zaimpregnowano smołą drzewną, dzięki czemu odcinają się one wyraźnie czarną barwą.