Fot. Pancho Gallardo | Arch. Studio Granda

Renowacja starej szopy na traktori stajni

Jeszcze do niedawna działała tu farma wraz z budynkami, które powstały na początku lat 80-tych, by służyć rolnikom i hodowanym przez nich zwierzętom. Jednak z czasem islandzkie farmy zaczęły zwiększać swoje zyski zamieniając takie budynki w miejsca noclegowe dla turystów. Po takiej przemianie zwykle często traciły one swój rustykalny urok. Obserwacje tego rodzaju zjawisk stały się głównym motorem do stworzenia projektu Drangar.

Fot. Pancho Gallardo | Arch. Studio Granda

Architekci z firmy Studio Granda przebudowali dwa budynki istniejące na tej farmie. Jednym z nich jest dawna szopa na traktor, która była nieocieplona, podłogą była ubita ziemia, a dach był blaszany. Jednak jej wymiary nadawały się świetnie do stworzenia czterech pokoi gościnnych. Dwa z nich wyposażono w małe aneksy kuchenne i wspólny teren, w którym można odpocząć lub zjeść. Drzwi w centralnym korytarzu pozwalają podzielić nowoczesną stodołę na dwie osobne części lub wykorzystywać go wspólnie.

Fot. Pancho Gallardo | Arch. Studio Granda

Materiały zastosowane w tym wnętrzu bazują na korzeniach budynku. Nie brakuje tam oryginalnych, surowych ścian z betonu oraz nowej podłogi z lastryko. Ściany przestrzeni wspólnej są białe, a sufity i stolarkę wykonano z pięknego dębu. Wystrój pokoi gościnnych oddaje hołd dawnej funkcji budynku. Nie brakuje zatem w nich elementów nawiązujących do przeszłości. Szopę ocieplono od strony zewnętrznej, a nową elewację wykonano z miedzianej blachy falistej. Rozmieszczenie okien naśladuje oryginalną konstrukcję. Duże drzwi wymieniono na przeszklone drzwi przesuwne, które łączą przestrzeń wspólną z dużym tarasem.

Fot. Pancho Gallardo | Arch. Studio Granda

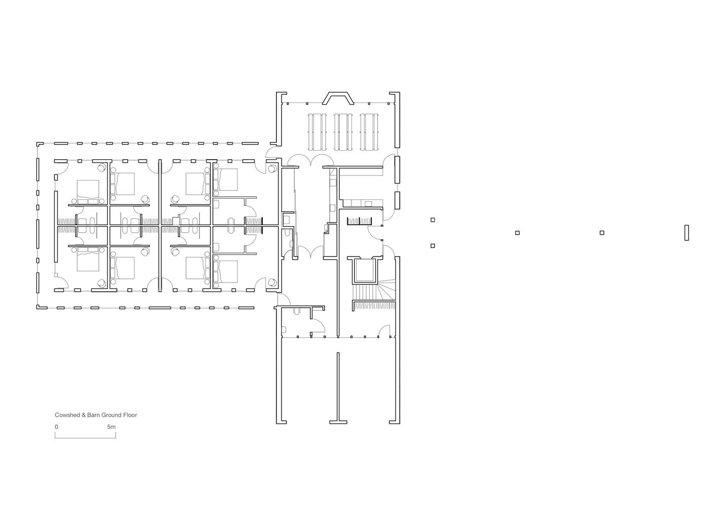
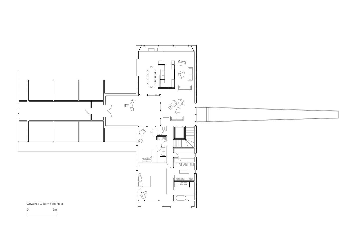
Drugim budynkiem, który poddano gruntownej renowacji, była stodoła i stajnia, w której trzymano krowy. Zastosowany tu beton tak znacznie zmienił się z upływem czasu, że wszystkim zależało na tym, by zachować jego urok. Architekci przyjęli w tym przypadku trzy zasadnicze funkcje dla tej części projektu. W fundamentach powstała wspólna kuchnia oraz toalety dla turystów. W części stajni stworzono osiem pokoi gościnnych z pomieszczeniem wspólnym, kuchnią i recepcją. Dach w tym miejscu podniesiono tak, by zmieściło się pod nim mieszkanie właścicieli z dużym tarasem i nowym mostem prowadzącym na cypel. Wykorzystano podobne materiały jak w szopie na traktory, ale tym razem od zewnątrz wyeksponowano betonową konstrukcję. Także tu wnętrze ociepla dębowa stolarka, którą zestawiono ze stalą nierdzewną i monochromatycznym marmurem.