Arch. 2by4-architects B.V.

Nowoczesna stodoław wydmach

Architektonicznym celem projektu Dune Villa było stworzenie zrównoważonego domu wakacyjnego, który w pełni harmonizuje z wyjątkowym krajobrazem wydm West aan Zee. Architekci stanęli przed niełatwym wyzwaniem: zaprojektować budynek, który nie tylko będzie komfortowy i funkcjonalny, ale także maksymalnie wykorzysta walory widokowe otoczenia oraz subtelnie wpisze się w krajobraz bez jego dominowania.

Arch. 2by4-architects B.V.

W efekcie powstała nowoczesna stodoła – elegancka, kameralna willa, która łączy w sobie minimalizm z maksymalnym otwarciem na naturę. Od strony północnej budynek wydaje się zamknięty – otwory okienne są ograniczone, a elewacja bardziej zwarta. Z kolei południowa strona rezydencji niemal całkowicie otwiera się na otoczenie – panoramiczne przeszklenia i przemyślany układ pomieszczeń pozwalają w pełni cieszyć się krajobrazem, światłem i ruchem wydm.

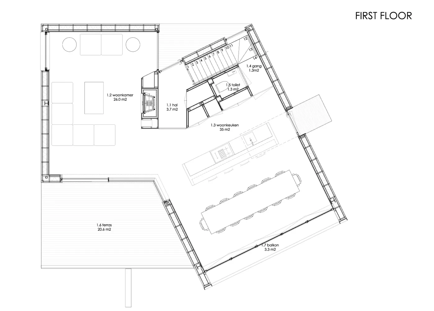
Dom został osadzony w wydmie, co miało ogromny wpływ na jego formę i układ funkcjonalny. Parter, częściowo zagłębiony w naturalnym ukształtowaniu terenu, wprowadza do wnętrz delikatne, rozproszone światło i zapewnia przyjemną termikę. Znajdują się tam prywatne przestrzenie: sypialnie, łazienki oraz strefy relaksu, których dyskretna atmosfera sprzyja odpoczynkowi. Górna kondygnacja, na której zaplanowano główne wejście, kuchnię, jadalnię i przestronny salon, jest bardziej otwarta i jasna. Z salonu prowadzi wyjście na zewnętrzny taras, z którego roztacza się spektakularny widok na wydmy, niebo i otaczającą naturę.

Duże przeszklenia zapewniają optymalną ilość światła naturalnego przez cały dzień, a różnorodne perspektywy wizualne nadają wnętrzom zmienność i głębię. Przemyślane rozplanowanie tarasów na różnych wysokościach zapewnia mieszkańcom intymność oraz możliwość korzystania z zewnętrznej przestrzeni w zależności od potrzeb – relaks, spotkania towarzyskie czy kontemplacja przyrody.

Arch. 2by4-architects B.V.

Dune Villa została zaprojektowana w duchu architektury zrównoważonej. To dom zeroemisyjny, którego funkcjonowanie nie pozostawia śladu węglowego. Zastosowanie pomp ciepła, doskonałej izolacji oraz strategiczne zakopanie parteru pozwala na ograniczenie strat ciepła i zwiększenie efektywności energetycznej budynku. Co więcej, na sąsiednim budynku, również należącym do inwestora, zainstalowano instalację fotowoltaiczną, co pozwoliło na osiągnięcie zerowego bilansu energetycznego netto.

Fasada Dune Villa pokryta została naturalnymi materiałami pochodzenia biologicznego. Z czasem, pod wpływem warunków atmosferycznych, ich wygląd ulegnie naturalnemu starzeniu, co sprawi, że dom będzie jeszcze lepiej wpisywał się w krajobraz wydmowy. Ta nowoczesna stodoła to przykład świadomej architektury, która nie tylko zachwyca formą i funkcją, ale także stanowi wzór ekologicznego projektowania w zgodzie z naturą.