Fot. Tia Borgsmidt | Arch. Sigurd Larsen

Energooszczędność, naturalne materiałyi jasne wnętrza

Architekt Sigurd Larsen zaprojektował THE GREEN HOUSE dla duńskiej firmy Frikøbing, która planuje realizację osiedla domów jednorodzinnych w pobliżu Kopenhagi. Projekt powstał w oparciu o rygorystyczne założenia dotyczące zrównoważonego budownictwa, ekologicznych materiałów, energooszczędnych rozwiązań oraz ograniczenia zużycia energii. THE GREEN HOUSE jest pierwszym budynkiem przewidzianym do realizacji i wyróżnia się prostą, racjonalną bryłą, przywodzącą na myśl ideę, jaką reprezentuje nowoczesna stodoła w skandynawskim, minimalistycznym wydaniu. Klarowny układ funkcjonalny sprzyja niskim kosztom budowy, a jednocześnie zapewnia komfortowe i przestronne wnętrze.

Fot. Tia Borgsmidt | Arch. Sigurd Larsen

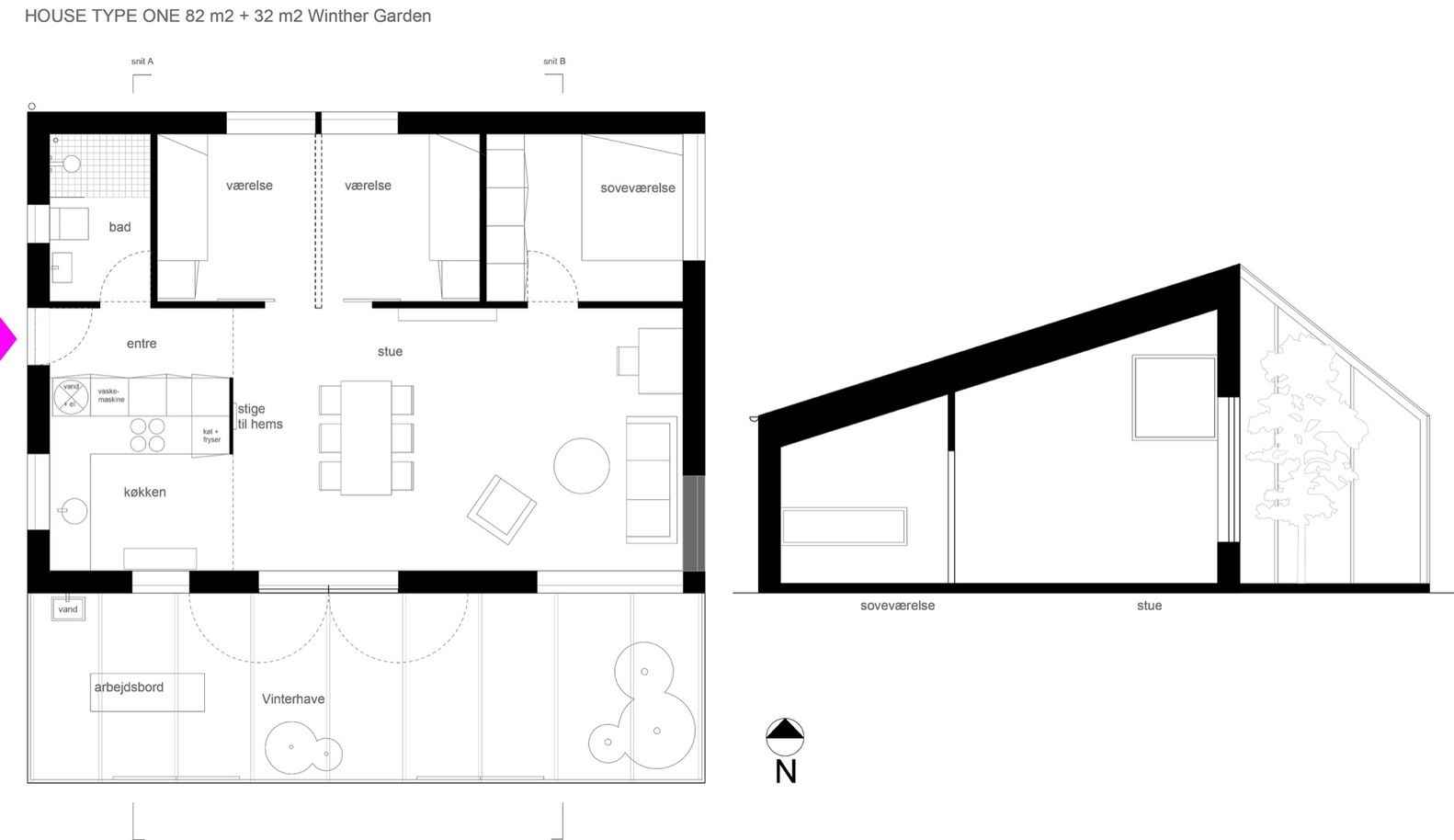
Dom zaprojektowano z wyraźnym podziałem stref funkcjonalnych – wszystkie sypialnie oraz łazienka zlokalizowane są po północnej, bardziej prywatnej stronie budynku, natomiast salon i jadalnia otwierają się na osłoniętą przestrzeń zewnętrzną od południa. Kluczowym elementem projektu jest ogród zimowy o powierzchni 32 m², który stanowi bufor termiczny i główne źródło naturalnego światła. Jednospadowy dach oraz duże przeszklenia umożliwiają maksymalne doświetlenie wnętrz, a projekt przewiduje także możliwość wydzielenia dodatkowego pokoju dla dzieci, co zwiększa elastyczność układu.

Fot. Tia Borgsmidt | Arch. Sigurd Larsen

Nad kuchnią zaprojektowano antresolę, która wykorzystuje wysokość wnętrza i pełni funkcję przytulnego pokoju kinowego – idealnego na długie, zimowe wieczory. Ciepło słoneczne gromadzone w ciągu dnia w ogrodzie zimowym stopniowo przenika do wnętrza po zmroku, działając jak naturalny magazyn energii. Budynek wyposażono w system naturalnej wentylacji oraz trzywarstwowe okna, pozwalające regulować temperaturę i dopływ świeżego powietrza. Wnętrze w całości wykończono jasną sklejką z modrzewia, a elewację wykonano z pionowych, surowych paneli modrzewiowych, które z czasem nabiorą srebrzystej patyny, harmonijnie wpisując dom w otaczający krajobraz.