Fot. Pinggera Martin | Arch. Modunita Architects

Nowoczesna interpretacjazabytkowej zabudowy

Diethelm House, zlokalizowany w gminie Felsberg w kantonie Graubünden (Gryzonia) w Szwajcarii, to wyjątkowy przykład, jak może wyglądać udana renowacja stodoły i adaptacja zabytkowej zabudowy wiejskiej do współczesnych potrzeb mieszkaniowych. Kompleks składa się z historycznego domu mieszkalnego i dawnej stodoły na siano, które zostały poddane przemyślanej modernizacji. Zachowano oryginalne elementy, takie jak kamienny mur i więźba dachowa, uzupełniając je o nowoczesne materiały: beton licowy, modrzewiowe deski, ciemne drewno i blachę miedzianą.

Fot. Pinggera Martin | Arch. Modunita Architects

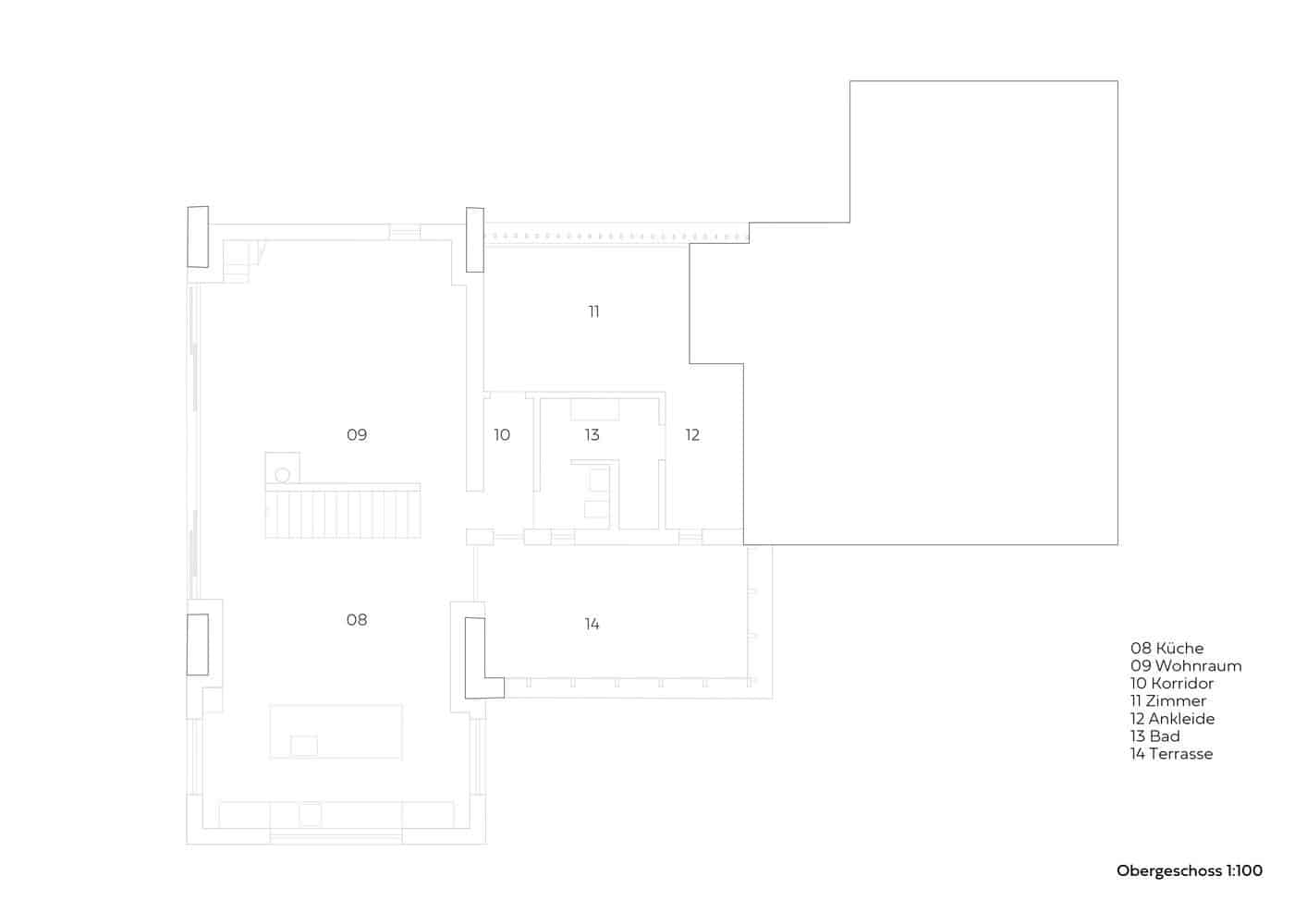
Zabytkowa stodola została przekształcona w funkcjonalną przestrzeń mieszkalną z dwoma kondygnacjami. Na pierwszym piętrze znajduje się pokój gościnny, łazienka i pomieszczenie techniczne, natomiast wyżej zaprojektowano część dzienną z kuchnią, sypialnię z łazienką oraz garderobą. Antresola nad salonem i zadaszony taras w nowej, drewnianej części pośredniej podkreślają nowoczesny charakter budynku, zachowując jednocześnie jego wiejski, alpejski klimat. Całość stanowi przykład architektury, która szanuje historię, ale odpowiada na współczesne potrzeby.

Fot. Pinggera Martin | Arch. Modunita Architects

Diethelm House to dziś dwie niezależne jednostki mieszkalne: odrestaurowana stodola z nową częścią pośrednią i pozostawiony bez ingerencji dom mieszkalny. Kluczową rolę w założeniu odgrywa ogród, wokół którego zorganizowano wszystkie części budynku, tworząc spójną i harmonijną przestrzeń do życia. Projekt stanowi inspirację dla wszystkich, którzy planują przekształcenie stodoły na dom, łącząc nowoczesną architekturę drewnianą z szacunkiem dla dziedzictwa.