Arch. Drew + Tarah MacAlmon

Dom, pracownia ipensjonat w jednym

Przez ostatnie osiem lat Tarah i Drew MacAlmon z Kolorado zajmowali się renowacją domów i odkrywaniem na nowo potencjału istniejących przestrzeni. Ich najnowsze dzieło to The Lofthouse w Black Forest, autorski projekt od podstaw, który łączy funkcję pensjonatu i miejsca pracy. Położony w malowniczej okolicy, wśród sosen ponderosa i surowego krajobrazu Colorado Springs, budynek wyróżnia się prostą formą i bliskością natury. Tarah podkreśla, że otoczenie wprowadza odwiedzających w inny stan umysłu – w przestrzeń, gdzie natura wyznacza rytm życia i pracy. To przykład, jak nowoczesna stodoła może łączyć prywatność, funkcjonalność i estetykę w jednym projekcie.

Arch. Drew + Tarah MacAlmon

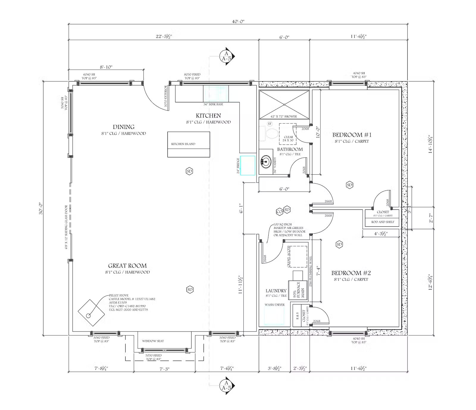
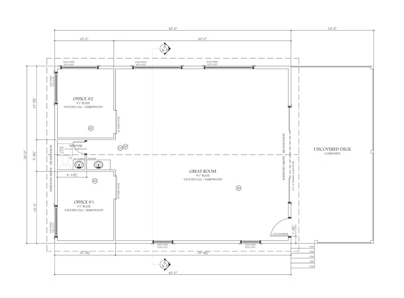
The Lofthouse został podzielony na dwie niezależne strefy: The Loft – przestrzeń pracy i kreatywności oraz The House – część gościnną wynajmowaną przez Airbnb. Oddzielne wejścia, przemyślane ścieżki i brak wewnętrznego połączenia gwarantują prywatność i wygodę użytkowników. Wnętrza wyróżnia skandynawski design połączony z rustykalnymi detalami: bielone drewno, dąb, sosna i skórzane dodatki. W salonie uwagę przyciąga pływające siedzisko przy oknie z litego białego dębu, a w kuchni – półki z drewna sosnowego zawieszone na skórzanych paskach. Przeszklenia, wysokie sufity i 16-metrowe przesuwne drzwi otwierają dom na otaczający las, tworząc płynne przejście między wnętrzem a naturą.

Arch. Drew + Tarah MacAlmon

Na górnym poziomie mieści się The Loft – wielofunkcyjna przestrzeń przeznaczona do pracy twórczej, warsztatów czy nagrań wideo. Na poddaszu znajdują się prywatne biura Drew i Tarah, umożliwiające im wygodną i niezależną pracę z domu. The House z kolei zapewnia gościom komfort w postaci dwóch sypialni, łazienki i otwartego salonu z kuchnią. Cały projekt celebruje organiczne materiały i prostą architekturę – od lnianych tekstyliów i białego dębu po sosnowe tarasy. Dzięki własnej pracy MacAlmonowie ograniczyli koszty budowy do 275 000 USD, tworząc przestrzeń, która stała się nie tylko domem, ale także kreatywnym centrum i miejscem spotkań.