Fot. Grant Harder | Arch. Saul Zaik, Jessica Helgerson Interior Design, Emily Kudsen Leland
  • Architekt

    Saul Zaik
  • Fotograf

    Grant Harder
  • Lokalizacja

    Portland, Stany Zjednoczone

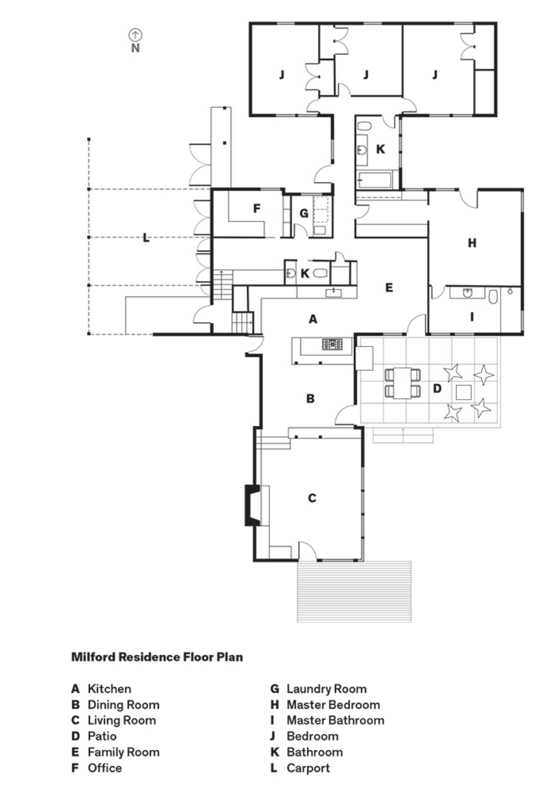
Renowacjamodernistycznego domu z lat 50.

Kiedy w połowie XX wieku w światowej architekturze rozkwitał modernizm, architekci na Wybrzeżu Północno-Zachodnim Ameryki stworzyli regionalną wersję tego stylu. Pomieszali szklane przezroczystości, z których słynęli Mies van der Rohe i Richard Neutra, z elementami z naturalnego drewna i dwuspadowymi dachami.

Fot. Grant Harder | Arch. Saul Zaik, Jessica Helgerson Interior Design, Emily Kudsen Leland

Czerpiąc z takiego wzornictwa, w 1956 roku architekt Saul Zaik stworzył dom o nazwie „Feldman House”, który miał niski, dwuspadowy dach oraz okna od podłogi aż po sufit. Z czasem jednak oryginalny projekt przeszedł wiele modyfikacji. Nagle okazało się, że na środku pokoju dziennego stoi belka, a sufity w łazience znajdują się wyżej niż w sypialni głównej. W takim właśnie stanie dom zastali Ty i Kelly Milford. Zaprosili do współpracy projektantkę wnętrz Jessicę Helgerson oraz projektantkę Emily Kudsen Leland. O projekt ogrodu zadbała natomiast firma Lilyvilla Gardens.

Fot. Grant Harder | Arch. Saul Zaik, Jessica Helgerson Interior Design, Emily Kudsen Leland

„Chcieliśmy przywrócić temu miejscu choć częściowo wygląd z projektu Saula, który został tak mocno zmieniony w tym domu” wspomina Ty Milford. „Nie chcieliśmy wracać dokładnie do pierwotnej kuchni i łazienek. Chcieliśmy stworzyć spójny dom, w którym w każdym miejscu wszystko będzie do siebie pasowało.”

Fot. Grant Harder | Arch. Saul Zaik, Jessica Helgerson Interior Design, Emily Kudsen Leland

Po rozległej renowacji, nadzorowanej przez firmę Jessica Helgerson Interior Design, państwo Milfordowie wraz z kilkuletnimi synami Adamem i Milanem mogą cieszyć się z pierwotnej wizji Zaika: połączenia przestrzeni wewnętrznej z zewnętrzną oraz przytulnych, choć otwartych pomieszczeń. „Dom miał kilka cudownych detali, ale nie brakowało też rzeczy problematycznych” – wspomina Jessica Helgerson. „Naszym celem było stworzenie takiego projektu, by wyglądał, jakbyśmy tam niczego nie zrobili. Dom miał wyglądać autentycznie – na miarę swej ery.”  Często więc padało pytanie: „Co zrobiłby Saul?”

Fot. Grant Harder | Arch. Saul Zaik, Jessica Helgerson Interior Design, Emily Kudsen Leland

Na szczęście to pytanie wciąż można było zadać samemu twórcy pierwotnego projektu. Starszy architekt przyjechał do domu podczas jego modernizacji, by odpowiedzieć choć na część pytań i wesprzeć całą przebudowę. „Moje pokolenie architektów to weterani II wojny światowej” – wspominał Zaik, który w wieku 87 lat nadal pracuje jako architekt. „Wtedy budowaliśmy po prostu pudełka z masą okien, ale eksperymentowaliśmy ze sposobami połączenia przestrzeni wewnętrznej z zewnętrzną.”