Fot. Ewout Huibers | Arch. i29

Zrównoważona pływającawioska w Amsterdamie

Floating Home autorstwa i29 Architects to część innowacyjnej pływającej wioski Schoonschip w Amsterdamie, która składa się z 46 samowystarczalnych domów. Celem tego projektu jest stworzenie najbardziej ekologicznej i zrównoważonej pływającej społeczności w Europie. Schoonschip to osiedle, które powstało w jednej z najszybciej rozwijających się części Amsterdamu. Wykorzystuje nieużywany kanał i przekształca go w nowoczesną, ekologiczną dzielnicę. Domy na wodzie działają w pełnej harmonii z naturą, wykorzystując odnawialne źródła energii i maksymalizując recykling wody oraz odpadów.

Fot. Ewout Huibers | Arch. i29

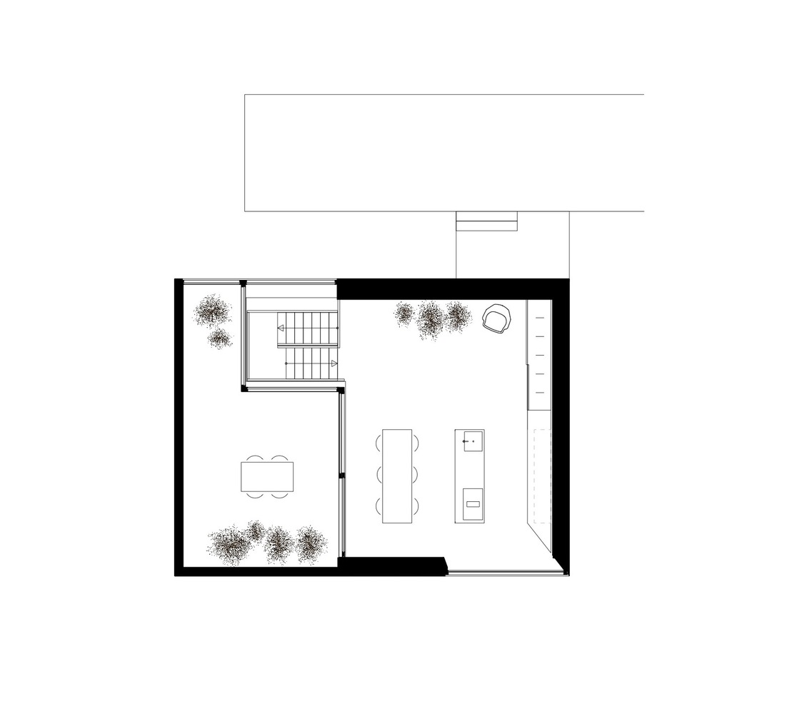
Projekt Floating Home to przykład nowoczesnej architektury, która łączy przestronność z minimalistycznym designem. Pływający dom ma spadzisty dach z unikalnym kątem, który optymalizuje przestrzeń wewnątrz, a jego forma idealnie komponuje się z otoczeniem. Trzy poziomy oraz dwupoziomowy taras nad wodą zapewniają komfort mieszkania w zrównoważonym stylu życia. Wszystkie domy w pływającej wiosce korzystają z systemu Grenton Smart Home, który inteligentnie zarządza energią, wodą i odpadami. Dzięki temu każdy dom jest w pełni samowystarczalny, efektywnie wykorzystując odnawialne źródła energii, a mieszkańcy mają pełną kontrolę nad zużyciem zasobów.

Fot. Ewout Huibers | Arch. i29

Floating Home to nowoczesna alternatywa dla tradycyjnych domów, która łączy wysoką jakość życia z ekologicznymi rozwiązaniami. Dzięki innowacyjnym technologiom i indywidualnym projektom architektonicznym, pływające domy oferują komfort w pełnej zgodzie z naturą.