Fot. Sheri Haby Architects | Arch. Lisbeth Grosmann

Odnowiony dom edwardiańskiz zachowanym ogrodem

Gable House to odrestaurowany dom edwardiański z drewna, zlokalizowany w malowniczym Sandringham – zaledwie kilka kroków od stacji kolejowej, plaży i lokalnych sklepów. W odpowiedzi na typowe problemy rozbudowy z lat ubiegłych, architekci dokonali inteligentnej modernizacji, której celem było nie powiększenie metrażu, a zwiększenie komfortu życia i efektywności przestrzeni.

Fot. Sheri Haby Architects | Arch. Lisbeth Grosmann

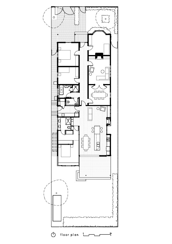
Dom, o powierzchni 207 m², został przebudowany tak, by nowa przestrzeń mieszkalna lepiej współpracowała z ogrodem i otaczającym środowiskiem. Klient zależało na lepszej orientacji względem światła słonecznego, poprawie prywatności w głównej sypialni oraz stworzeniu otwartego, jasnego wnętrza, bez rezygnacji z przestrzeni ogrodowej. To projekt, w którym styl nowoczesnej stodoły wprowadza współczesną architekturę do klasycznego edwardiańskiego kontekstu.

Fot. Sheri Haby Architects | Arch. Lisbeth Grosmann

Z tyłu domu dodano jedynie minimalny aneks, który mieści nowoczesną kuchnię, strefę dzienną i nową główną sypialnię. Dwa dwuspadowe dachy – jeden nad salonem, drugi nad sypialnią – wprowadzają elementy charakterystyczne dla nowoczesnej stodoły, jednocześnie podnosząc sufity i optycznie powiększając wnętrza. Efekt? Otwarta, pełna światła przestrzeń z harmonijnym połączeniem wnętrza z ogrodem.

Fot. Sheri Haby Architects | Arch. Lisbeth Grosmann

Kuchnię i salon odwrócono względem poprzedniego układu, aby otworzyć je na nowy taras. Ten z kolei osłania drewniana pergola stanowiąca naturalne przedłużenie dwuspadowego dachu, idealna na letnie wieczory. Przesuwne szklane drzwi pozwalają połączyć wnętrze z zewnętrzem, tworząc półotwartą przestrzeń dzienną. Przebudowa uwzględniła także układ łazienki i wejścia do głównej sypialni, by zapewnić prywatność i logiczny przepływ przestrzeni.