Fot. Derek Swalwell | Arch. Austin Maynard Architects

Całkowitaautonomiczność i elektryczność

Garden House, wysokowydajna, zaawansowana technologicznie oaza śródmiejska, ilustruje przyszłość zrównoważonej energii – zelektryfikowanych domów zasilanych słońcem, zasilających wspólną sieć energetyczną.

Fot. Derek Swalwell | Arch. Austin Maynard Architects

Właściciele przyszli z bardzo szczegółowym i konkretnym briefem. Chcieli zrównoważonego, nowoczesnego domu rodzinnego, który z czasem będzie się zmieniał i dostosowywał. Mieli fantastyczny i nietypowy blok. Od strony ulicy stał zniszczony, jednofrontowy domek z dobudówką z lat 80. XX wieku. Właściciele poprosili architektów, abyś wyszli poza schematy kwadratowego domu, zaoszczędzili jak najwięcej ogrodu i zbudowali wielofunkcyjny i zrównoważony dom.

Fot. Derek Swalwell | Arch. Austin Maynard Architects

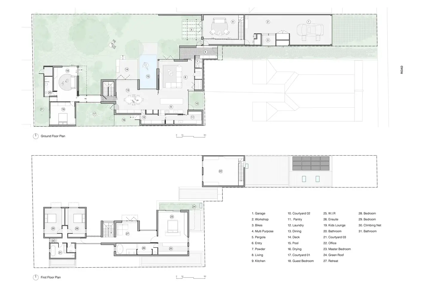
Garden House to zupełnie nieoczekiwany, ekologiczny dom rodzinny. Z widoku ulicy prosty garaż przypomina dom w całości. Ładny domek pokryty białym gontem z idealnym dwuspadowym dachem. Przejdź bocznym alejką, a główne drzwi wejściowe otworzą się, odsłaniając znacznie większą posiadłość ukrytą w środku. Właściciele chcieli domu, który będzie w stanie regularnie przyjmować dziesiątki osób, miejsca do dorastania dla trójki ich dzieci i wydzielonego biura. Nie chcieli jednak wrażenia dużego domu. Zamiast tego większość domu podzielono na cztery odrębne elementy, które wyglądają jak oddzielne budynki. Połączono je korytarzami ze szkła lustrzanego, które odzwierciedlają ogród.

Garaż i warsztat wychodzą na ulicę, z tyłu znajduje się wielofunkcyjny pokój do rozmów, a na górze biuro. Salon/jadalnia/kuchnia (z ukrytą spiżarnią i pralnią) wychodzą na ogród. Główna sypialnia ma część wypoczynkową z „otwartym balkonem” i łazienkę. Dla dzieci natomiast przygotowano wydzieloną część z trzema sypialniami, dwiema łazienkami i salą telewizyjną. Wewnątrz znajdują się ukryte drzwi umożliwiające otwieranie lub zamykanie przestrzeni. Duże otwory łączą wnętrze z ogrodem.

Fot. Derek Swalwell | Arch. Austin Maynard Architects

Garden House zaprojektowano tak, aby funkcjonował poza siecią. Dom jest całkowicie autonomiczny, całkowicie elektryczny, bez podłączenia do sieci gazowej. Ciepła woda, ogrzewanie i chłodzenie pomieszczeń, ogrzewanie wodne i ogrzewanie basenu. Wszystko to dostarczają wysoce wydajne pompy ciepła. Gotowanie odbywa się na płytach indukcyjnych i piekarnikach elektrycznych. Rodzinny samochód elektryczny jest również w całości zasilany przez dom.