Fot. Aiste Rakauskaite | Arch. Studio Abacaxi

Wielofunkcyjna przestrzeńdo pracy i relaksu

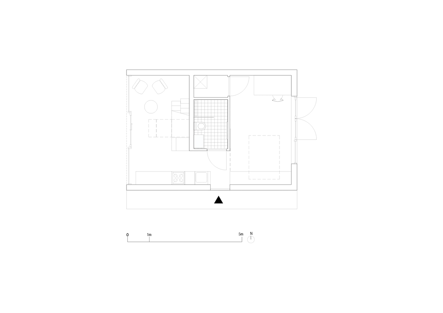
Praca w domu może być wyzwaniem, szczególnie gdy w pobliżu znajdują się małe dzieci. Dlatego młoda, kreatywna para poprosiła Studio Abacaxi o zaprojektowanie Studia Ogrodowego, w którym mogliby pracować i przyjmować gości. Połączenie pracy i życia zaowocowało wielofunkcyjną strukturą, w której zintegrowane meble zaspokajają różne potrzeby.

Fot. Aiste Rakauskaite | Arch. Studio Abacaxi

W strukturze mieszczą się dwie różne przestrzenie do pracy, w których mogłyby odbywać się ewentualne spotkania z klientami i współpracownikami. Dlatego też studio podzielono na dwie główne przestrzenie. Logistycznie te dwie przestrzenie mogą funkcjonować oddzielnie, z kuchnią i łazienką jako centralnym rdzeniem. Wykorzystywane do przyjmowania gości, studio zamienia się w salon, sypialnię i poddasze sypialne.

Fot. Aiste Rakauskaite | Arch. Studio Abacaxi

Decyzja o stworzeniu zintegrowanego, minimalistycznego wnętrza została podyktowana chęcią różnorodności funkcji i ograniczoną dostępną przestrzenią. Tworząc całe wnętrze ze sklejki brzozowej, w małych przestrzeniach można było uzyskać subtelną i spokojną atmosferę, pozostawiając jednocześnie miejsce na personalizację. Naprzemienne schody i składane łóżko to zintegrowane rozwiązania oszczędzające miejsce.

Fot. Aiste Rakauskaite | Arch. Studio Abacaxi

Główną konstrukcją jest konstrukcja drewniana na płycie betonowej, wybrana ze względu na jej trwałość i efektywność. Drewniana fasada z dużą szklaną fasadą z przesuwanymi drzwiami wtapia studio w otaczający go ogród i tworzy połączenie pomiędzy wnętrzem i zewnętrzem. Właściciele lub goście mogą cieszyć się wieczornym słońcem, mając jednocześnie wizualne połączenie z ogrodem.