Fot. Rory Gardiner | Arch. Pandolfini Architects

Nowoczesna adaptacjaz wyjątkowym designem

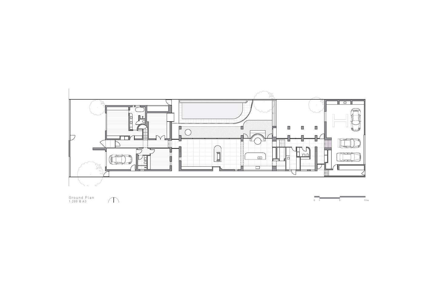
Glen Iris House zbudowany w Melbourne, to nowoczesny dom, który łączy surową materialność i formy architektoniczne, tworząc przestronną, zróżnicowaną kompozycję. Złożony z trzech pawilonów, dom wznosi się na długim, prostokątnym terenie, z których każdy z nich ma swoją unikalną funkcję. Stodołowa konstrukcja stanowi główną przestrzeń życiową, która została wypełniona ceglanymi formami, obejmującymi sypialnie z przodu budynku i warsztat samochodowy z tyłu. Przeszklone łączniki łączą pawilony, podkreślając różnice materiałowe i formalne, a także tworząc wrażenie podróży w trakcie przemieszczania się po posesji.

Fot. Rory Gardiner | Arch. Pandolfini Architects

Fasada Glen Iris House jest ozdobiona patynowanym miedzianym ekranem, który reinterpretując ogrodzenia, przyciąga wzrok i wprowadza dom w interakcję z przestrzenią uliczną. Miedziany ekran odsunięty od granicy posesji, tworzy przestronną, zieloną granicę z ulicą. Powyżej ekranu, ceglany bryłowy wspornik pierwszego piętra wystaje ponad ogrodzenie, ukazując główne wejście i wskazując na materiały użyte wewnątrz. Terakotowe cegły ułożone pionowo i pod kątem 45 stopni nawiązują do dachów sąsiednich domów, tworząc dynamiczne tło, na którym światło tańczy w rytm otaczających drzew.

Fot. Rory Gardiner | Arch. Pandolfini Architects

W kontrast do ceglanej elewacji pawilonu sypialnego, główna przestrzeń życiowa przypomina odsłonięty szkielet, gdzie betonowe żebra tworzą solidną strukturę. Te betony wznoszą główne ściany i tworzą wyraźny zewnętrzny zarys domu. Trwałe materiały w przestrzeniach wnętrz, takie jak trawertyn, amerykański dąb i polerowane ściany gipsowe, wprowadzają równocześnie ulgę i kontrast do surowego betonu. Pawilon mieszkalny, zorientowany na północ, posiada przeszklone ściany, które pozwalają na naturalne oświetlenie oraz widok na ogród i basen. Okna otwierane z obu stron pawilonu umożliwiają doskonałą wentylację krzyżową, zapewniając komfort użytkowania.

Fot. Rory Gardiner | Arch. Pandolfini Architects

Glen Iris House nie jest tylko budynkiem; to dom ekologiczny, który łączy nowoczesne technologie z naturalnym krajobrazem. Otoczenie zostało wkomponowane w plan budowy, a integracja roślinności z przestrzenią życiową jest wyjątkowo staranna. Skrzynki na rośliny, precyzyjnie zaplanowane cięcia w formie i dobrze dobrane otwory w elewacji tworzą silny dialog z ogrodem. Ekologiczne podejście do budowy zapewnia niską konserwację domu oraz jego długowieczność, co dodatkowo podkreśla naturalne starzenie się materiałów.

Fot. Rory Gardiner | Arch. Pandolfini Architects

Prostota kompozycji, śmiałe użycie materiałów i precyzyjne detale to cechy, które definiują Glen Iris House. Budynek stanowi nowoczesny rzeźbiarski dodatek do eklektycznego krajobrazu ulicy. Jego abstrakcyjna fasada niewiele zdradza na temat przestrzeni wewnętrznych, które skrywają różne funkcjonalne przestrzenie łączone przez wspólną formę i materiał. Pomimo swojej nowoczesności, budynek z łatwością wpasowuje się w otaczającą go architekturę, pozostając w dialogu z sąsiednimi strukturami.