Arch. Risa Boyer Architecture

Dom z lat 50.w zalesionej przestrzeni

Dom z lat 50., usytuowany na dużej, zalesionej działce, przeszedł gruntowną przebudowę, stając się nowoczesnym, przestronnym domem rodzinnym, który zachowuje głęboką więź z historią i otaczającą naturą. Projekt przebudowy miał na celu stworzenie harmonijnego połączenia z przepięknym krajobrazem, w który dom jest wkomponowany. Dzięki zastosowaniu nowoczesnych rozwiązań architektonicznych, nowy dom zapewnia doskonałe połączenie z naturą, zachowując jednocześnie historyczny charakter budynku.

Arch. Risa Boyer Architecture

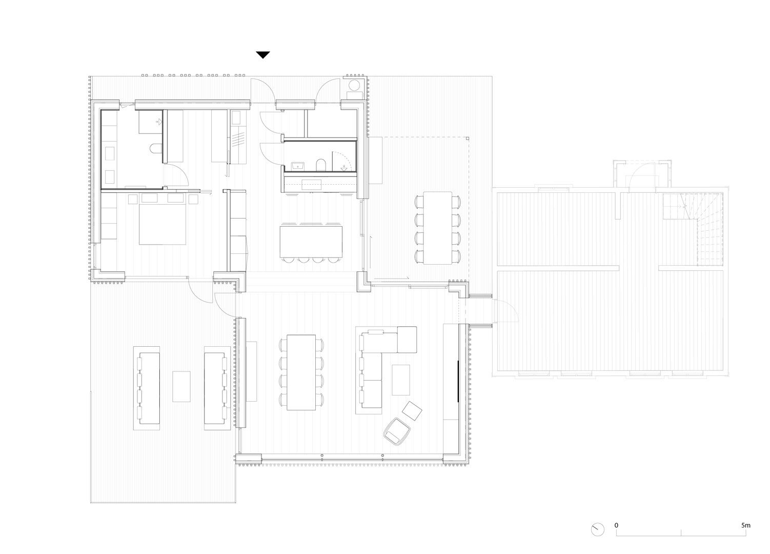
Wnętrze domu zostało otwarte, aby stwarzać poczucie przestronności i płynnego przejścia między przestrzeniami. Szczególną uwagę zwrócono na stworzenie efektu otwartej przestrzeni, łącząc salon z jadalnią za pomocą szerokich, prawie 8-metrowych przesuwanych drzwi, które prowadzą na zadaszone patio. Patio to stało się sercem domu na świeżym powietrzu – idealnym miejscem do wypoczynku i spotkań z rodziną oraz przyjaciółmi. Ceglany kominek zewnętrzny dodaje ciepła i uroku, a jednocześnie jest funkcjonalnym elementem, który umożliwia korzystanie z przestrzeni zewnętrznej przez cały rok.

Arch. Risa Boyer Architecture

Projekt przebudowy obejmował również dobudowanie dwóch nowych budynków gospodarczych, które znajdują się pod ochroną dużych, dojrzałych drzew. Jednym z tych budynków jest warsztat, który zapewnia przestrzeń do pracy, a drugi to pensjonat, idealny do gościny. Te nowe konstrukcje zwiększają funkcjonalność przestrzeni, jednocześnie nawiązując do estetyki i charakteru istniejącego domu.

Arch. Risa Boyer Architecture

Całość jest przykładem nowoczesnej architektury, która łączy w sobie tradycyjne materiały, jak drewno i cegła, z nowoczesnymi rozwiązaniami. Przebudowa nie tylko poprawia funkcjonalność domu, ale także wprowadza go w zgodzie z naturalnym otoczeniem, tworząc przestrzeń, która jest zarówno nowoczesna, jak i pełna ciepła oraz przytulności. Zastosowane materiały, takie jak drewno, nadają budynkowi ciepły, naturalny charakter, który z czasem zyska patynę, podkreślając związek z naturą.

Arch. Risa Boyer Architecture

To projekt, który może być uznany za przykład nowoczesnej stodoły, łączącej wygodę życia współczesnego z szacunkiem dla natury i historii. Dodatkowo, nowoczesna konstrukcja budynków i ich odpowiednia integracja z krajobrazem sprawiają, że dom jest doskonałym przykładem harmonijnego połączenia tradycji z nowoczesnym designem.