Arch. Huus og Heim Arkitektur

Dom inspirowany tradycyjnąarchitekturą norweską

Gunnar’s House to wyjątkowy dom z drewna zlokalizowany w gęstym lesie pomiędzy terenami Os i doliny Østerdalen w Norwegii. Projekt powstał z potrzeby maksymalnego poszanowania otaczającej natury – klient chciał stworzyć dom w lesie, który nie naruszy krajobrazu, lecz będzie jego integralną częścią. Zastosowano tradycyjną konstrukcję drewnianą, osadzoną na planie kratownicy 3×3 metry. Ze względu na południowe nachylenie terenu oraz chęć „wtopienia” domu w las, bryłę budynku częściowo wysunięto poza linie fundamentów, co nadaje jej lekkości i oryginalności.

Arch. Huus og Heim Arkitektur

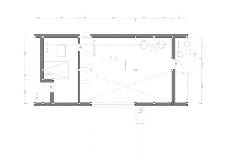
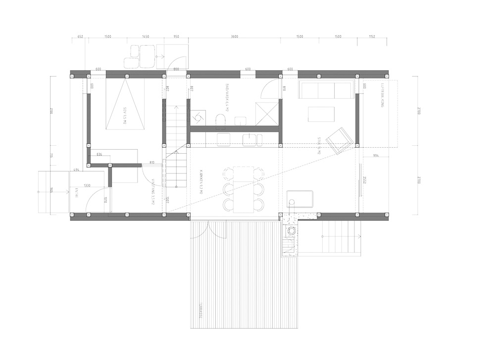
Układ funkcjonalny domu został podporządkowany konstrukcji kratowej, co pozwoliło stworzyć w pełni komfortowe wnętrza: salon z kuchnią, łazienkę, sypialnie, a także antresolę pełniącą funkcję przestrzeni wypoczynkowej. Wysokie przeszklenia po stronie południowej i zachodniej zapewniają maksymalne nasłonecznienie i ekspozycję na naturalne widoki. Z kolei wschodnia fasada została wzbogacona o pionowe, wąskie okna rozciągające się na wysokość kilku kondygnacji – dzięki temu użytkownicy mogą podziwiać drzewa od korzeni po korony, co wzmacnia kontakt z naturą.

Arch. Huus og Heim Arkitektur

Fasada wykonana z nieimpregnowanej sosny doskonale sprawdza się w suchym klimacie, z czasem nabierając naturalnej patyny. Dom posiada także zadaszoną przestrzeń zewnętrzną inspirowaną norweskim budownictwem wiejskim – taras ten działa jako przedłużenie salonu, zapewniając miejsce do relaksu na świeżym powietrzu o każdej porze roku. Gunnar’s House to przykład nowoczesnego podejścia do projektowania z poszanowaniem dla tradycji, lokalnych materiałów i środowiska naturalnego.