Fot. Francesca lóvene | Arch. Heim Balp Architekten

Renowacja kompleksu rolniczego nacentrum sztuki i zrównoważonego życia

Gutshof Güldenhof to fascynujący projekt, który łączy architekturę, sztukę i naturę, zrealizowany przez studio Heim Balp Architekten w Berlinie. Projekt został stworzony we współpracy z urodzonym w Wietnamie duńskim artystą konceptualnym Danh Vo. Zlokalizowany w wiejskim miasteczku Stechlin w Brandenburgii, niedaleko Berlina, kompleks ma na celu przekształcenie opuszczonego kompleksu rolniczego w dynamiczne centrum sztuki, zrównoważonego życia i interakcji społecznych.

Fot. Gillian Hayes | Arch. Brown + Brown

Heim Balp Architekten podjął wyzwanie stworzenia przestrzeni, która odzwierciedla zarówno pracownię artystyczną, jak i rozumienie przestrzeni jako miejsca do życia i wspólnej interakcji. Zespół architektoniczny dostosował istniejące budynki, w tym dawne stajnie i stodoły, które zachowały swoją historyczną strukturę z XVIII wieku, tworząc jednocześnie wielofunkcyjną przestrzeń łączącą obiekty mieszkalne, kulturalne i robocze. Powstało zrównoważone środowisko, w którym mogą funkcjonować nawet 20-osobowe grupy artystów i ich współpracowników.

Fot. Francesca lóvene | Arch. Heim Balp Architekten

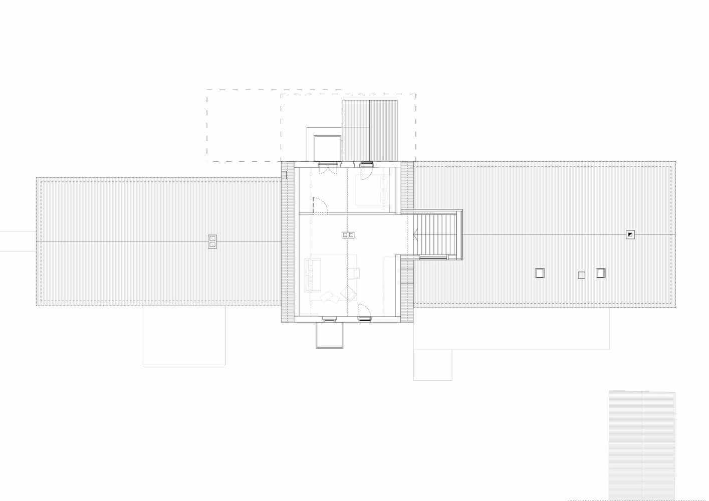
W ramach realizacji projektu zespół architektoniczny przeprowadził szereg interwencji, przekształcając dawne budynki rolnicze w nowoczesne, funkcjonalne przestrzenie. Kluczowym elementem jest trzypiętrowy budynek o mieszanym przeznaczeniu, który przed renowacją pełnił funkcję rezydencji dla robotników rolnych. Jego całkowicie zaniedbaną strukturę przeprojektowano, zachowując jedynie ściany, natomiast dach i fasady zostały całkowicie przebudowane, wykorzystując konfekcjonowany metal, typowy dla wiejskich konstrukcji XX wieku. Fasada została przemalowana na czarno, podkreślając nowoczesne interwencje w przestrzeni, co jest charakterystycznym podejściem Heima Balpa do renowacji – koncentrując się na eksponowaniu nowych elementów, a nie ich ukrywaniu.

Fot. Francesca lóvene | Arch. Heim Balp Architekten

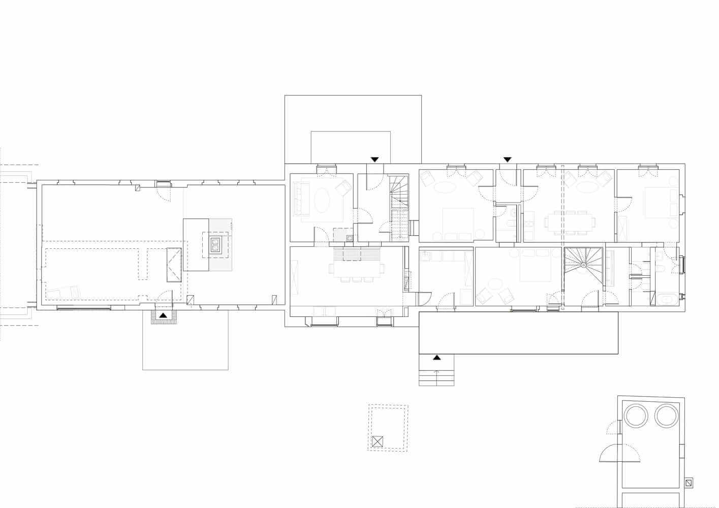
W samym sercu kompleksu znajduje się kuchnia – miejsce, gdzie mieszkańcy codziennie spotykają się, aby gotować i jeść. Przylegające do niej przestrzenie, takie jak pralnia czy pomieszczenia wejściowe, zostały zaprojektowane w taki sposób, aby tworzyć jednolitą przestrzeń, łączącą wnętrza zewnętrznymi obiektami. W zachodnim skrzydle budynku rozebrano drugie piętro, tworząc przestronną pracownię z wysokim sufitem. W centralnym punkcie znajduje się tradycyjny piec o wymiarach 4x5 metrów, używany do podgrzewania wody, ogrzewania domu oraz jako miejsce odpoczynku. Wnętrze odzwierciedla podejście Vo do sztuki, wypełniając przestrzeń świadomymi elementami, takimi jak rośliny, dywany czy przedmioty, które mają swoją historię.

Fot. Francesca lóvene | Arch. Heim Balp Architekten

Wschodnia i zachodnia stodoła (w tym "nowoczesna stodoła") stanowią istotne elementy kompleksu. Wschodnia stodoła została przekształcona w magazyn i archiwum dzieł sztuki, zachowując oryginalną strukturę z kamienia i cegły, z kontrolowaną wilgotnością, aby przechować prace artysty. Na pierwszym piętrze tej budowli znajduje się przestrzeń wystawiennicza, gotowa na organizację wystaw i instalacji artystycznych. Zachodnia stodoła pozostaje w stanie nienaruszonym, pełniąc rolę magazynu drewna i metalu, wykorzystywanego w warsztatach.

Fot. Francesca lóvene | Arch. Heim Balp Architekten

Na końcu kompleksu znajduje się North Stables – przestrzeń dedykowana zrównoważonemu rolnictwu i ogrodnictwu. Z zachowaniem tylko zewnętrznych ścian, budynek został przekształcony w szklarnię wewnętrzną, z nowymi drewnianymi panelami i półprzezroczystymi elementami, co pozwala na produkcję roślin w sposób ekologiczny i zrównoważony.

Fot. Francesca lóvene | Arch. Heim Balp Architekten

Gutshof Güldenhof jest przestrzenią, w której sztuka, historia, natura i społeczność współistnieją, tworząc niepowtarzalne środowisko do życia i pracy. Dzięki architektonicznym interwencjom i zrównoważonemu podejściu, kompleks stał się miejscem, w którym artysta i jego zespół mogą tworzyć, wystawiać i żyć w zgodzie z naturą, zachowując jednocześnie szacunek dla tradycji i historii tego miejsca.