Fot. Adolf Bereuter | Arch. Bernardo Bader Architects

Ekologiczny projektw sercu Vorarlberg

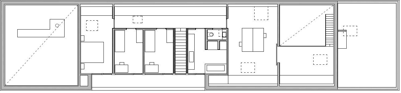
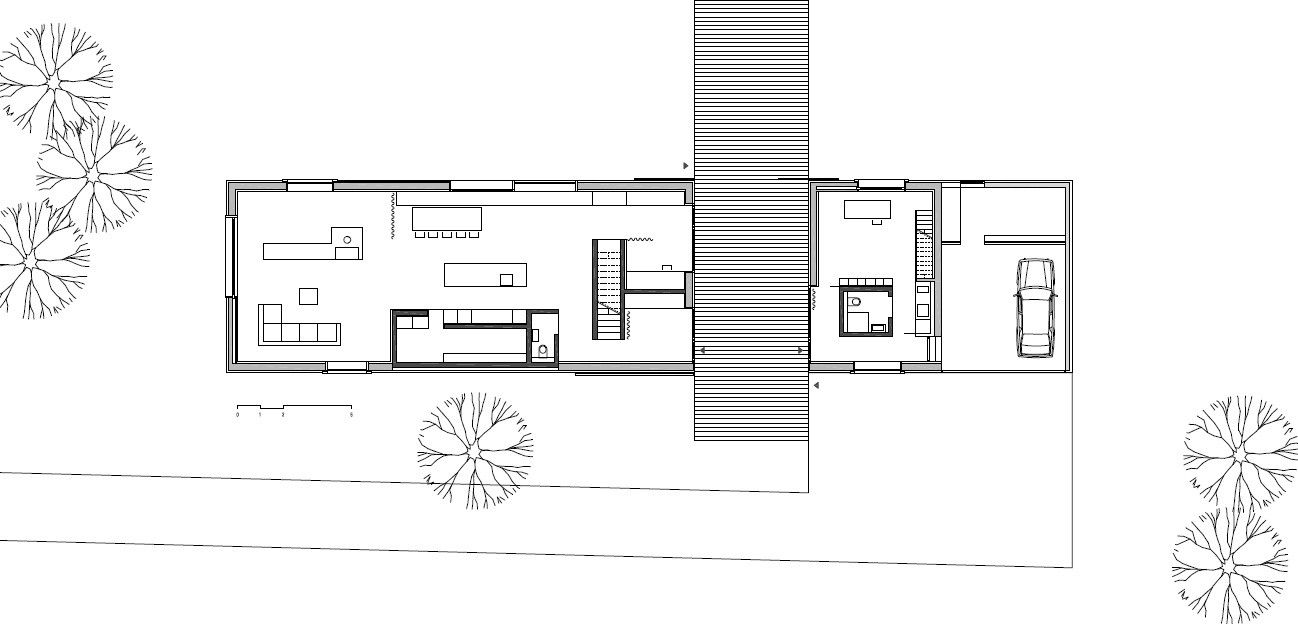
Firma Bernardo Bader Architects wykorzystała lokalnie pozyskiwane drewno świerku, jodły i wiązu, by wykończyć w środku i na zewnątrz ekologiczny dom. nowoczesna stodoła stoi w Vorarlberg w Austrii, a projekt bazuje na tradycyjnych domach, jakie można znaleźć w rejonie Bregenz. To dwupiętrowy dom na prostym, prostokątnym planie ze stromym, dwuspadowym dachem, stojący na drewnianym tarasie.Austriackie studio architektoniczne wykorzystało 60 drzew, by wyprodukować całe drewno, które miało być wykorzystane w tym domu z ograniczeniem drewnianych odpadów do minimum. Drewno wykorzystano nie tylko na ścianach, ale też na podłogach i do produkcji drzwi oraz niektórych mebli.

Fot. Adolf Bereuter | Arch. Bernardo Bader Architects

Konstrukcja budynku jest betonowa, co widać w niektórych miejscach oraz na sufitach. Odsłonięty beton przełamuje ciepło drewnianych powierzchni. Pomieszczenia dzienne oraz jadalnia zajmują największą część parteru, a piec opalany drewnem wprowadza bardziej wiejską, ciepłą atmosferę. Po drugiej stronie „tarasu” znajduje się domowe biuro, które sąsiaduje z garażem na dwa samochody. Sypialnie oraz pokój zabaw dla dzieci zorganizowano na piętrze.