Arch. Modersohn & Freiesleben Architekten Partnerschaft mbB

Renowacja, która zdobyłanagrodę architektoniczną

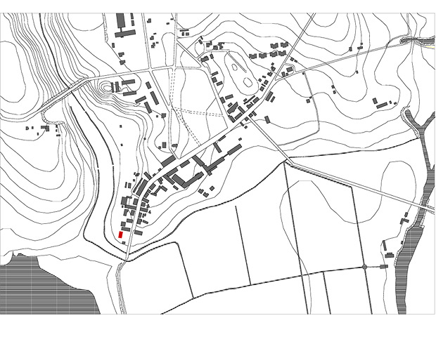
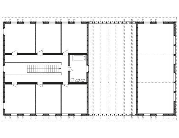
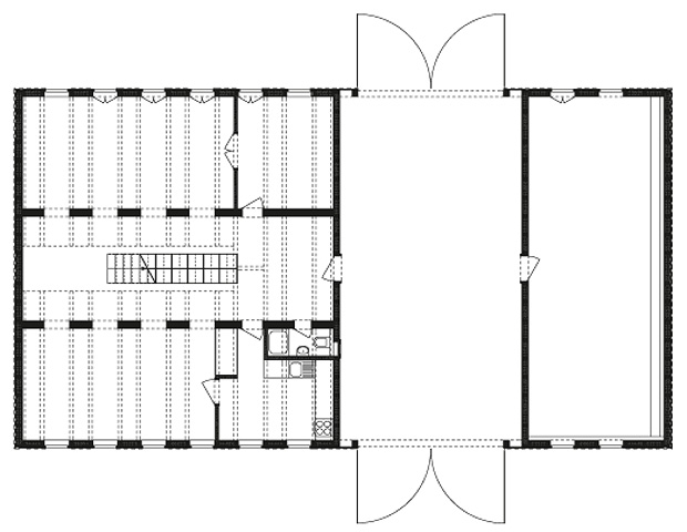
Haus S.B. to przykład, jak tradycyjna stodoła może stać się inspirującą przestrzenią mieszkalną. Renowacja tej wyjątkowej nowoczesnej stodoły miała miejsce na przełomie tysiąclecia – w latach 1998–2000 – i została zrealizowana przez berlińską pracownię Modersohn & Freiesleben Architekten Partnerschaft mbB. Obiekt położony w Brandenburgii, o powierzchni 270 m², został przekształcony z dawnego budynku gospodarczego w funkcjonalny i estetyczny dom mieszkalny.

Arch. Modersohn & Freiesleben Architekten Partnerschaft mbB

Za inwestycją stał prywatny inwestor, który postawił na nowoczesną architekturę wiejską, łączącą w sobie zrównoważone budownictwo, poszanowanie dla tradycji i innowacyjne podejście do projektowania przestrzeni. W 2003 roku projekt Haus S.B. otrzymał prestiżową Brandenburską Nagrodę Architektoniczną, co potwierdza jego wyjątkową jakość i ponadczasową wartość.

Arch. Modersohn & Freiesleben Architekten Partnerschaft mbB

Pracownia Modersohn & Freiesleben słynie z projektów, które powstają w ścisłej współpracy z klientem. Każdy budynek to odpowiedź na konkretne potrzeby inwestora, charakter miejsca i lokalny kontekst. Ich filozofia opiera się na odpowiedzialnym projektowaniu, które łączy estetykę, funkcjonalność i trwałość.

Arch. Modersohn & Freiesleben Architekten Partnerschaft mbB

Haus S.B. to doskonały przykład, jak dzięki wizji architektów i świadomemu podejściu inwestora, można stworzyć nowoczesną stodołę – przestrzeń, która nie tylko służy codziennemu życiu, ale także opowiada historię miejsca i harmonijnie wpisuje się w otoczenie. Projekt ten to hołd dla tradycji w nowoczesnym wydaniu – przykład zrównoważonej i świadomej architektury wiejskiej XXI wieku.