Fot. Andrés García | Arch. Casalvolone Arquitectura

Architektura wharmonii z naturą

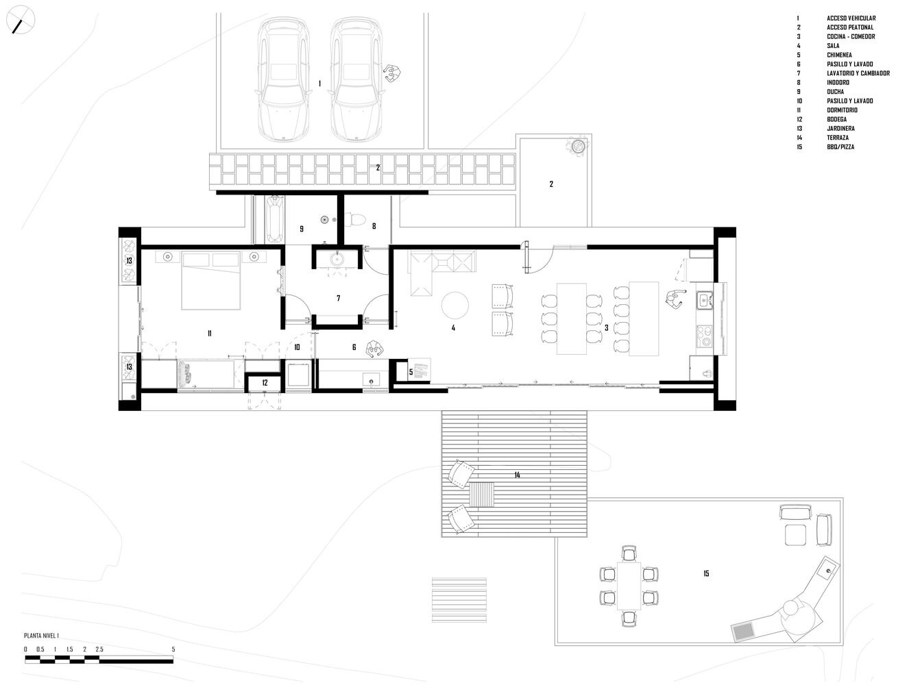
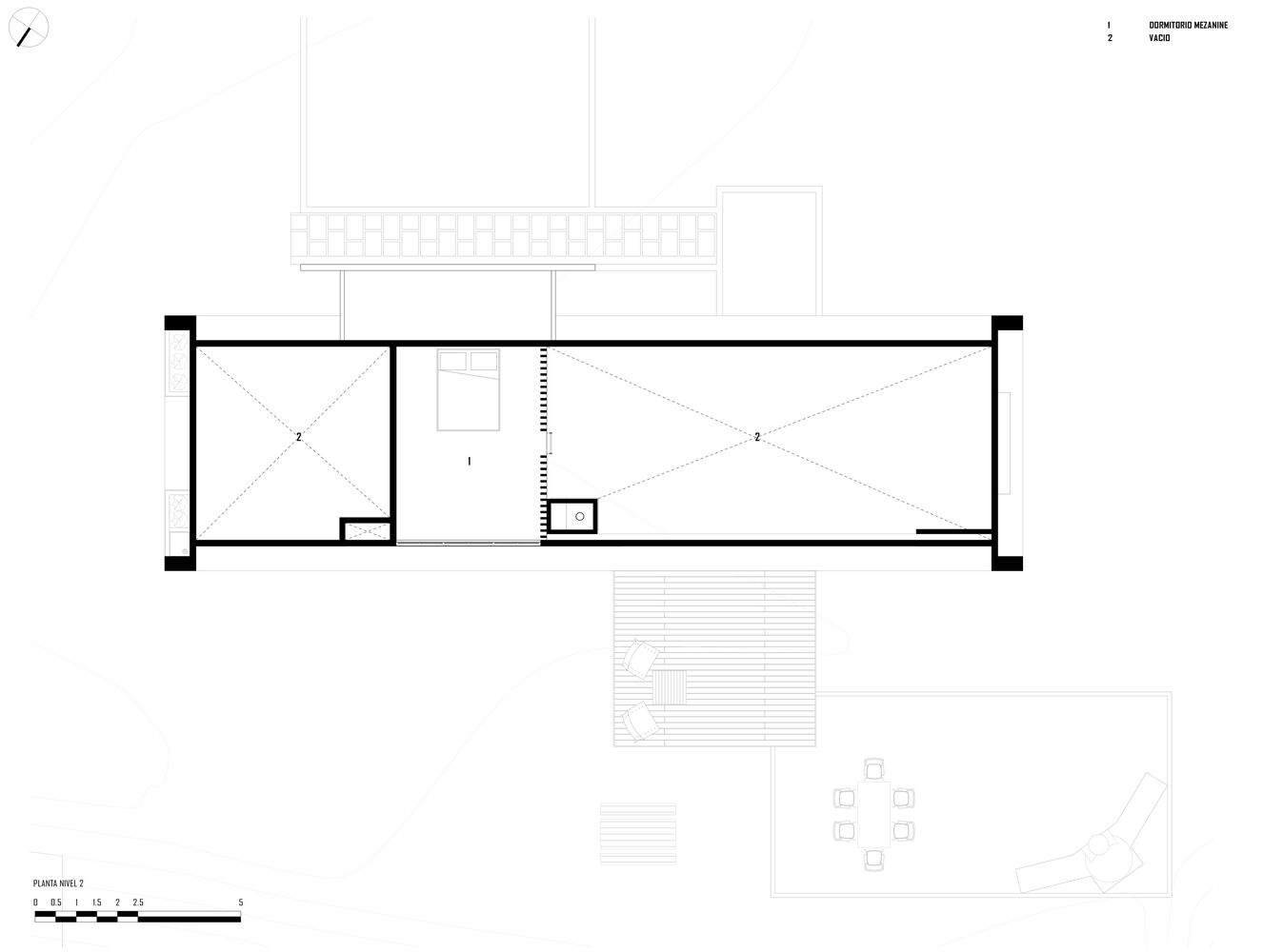
Otoczona bujną przyrodą Kostaryki, ta spektakularna rodzinna rezydencja to doskonałe połączenie nowoczesnej architektury z tradycyjnymi technikami budowlanymi i materiałami naturalnymi. Rezydencja wyróżnia się elegancką, czarną fasadą, która doskonale komponuje się z naturalnym otoczeniem, oferując chłodne i zacienione schronienie dla jej mieszkańców. Projekt domu został zaprojektowany z poszanowaniem przyrody, co widać w posadzonych na terenie nieruchomości ponad 300 drzew, przyczyniając się do ochrony bioróżnorodności i zachowania naturalnego ekosystemu. Dzięki temu, rezydencja doskonale wkomponowuje się w bujną roślinność, tworząc prawdziwe sanktuarium spokoju i harmonii.

Fot. Andrés García | Arch. Casalvolone Arquitectura

Wnętrza rezydencji zachwycają artystycznymi akcentami, takimi jak podłogi wykonane z mozaiki i terrazzo, które odzwierciedlają bogate dziedzictwo kulturowe regionu. Ciepły i przytulny wystrój wnętrz, w którym główną rolę odgrywa drewno, tworzy relaksującą atmosferę i przyjazne dla mieszkańców środowisko. Drewno, jako materiał ceniony za swoją wytrzymałość i trwałość, nadaje wnętrzom naturalny urok, idealnie łącząc się z nowoczesnymi akcentami. Panoramiczne okna pozwalają cieszyć się widokiem na malownicze otoczenie, jednocześnie zapewniając spokojny azyl od zgiełku codziennego życia. Dodatkowo, użycie betonu licowego, charakterystycznego dla stylu architekta, dodaje wnętrzom nowoczesnego charakteru i elegancji.

Fot. Andrés García | Arch. Casalvolone Arquitectura

Rezydencja stawia na lokalne rzemiosło, a meble kuchenne, łazienkowe, drzwiowe i szafy wykonane przez lokalnych rzemieślników są hołdem dla tradycyjnych technik i talentu miejscowych twórców. Na terenie posiadłości znajduje się także gospodarstwo rolne, w skład którego wchodzą ogrody warzywne, drzewa owocowe oraz zwierzęta hodowlane, co przyczynia się do samowystarczalności i zrównoważonego rozwoju tego wyjątkowego miejsca.

Fot. Andrés García | Arch. Casalvolone Arquitectura

Całość tej luksusowej rezydencji to idealne połączenie nowoczesnych technologii, naturalnych materiałów i tradycyjnych elementów. W kontekście rozwoju nowoczesnych przestrzeni mieszkalnych, można mówić o niej jako o ekologicznym sanktuarium, które jednocześnie pozostaje zgodne z tradycyjnymi wartościami architektury.