Fot. Andrin Winteler – bürobureau | Arch. Dost

Spełnienie marzeńmłodej rodziny

Ta nowoczesna stodoła to spełnienie marzeń młodej rodziny, która marzyła o tym, by zamieszkać w wyjątkowym miejscu – na brzegu rzeki Ren w Szwajcarii.

Fot. Andrin Winteler – bürobureau | Arch. Dost

Dom o nazwie „Hemishofen House” powstał w okolicy, która ma już swą architektoniczną historię i dlatego architekci starali się stworzyć nowoczesną interpretację tradycji poprzez odważny, innowacyjny projekt.To kompaktowy budynek z wyraźnie określoną, nowoczesną organizacją wnętrza. Granice między pomieszczeniami wewnątrz domu i jego otoczeniem zostały sprytnie zamazane dzięki dużym przeszkleniom, co tworzy silne relacje z otaczającą budynek przyrodą.

Fot. Andrin Winteler – bürobureau | Arch. Dost

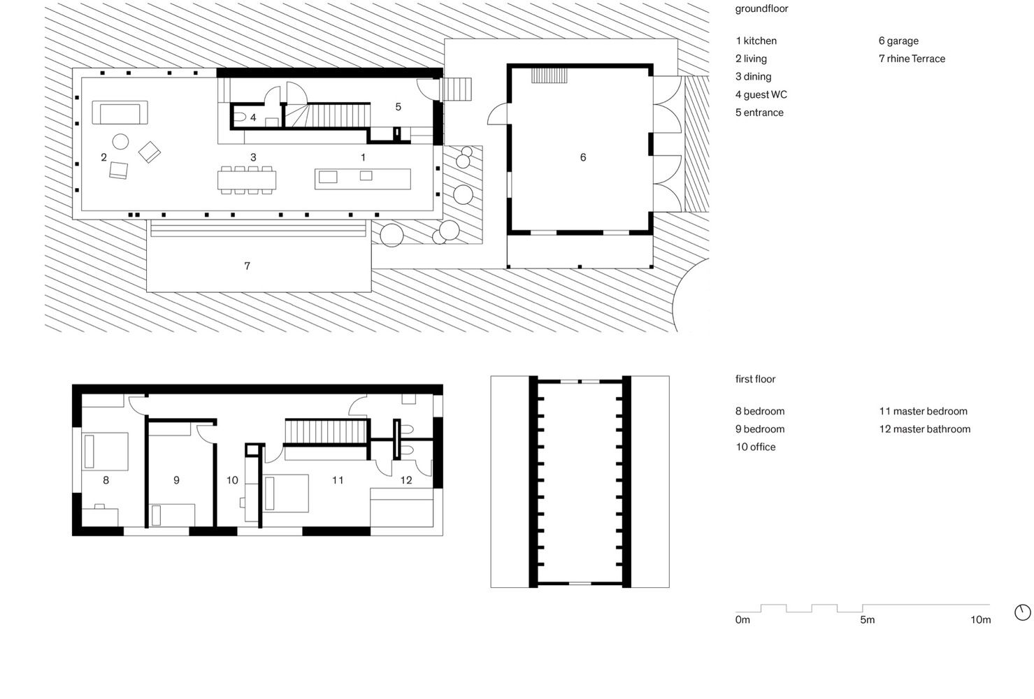
nowoczesna stodoła ma 151 metrów kwadratowych, a na dwóch piętrach znajduje się pięć pokoi. Parter mieści głównie przestrzenie dzienne, które są całkowicie otwarte w kierunku rzeki, a z kolei na piętrze ulokowano sypialnie. Z tego względu piętro jest zaprojektowane jako element zamknięty, z określoną ilością wycięć w elewacji, które zapewniają użytkownikom nie tylko prywatność, ale też naturalne światło i widoki.

Fot. Andrin Winteler – bürobureau | Arch. Dost

Elewacja tej nowoczesnej stodoły to głównie drewno połączone z charakterystycznymi elementami z tradycyjnych domów w okolicy. Jednak drewniana konstrukcja parteru wydaje się być znacznie bardziej nowoczesna, choć też nawiązuje do swej lokalizacji.