Fot. Lynton Crabb | Arch. Telha Clarke

Współczesna architekturaw harmonii z naturą

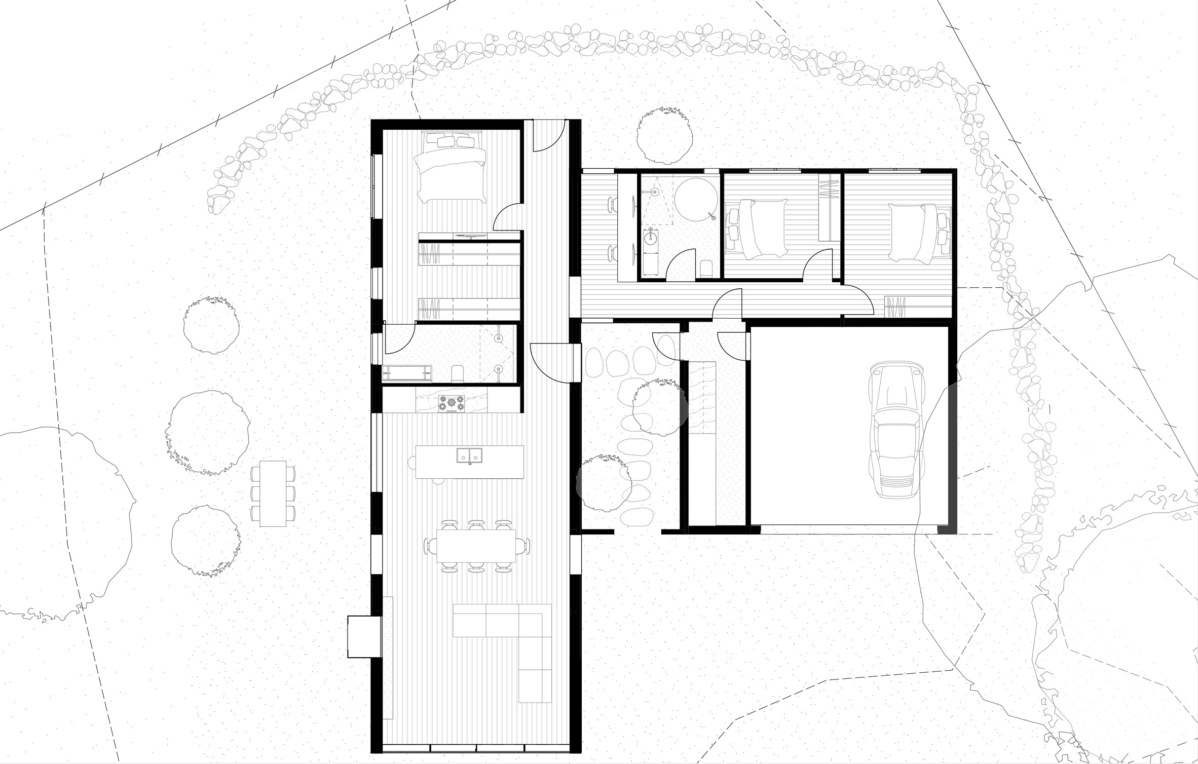
Hepburn Springs House to wyjątkowy projekt, który oferuje właścicielom bliski kontakt z otaczającą przyrodą dzięki przeszklonym ścianom oraz wychodzącym poza zarys budynku oknom. Dom znajduje się w Hepburn Springs, popularnej miejscowości wypoczynkowej w Australii, i łączy współczesną architekturę z naturalnym krajobrazem. Projekt opracowało biuro architektoniczne Telha Clarke z Melbourne, które miało za zadanie stworzyć nowoczesny dom dla klienta na stałe mieszkającego w mieście. Budynek usytuowany jest na szczycie wzgórza, z długim podjazdem wijącym się przez wąwóz.

Fot. Lynton Crabb | Arch. Telha Clarke

Projekt obejmuje dwa budynki ustawione prostopadle względem siebie, w tym jeden z dwuspadowym dachem obitym płytką łupkową, który kontrastuje z prostym, białym elementem przylegającym do niego. Niższa konstrukcja pełni funkcję skrzydła gościnnego oraz garażu. Ścieżka prowadząca do przeszklonych drzwi otwierających się na przestrzeń dzienną składa się z nieregularnych kamiennych płyt, które doskonale komponują się z otaczającym krajobrazem.

Fot. Lynton Crabb | Arch. Telha Clarke

Salon z otwartym planem znajduje się w wyższej części budynku, gdzie zarys dwuspadowego dachu widoczny jest od środka. Wnętrze przecięte jest przez cztery duże okna, ciągnące się wzdłuż betonowej plinty, która nie tylko zakotwicza budynek w krajobrazie, ale także przełamuje przestronność wnętrza, tworząc wygodne wnęki do siedzenia przy oknach. Czarne ściany wokół okien stanowią kontrast do białego wnętrza, tworząc dodatkową ramę. Kolejnym elementem przełamującym biel przestrzeni jest wyspa kuchenna z ciemnego drewna, która wprowadza naturalny detal do przestronnych wnętrz. Za kuchnią znajduje się korytarz prowadzący do głównej sypialni, a czarny granit stanowi wyraźny próg między tą częścią domu a przestrzenią dzienną.

Fot. Lynton Crabb | Arch. Telha Clarke

Skrzydło gościnne ma zupełnie inną skalę oraz paletę materiałów. Jego forma jest prostsza, a wnętrze bardziej kameralne, co wprowadza prywatną atmosferę. „Chcieliśmy, aby to skrzydło skupiło się na wnętrzu, a nie na otoczeniu. Jest niższe, bardziej wyciszone, ale światło i cień w tym budynku idealnie odzwierciedlają zewnętrzny krajobraz” – wyjaśnia Telha Clarke, odpowiedzialna za projekt. Kontrast w wielkości oraz materiałach podkreśla otwartość głównej przestrzeni. Przy wejściu do skrzydła gościnnego znajduje się przytulna przestrzeń do pracy z podwieszonym, drewnianym biurkiem. W niższej części budynku znajdują się dodatkowe sypialnie oraz duża łazienka.