Fot. Rasmus Hjortshøj | Arch. Lendager Group

Nowe życiedrewna

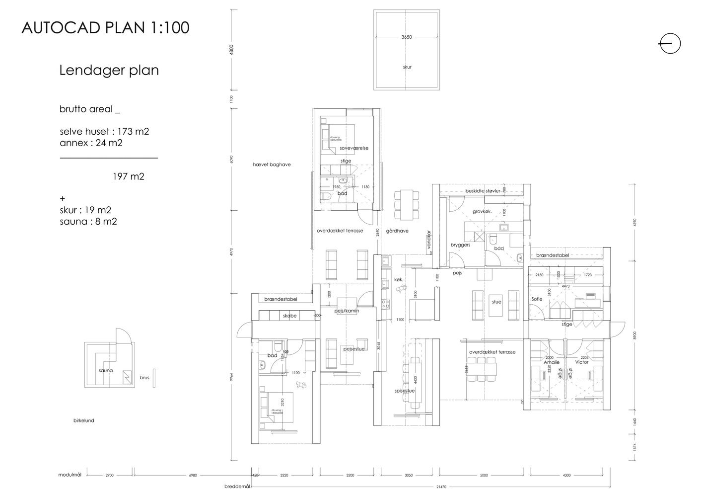
Kopenhaska firma architektoniczna Lendager Group stworzyła niezwykły dom wakacyjny wykorzystując recykling materiałów. nowoczesna stodoła dyskretnie chowa się między drzewami rosnącymi na wzgórzu w pobliżu plaży. Jej rozmiar nie przytłacza, ponieważ na pierwszy rzut oka wygląda tak, jakby składała się z kilku małych chatek. Pięć połączonych ze sobą budynków ze szklanymi fasadami zbudowano zgodnie z zasadami komunikacyjnymi dla domów rodzinnych. Zaprojektowano je z pełnym poszanowaniem dla tutejszego środowiska naturalnego.

Fot. Rasmus Hjortshøj | Arch. Lendager Group

Każdy budynek zapewnia widok na morze i bezpośredni dostęp do drewnianego tarasu. W budynkach mieści się w sumie pięć sypialni, trzy łazienki, trzy salony i kuchnia, a wszystko wykonano z materiałów pochodzących z odzysku – odpadów drewnianych i starej cegły. To właśnie te dwa elementy były podstawowym materiałem budowlanym w tym projekcie. Ściany, panele i elewacja wykonano z drewna, które normalnie przeznaczone byłoby na odpad w fabryce zajmującej się produkcją ekskluzywnych podłóg. Firma produkuje deski podłogowe pod wymiar podawany przez klientów i niestety generuje dużą ilość drewnianych odpadów. Firma Lendager Group gromadzi takie drewno, przerabia je i wprowadza do swoich projektów.

Fot. Rasmus Hjortshøj | Arch. Lendager Group

Wykorzystanie odpadów drewnianych jako materiał elewacyjny w klimacie nordyckim to nie lada wyzwanie. W tym miejscu kluczowa jest bowiem nie tylko estetyka, ale też trwałość i odporność materiałów. Firma zwraca więc ogromną uwagę na właściwe przygotowanie swoich drewnianych elementów. Stosuje technikę konserwacji drewna znaną w Japonii od 700 lat, która polega na przypalaniu powierzchni drewna. Tę samą technikę zastosowano dla desek montowanych na wybranych ścianach wewnątrz domu, choć tam powierzchnia drewna została dodatkowo wyszczotkowana i zabarwiona białym olejem, który podkreślił fakturę drewna.

Fot. Rasmus Hjortshøj | Arch. Lendager Group

Rama konstrukcji oraz krokwie pochodzą również z drewna z odzysku, które zakonserwowano w podobny sposób. Belki były częścią szpitala dziecięcego w Kopenhadze. Resztki, które pozostały po ich docięciu zostały z kolei wykorzystane do zrobienia paneli podłogowych. Natomiast wszystkie wykorzystane w projekcie cegły pochodzą z prowadzonych lokalnie rozbiórek starych budynków.