Fot. Manolo Langis | Arch. Carter Bradly

Od zrujnowanej posiadłoścido designerskiego domu

W 2009 roku Mel Elias, ówczesny dyrektor generalny The Coffee Bean & Tea Leaf, odkrył na cichym rogu Los Angeles zrujnowaną posiadłość o powierzchni 465 m², ukrytą za gęstą roślinnością. Dawniej należała ona do legendarnego trenera aktorstwa Miltona Katselasa, który przekształcił domki z lat 40. XX wieku w betonowo-stalowy pawilon z pensjonatem. Nieruchomość charakteryzowały wysokie sufity, przemysłowe świetliki, nietypowe kominki i regały skrywające sekretne przejścia. To miejsce, choć zniszczone, zachwyciło Mela unikalnym charakterem – tak narodziła się wizja stworzenia z niego designerskiej rezydencji na miarę nowoczesnej stodoły.

Fot. Manolo Langis | Arch. Carter Bradly

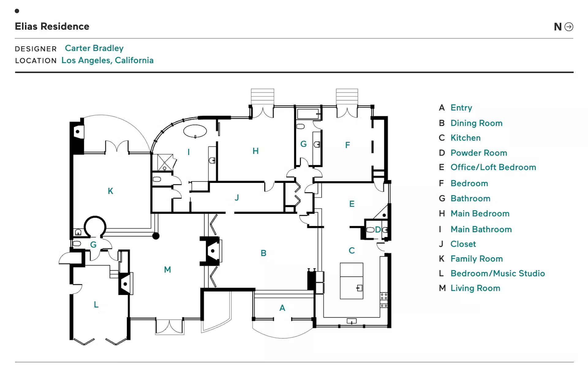
Przez 11 lat trwała kompleksowa renowacja rezydencji w Los Angeles, prowadzona przez projektanta Cartera Bradley’a. Oczyszczono teren, wzmocniono konstrukcję, a następnie stopniowo odtwarzano wnętrza, zachowując oryginalne elementy i uzupełniając je o nowe: kolejne świetliki, kominki i charakterystyczne czerwone płytki. Powstała nowoczesna kuchnia z czarnym granitem, wysokie biblioteczne szafy z ruchomą drabiną i wnętrza pełne naturalnych materiałów. Inspiracje japońską estetyką – shoji, klony, wazony Ikebana – połączono z klasykami designu, jak fotel Eames Lounge, tworząc ponadczasową, eklektyczną przestrzeń.

Fot. Manolo Langis | Arch. Carter Bradly

Dziś posiadłość to wyjątkowy przykład tego, jak można połączyć architekturę nowoczesną z historią i charakterem miejsca. Szklane ściany, stalowe ramy i przestronne wnętrza czynią dom prawdziwym kreatywnym narzędziem – to tu mieści się studio muzyczne, prywatne biuro i przestrzeń do pracy twórczej. Nieruchomość, niegdyś zapomniana i zniszczona, stała się luksusowym azylem w sercu Los Angeles, zachwycającym detalami i atmosferą, która przypomina współczesną, kalifornijską interpretację nowoczesnej stodoły.