Fot. Cesar Belio | Arch. GOMA Taller de Arquitectura

Hotel w zabytkowejfabryce włókienniczej

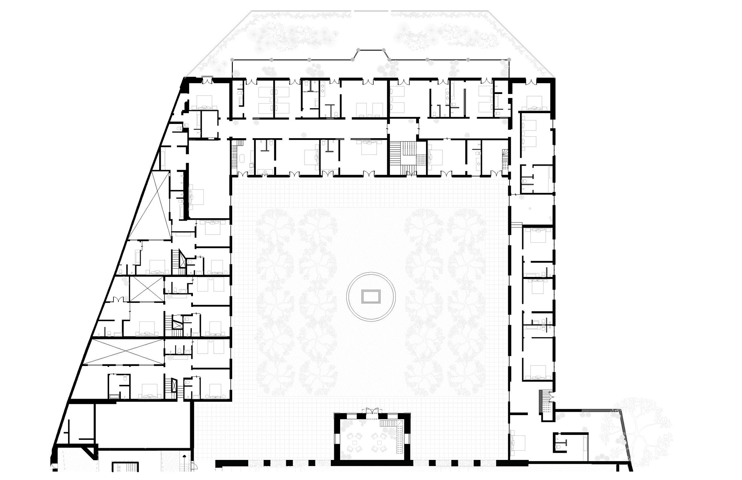
Zlokalizowany na terenie dawnej fabryki włókienniczej, Hotel Hercules to przykład udanej rewitalizacji zabytkowej przestrzeni, która zyskała nowe życie jako butikowy hotel z basenem, restauracją i spa. Obiekt mieści się w odrestaurowanym budynku poprzemysłowym, stanowiąc wzorcowy przykład miejskiego recyklingu architektury i adaptacji przestrzeni zgodnie z nowoczesnymi potrzebami gości. Projekt wpisuje się w koncepcję nowoczesnej stodoły, czerpiąc z surowej estetyki postindustrialnej w połączeniu z luksusem współczesnego wypoczynku.

Fot. Cesar Belio | Arch. GOMA Taller de Arquitectura

Dawna przestrzeń mieszkalna pracowników fabryki została przekształcona w czterdziestopokojowy hotel butikowy, który pełni również funkcję klubu towarzyskiego i centrum wellness. Całość zachowuje historyczny klimat dzięki pieczołowitemu zachowaniu oryginalnych detali architektonicznych, takich jak sklepienia, ceglane ściany i stalowe konstrukcje, które przywrócono z użyciem tradycyjnych technik i materiałów budowlanych.

Fot. Cesar Belio | Arch. GOMA Taller de Arquitectura

Główną wytyczną projektową była ochrona dziedzictwa architektonicznego oraz świadome połączenie historii z nowoczesnością. Hotel został zaprojektowany z poszanowaniem pierwotnej formy budynku, a jego wnętrza harmonijnie łączą surowy industrialny styl z ciepłem naturalnych materiałów. Każdy pokój zachowuje unikalny charakter, a przestrzenie wspólne – takie jak restauracja, lobby i strefa wellness – nawiązują do przeszłości miejsca.

Fot. Cesar Belio | Arch. GOMA Taller de Arquitectura

Dzięki tej filozofii, Hotel Hercules stał się nie tylko komfortowym miejscem odpoczynku, ale też symbolem transformacji urbanistycznej, która łączy historię z funkcjonalnością i estetyką współczesnego designu.