Fot. Filip Dujardin | Arch. Graux & Baeyens Architecten

Historyczny domz dziedzictwem

House BS, położony w malowniczej dolinie, znajduje się na skrzyżowaniu kilku krętych uliczek. Wschodnia część obszaru charakteryzuje się zabudową szeregową, podczas gdy południowa graniczy z aluwialną równiną Skaldy, a od zachodu roztacza się widok na rozległy, stary sad. Gospodarstwo, zapisane w rejestrze dziedzictwa architektonicznego, było przez trzy pokolenia w rękach tej samej rodziny, aż jego mury opustoszały.

Fot. Filip Dujardin | Arch. Graux & Baeyens Architecten

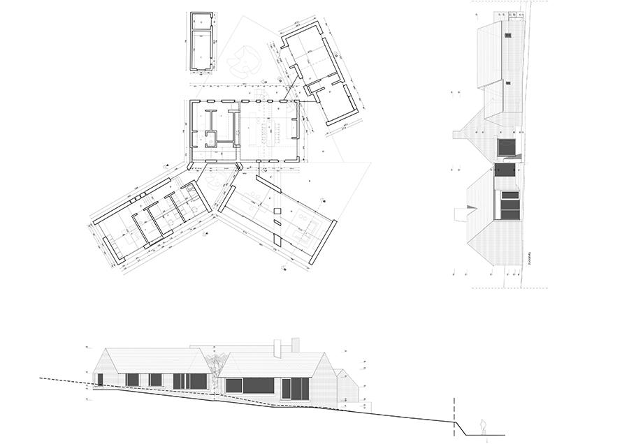
Gospodarstwo BS składa się z trzech podstawowych brył (mieszkanie, stajnia i chlew), wokół centralnego placu z widokiem na elewacje zabudowy szeregowej. Te ceglane konstrukcje z dwuspadowym dachem są charakterystyczne dla regionu, zarówno pod względem materiałów, jak i formy. Zróżnicowanie w wielkości i układzie tych brył wprowadza fascynującą atmosferę oraz zapewnia wyjątkowe wrażenie różnorodności urbanistycznej. Projekt, inspirowany tym historycznym zestawieniem, wprowadza dwie dodatkowe, symetryczne bryły z dwuspadowymi dachami.

Fot. Filip Dujardin | Arch. Graux & Baeyens Architecten

„Ograniczamy ingerencje w istniejące woluminy do minimum, udostępniając kilka otworów, które są niezbędne do zapewnienia odpowiedniej cyrkulacji” – wyjaśniają architekci. Dwa nowe skrzydła są umieszczone po zachodniej stronie głównej bryły, tworząc zamknięte patio. Całość projektu, mimo że zachowuje silną wizualną separację pomiędzy starymi a nowymi elementami, skutkuje stworzeniem spójnego przejścia do ogrodu, co wzmacnia zasadę skupienia na przestrzeni.