Fot. Miran Kambič Photography | Arch. Bevk Perović arhitekti

Nowoczesna stodoław Słowenii

Koncepcja architektoniczna nowoczesnej stodoły – domu HB – została zdefiniowana przez jego unikalne położenie w malowniczym krajobrazie. Nieruchomość znajduje się w podmiejskiej słoweńskiej strefie, otoczonej typową dla Europy Centralnej architekturą powojenną, charakteryzującą się dwupiętrowymi budynkami. Dom HB redefiniuje pojęcie nowoczesnego środowiska domowego, oferując innowacyjne podejście do architektury.

Fot. Miran Kambič Photography | Arch. Bevk Perović arhitekti

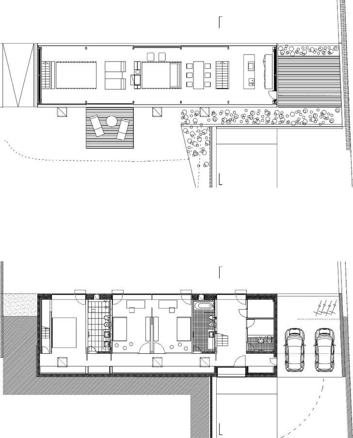
Zlokalizowany na szczycie niskiego wzgórza, dom HB przypomina przezroczystą strukturę unoszącą się nad ziemią. Mimo swojej dominującej pozycji, harmonia z otaczającym krajobrazem jest jednym z kluczowych założeń projektu. Dach i elewacje boczne, pokryte jednolitymi płytami aluminiowymi, tworzą minimalistyczną formę, eliminując zbędne detale dekoracyjne.

Dolna część budynku, wykonana z betonu, jest zorientowana na ukryte patio, zapewniając prywatność i spokój. Górna konstrukcja, w pełni przeszklona na dłuższej krawędzi, oferuje panoramiczne widoki i doskonałe połączenie wnętrza z zewnętrzem. Otwarte wnętrze bez ścian działowych tworzy przestrzeń wielofunkcyjną, idealną dla współczesnego stylu życia.