Fot. Pablo Casals Aguirre | Arch. Duarte Fournies Arquitectos

Dom harmonijniewpisany w naturę

Położona u podnóża jeziora Llanquihue, w południowej części Chile, nowoczesna stodoła autorstwa lokalnych architektów to przykład architektury silnie zintegrowanej z krajobrazem. Usytuowana w samym sercu rodzimego lasu, rezydencja czerpie pełnymi garściami z bogactwa przyrody – bujnej roślinności, zmiennej pogody i uroków naturalnej topografii. Ten unikatowy projekt powstał w odpowiedzi na potrzebę stworzenia przestrzeni do życia, która respektuje otoczenie, minimalizuje ingerencję w środowisko i nawiązuje do lokalnych tradycji budowlanych regionu południowego Chile.

Fot. Pablo Casals Aguirre | Arch. Duarte Fournies Arquitectos

Inspiracją do stworzenia formy budynku była archetypiczna architektura lokalnych zabudowań gospodarskich – szop, stodół i magazynów, które od pokoleń wpisują się w tożsamość krajobrazową tego rejonu. Cechuje je prosta, elementarna geometria, skontrastowana z dziką, nieokiełznaną przyrodą, ale jednocześnie z nią współistniejąca poprzez odpowiednio dobrane proporcje i naturalne materiały. Architekci wykorzystali tę tradycyjną typologię jako punkt wyjścia, tworząc współczesną reinterpretację – nowoczesną stodołę, która jest zarazem wyrazista i subtelna w swojej obecności.

Dom zbudowany został w całości z drewna – zarówno jeśli chodzi o konstrukcję, jak i o wykończenie. Zastosowano lokalne, naturalne materiały, takie jak termicznie obrabiana sosna, gont z modrzewia patagońskiego i konstrukcje z belek drewnianych o przekroju kwadratowym. Tego rodzaju drewno starzeje się z godnością, nabierając charakteru i współgrając z procesami zachodzącymi w otaczającej przyrodzie. Architekci świadomie ograniczyli paletę kolorystyczną domu, stawiając na stonowane barwy, które nie konkurują z krajobrazem, lecz pozwalają mu wybrzmieć jako głównemu bohaterowi przestrzeni.

Fot. Pablo Casals Aguirre | Arch. Duarte Fournies Arquitectos

Usytuowanie budynku w południowej części leśnej polany pozwala na maksymalne wykorzystanie światła słonecznego przy jednoczesnym poszanowaniu naturalnego środowiska. Dzięki temu dom niemal stapia się z krajobrazem, nie naruszając jego rytmu. Strefa wejściowa oraz przestrzeń do parkowania znajdują się po stronie południowej, podczas gdy północna część działki została zachowana jako otwarta przestrzeń rekreacyjna, z widokiem na przyrodę i słońce.

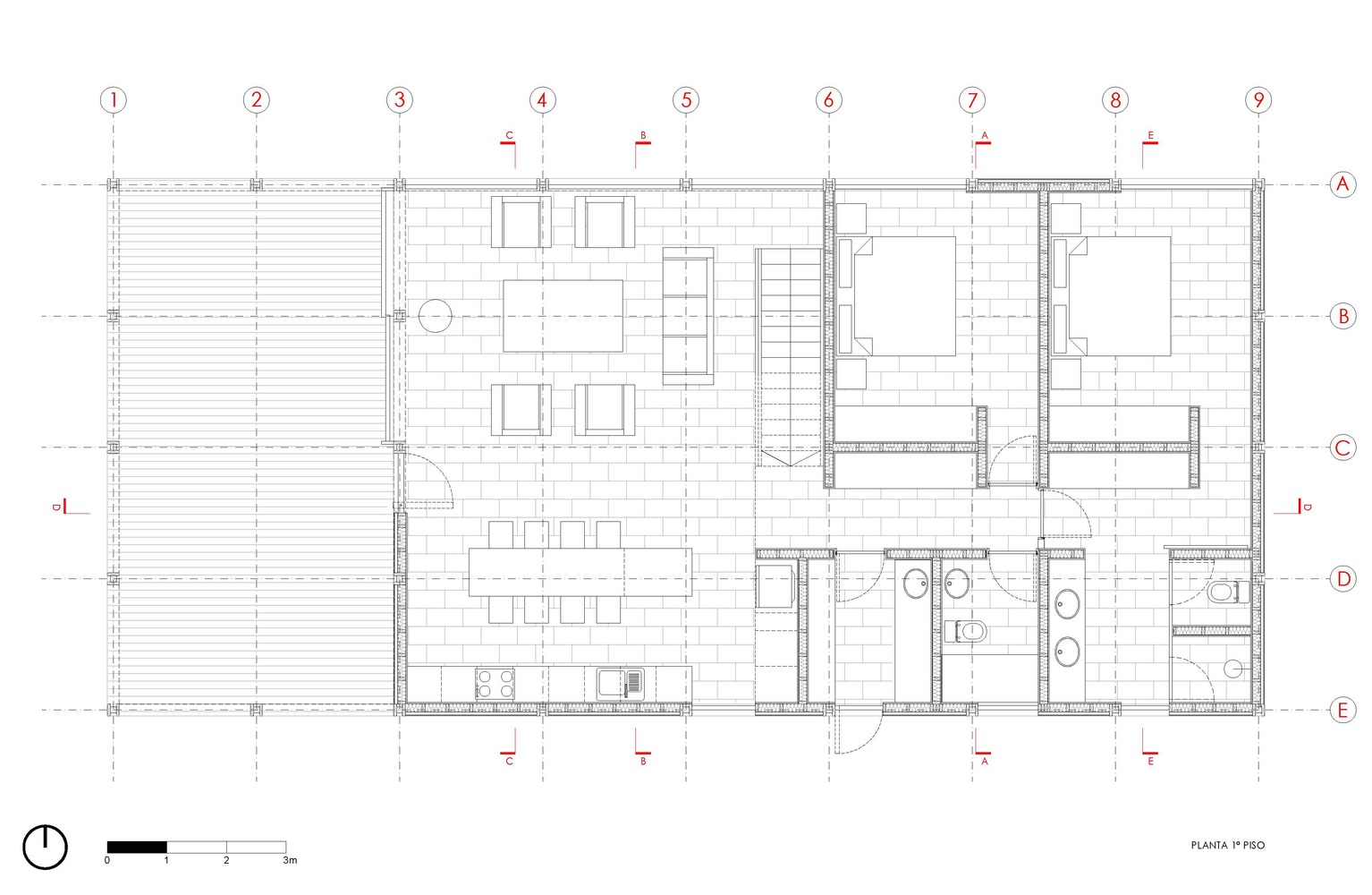
Struktura domu opiera się na module o szerokości 8,8 metra, zbudowanym z drewnianych słupów i wiązarów rozstawionych co 2,4 metra – wymiar ten odpowiada standardowym formatom drewna konstrukcyjnego dostępnego na rynku chilijskim. Pierwsza kondygnacja ma wysokość 2,4 metra, również zgodnie ze standardami, natomiast dachowy wiązar wznosi się na 4 metry, co umożliwia efektywne odprowadzanie wody deszczowej oraz pozwala stworzyć przestrzeń o podwójnej wysokości w części dziennej domu.

Program funkcjonalny został przemyślany w taki sposób, aby optymalnie wykorzystać naturalne warunki działki. Główna strefa dzienna – składająca się z salonu, kuchni i jadalni – została zlokalizowana na parterze i otwarta na północ, aby zapewnić naturalne doświetlenie i panoramiczne widoki. Wejście do domu prowadzi przez zadaszony taras, który płynnie przechodzi w imponującą przestrzeń wspólną o podwójnej wysokości. Na piętrze znajduje się antresola z dodatkową strefą wypoczynkową oraz sypialnie gościnne.

Fot. Pablo Casals Aguirre | Arch. Duarte Fournies Arquitectos

Strefy mokre, takie jak kuchnia pomocnicza i łazienki, ulokowane zostały w południowej części budynku, bliżej gęstszego lasu, co pozwoliło stworzyć bardziej zamkniętą i intymną fasadę od tej strony. Elewacja południowa jest oszczędna w otwory okienne – pojawiają się tu jedynie małe, funkcjonalne okna umożliwiające wentylację. Z kolei elewacja północna jest otwarta i przeszklona, co jeszcze bardziej podkreśla połączenie wnętrza z naturą.

Na tyłach domu, prostopadle do głównej bryły, znajduje się wolumen techniczny o neutralnym charakterze, który stanowi wizualne i funkcjonalne przeciwstawienie głównej strefy mieszkalnej. To miejsce na urządzenia, przechowywanie sprzętu czy zaplecze techniczne – dyskretnie wkomponowane w układ przestrzenny.

Całość projektu to mistrzowskie połączenie prostoty i zaawansowanego myślenia o architekturze zrównoważonej. Ta nowoczesna stodoła nie tylko nawiązuje do lokalnej tradycji budowlanej, ale też tworzy nową jakość – oferując przestrzeń do życia blisko natury, w zgodzie z rytmem przyrody i poszanowaniem lokalnego dziedzictwa.