Fot. Kai Nakamura | Arch. Atelier KUKKA Architects

Oryginalny projekt zwidokiem na wiśnię

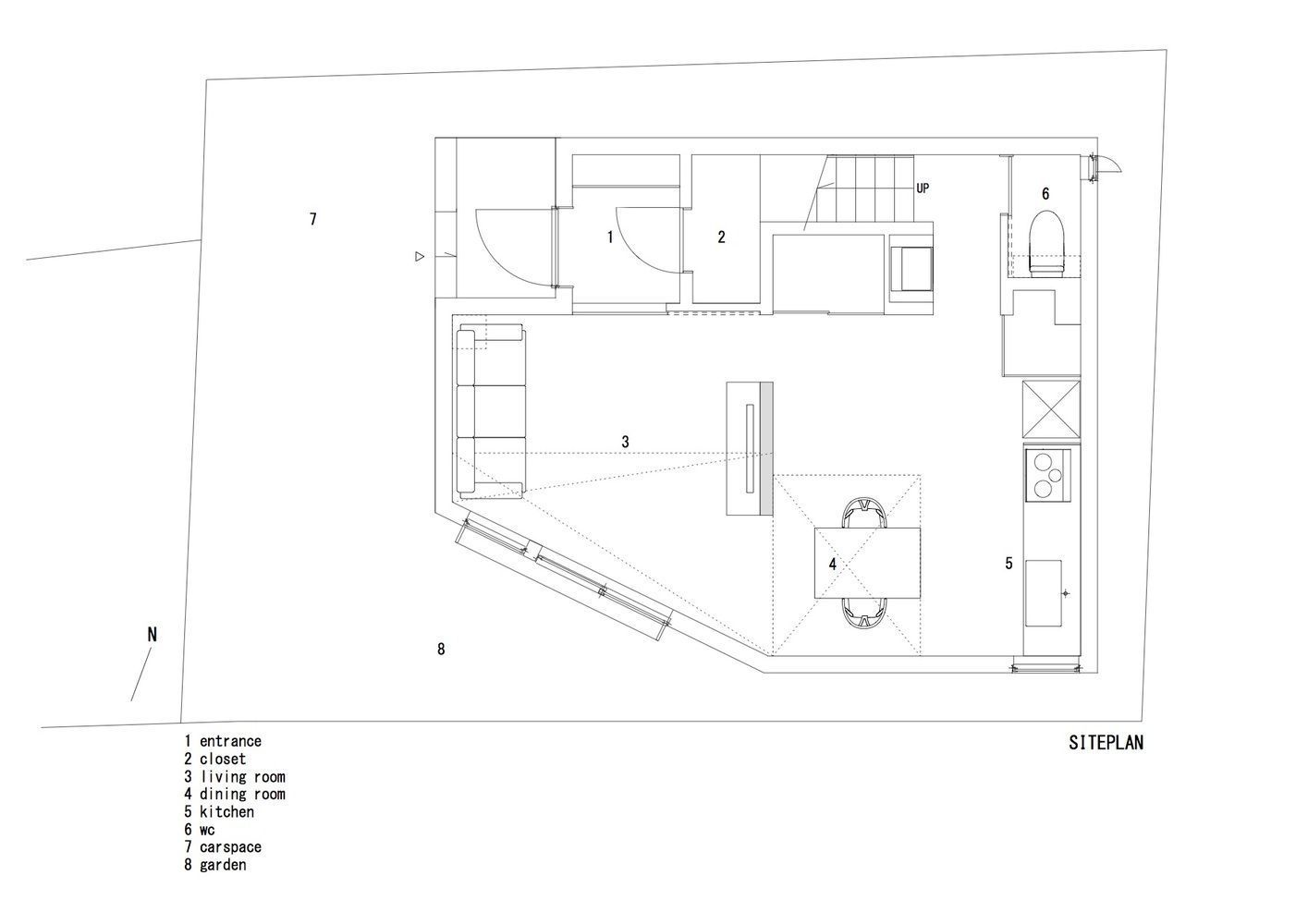
Mały dom z czerwonego drewna cedrowego w Tokio, zlokalizowany na końcu ulicy w spokojnej, gęsto zabudowanej dzielnicy, został zaprojektowany z myślą o bliskości drzewa wiśniowego. Właściciele chcieli zachować prywatność i cieszyć się światłem, unikając dużych okien wychodzących na ulicę.

Fot. Kai Nakamura | Arch. Atelier KUKKA Architects

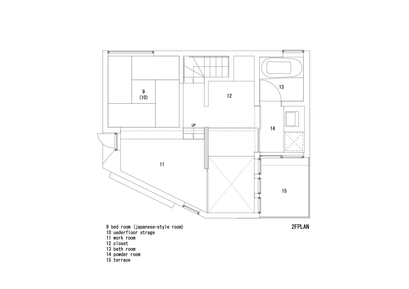
Architekci stworzyli oryginalną bryłę z ukośnym południowo-zachodnim narożnikiem, dzięki czemu powstał ogród i dwa strategicznie rozmieszczone okna. Jedno na piętrze, skierowane na wiśnię, zapewnia naturalne światło, kontrolując jednocześnie temperaturę i zachowując prywatność. Drugie wpuszcza światło od południa, chroniąc przed bezpośrednimi promieniami i wzrokiem przechodniów. W przyszłości posadzone drzewa jeszcze bardziej osłonią wnętrze.

Fot. Kai Nakamura | Arch. Atelier KUKKA Architects

Fasada domu to unikalna kompozycja dwóch elewacji z kontrastującymi oknami, które podkreślają nowoczesny charakter. Wnętrze organizuje granatowy element konstrukcyjny, a różne wysokości sufitów nadają przestrzeni dynamiki. Kuchnia i jadalnia korzystają z tarasowego światła na drugim piętrze, tworząc jasne i funkcjonalne pomieszczenia.