Fot. Studio Flusser, Julius Filip | Arch. Adam Hofman, Dominik Ilichman
  • Architekt

    Adam Hofman
    Dominik Ilichman
  • Fotograf

    Studio Flusser
  • Lokalizacja

    Lípa nad Dřevnicí, Czechy

Minimalizm inatura w harmonii

Projekt „Hytta” to wyjątkowa interpretacja nowoczesnej stodoły, której głównym założeniem było stworzenie przestrzeni sprzyjającej wyciszeniu, twórczości i obcowaniu z naturą. Ten minimalistyczny domek, położony na skraju lasu, łączy nowoczesne rozwiązania z inspiracją czerpaną z dawnych chat myśliwskich. Architektura wpisuje się w ducha skandynawskiego minimalizmu – pozbawiona zbędnych detali, funkcjonalna, a zarazem estetyczna. Każdy element przestrzeni został zaplanowany tak, by podkreślać związek człowieka z przyrodą i stwarzać warunki do refleksji i kreatywności.

Fot. Studio Flusser, Julius Filip | Arch. Adam Hofman, Dominik Ilichman

Przemyślany układ i przestrzeń do życia

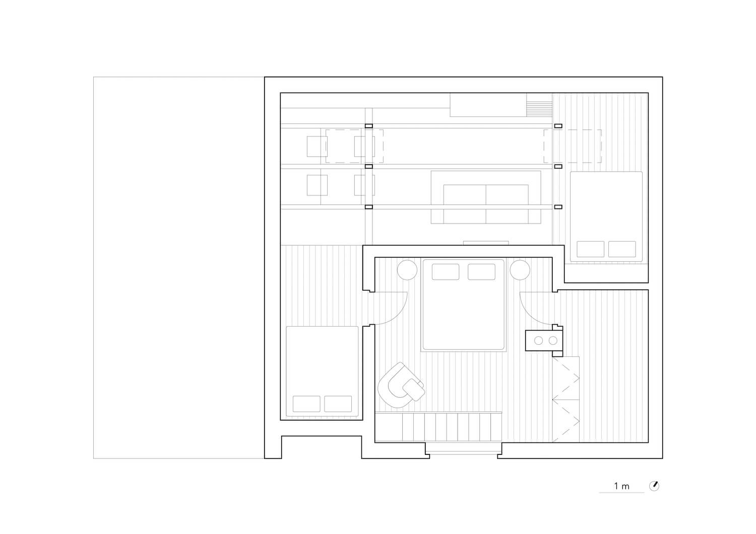
Hytta to kompaktowa, lecz bardzo funkcjonalna przestrzeń mieszkalna, idealna na dłuższy pobyt w otoczeniu przyrody. Projekt zakłada wyraźny podział stref – część dzienna na parterze obejmuje salon połączony z nowoczesną kuchnią, przedpokój oraz łazienkę i pomieszczenie gospodarcze. Dodatkowa łazienka z dostępem z zewnątrz ułatwia korzystanie z uroków natury bez zakłócania wewnętrznej harmonii domu.

Wysoki, dwuspadowy dach – charakterystyczny dla formy nowoczesnej stodoły – zapewnia nie tylko przestronność, ale i wyjątkowy klimat wnętrza. Stalowe schody, zawieszone na stalowych linkach, prowadzą na antresolę z główną sypialnią. Przeszklona ściana wychodząca na wschód pozwala na obserwowanie budzącego się dnia wprost z łóżka, podkreślając związek wnętrza z otoczeniem.

Połączenie z naturą i energooszczędność

Projekt Hytty integruje elementy ekologiczne i energooszczędne. Głównym źródłem ciepła jest żeliwny piec opalany drewnem, wspierany przez wydajne ogrzewanie podłogowe. Liczne przeszklenia otwierają wnętrze na otaczający las, dając wrażenie życia w zgodzie z przyrodą. Taras otaczający domek sprzyja relaksowi na świeżym powietrzu, niezależnie od pory roku.

Fot. Studio Flusser, Julius Filip | Arch. Adam Hofman, Dominik Ilichman

Fińska sauna jako dopełnienie filozofii miejsca

Nieopodal chaty znajduje się nowoczesna, minimalistyczna sauna fińska, która – podobnie jak główny budynek – została wykończona w technologii opalanego drewna. Ciemna, głęboka fasada niemal stapia się z otaczającą zielenią. Podczas seansu w saunie można podziwiać dziką przyrodę i las, a po kąpieli skorzystać z zimnej wanny zanurzeniowej, ustawionej w idealnym punkcie widokowym.

Nowoczesna stodoła w duchu slow life

Projekt Hytty to coś więcej niż funkcjonalny domek – to styl życia. Nowoczesna stodoła w skandynawskim wydaniu zaprasza do zatrzymania się, zanurzenia w ciszy i odnalezienia inspiracji w naturalnym otoczeniu. To idealne miejsce do pracy twórczej, wypoczynku oraz powrotu do prostoty.