Arch. S4Architecture, AWP/AWILDC

Współczesna reinterpretacjaamerykańskiej stodoły

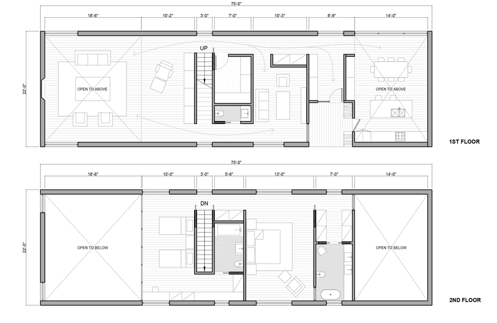
Projekt In-Land Living, opracowany przez pracownię S4Architecture we współpracy z AWP/AWILDC, to nowoczesna odpowiedź na klasyczną amerykańską architekturę wiejską. Inspirowany typologią tradycyjnej stodoły, projekt przekształca znaną formę w uniwersalną przestrzeń mieszkalną, artystyczną lub biurową. To innowacyjne podejście do architektury zakłada maksymalną elastyczność – budynek może funkcjonować zarówno jako dom, studio pracy twórczej, zdalne biuro, jak i wielofunkcyjna przestrzeń życiowa dla współczesnych użytkowników.  

 
Arch. S4Architecture, AWP/AWILDC

Architektura opiera się na prostocie geometrycznej i czystych liniach, które podkreślają otaczające krajobrazy – lasy, naturalne światło i zmienność pór roku. Naturalne materiały, starannie dobrane, takie jak drewno i surowe wykończenia, nadają przestrzeni przytulny, ludzki wymiar i zachęcają do spędzania czasu blisko przyrody. Projekt celowo minimalizuje wizualną dominację architektury, oddając pierwszeństwo otaczającemu środowisku.

In-Land Living wpisuje się w rosnący trend redefinicji stylu życia – odchodzenia od zurbanizowanych aglomeracji na rzecz spokojnego życia w rytmie natury. To przestrzeń, która odpowiada na współczesne potrzeby – elastyczność funkcjonalna, kontakt z naturą, równowaga między pracą a odpoczynkiem oraz świadome wykorzystanie zasobów. 

Arch. S4Architecture, AWP/AWILDC

Dzięki swojej uniwersalności, estetyce i zrównoważonemu podejściu, In-Land Living stanowi inspirację dla tych, którzy poszukują nowych form zamieszkiwania, bardziej związanych z lokalnym kontekstem, spokojem i prostotą życia.