Fot. Peter Jurkovic | Arch. JRKVC

Mały dom ekologicznyza 75 tysięcy euro

W słowackim Čunovo powstał niezwykły mały domek, zaprojektowany przez firmę architektoniczną JRKVC, który łączy nowoczesny design z ekologicznymi rozwiązaniami. Zbudowany na małej działce, przy ściśle określonym budżecie w wysokości 75 tysięcy euro, dom stanowi idealny przykład nowoczesnej stodoły łączącej funkcjonalność, prostotę i zrównoważoną architekturę.

Fot. Peter Jurkovic | Arch. JRKVC

Projekt miał na celu stworzenie przestrzeni, która nie tylko spełnia potrzeby współczesnych użytkowników, ale również minimalizuje ślad ekologiczny i zapewnia energooszczędność. Zastosowanie lokalnych materiałów budowlanych, takich jak drewno, glina i słoma, pozwoliło na stworzenie budynku, który nie "walczy z przyrodą", lecz staje się jej integralną częścią. Dzięki tym materiałom, dom wznosi się z poszanowaniem lokalnej tradycji, zachowując jednocześnie nowoczesną formę.

Fot. Peter Jurkovic | Arch. JRKVC

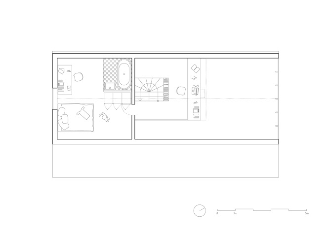
Dom o powierzchni 85 m², nazwany "IST – Rodinny dom", zawiera elementy tradycyjnej słowackiej architektury, takie jak zadaszona weranda – ganok. Przestronny, otwarty salon i inne przestrzenie dzienne znajdują się w części budynku z dużą ilością przeszkleń, które zapewniają naturalne światło, wprowadzając do wnętrza słońce przez cały dzień. Wzdłuż całej długości budynku znajdują się małe okna, które w zestawieniu z przeszkloną ścianą końcową wprowadzają światło głęboko w dom.

Fot. Peter Jurkovic | Arch. JRKVC

Wnętrze zostało urządzone w stylu nowoczesnym, z centralnym elementem – "pudełkiem ze sklejki", które pełni funkcję przestrzeni na łazienkę i schowki, a także zapewnia dostęp do górnej części domu. Publiczne przestrzenie (kuchnia, jadalnia, salon) znajdują się w przeszklonej części budynku, natomiast bardziej prywatne przestrzenie, takie jak łazienka i sypialnia, znajdują się na drugim końcu. Wykorzystanie płyt SIP w konstrukcji budynku zapewnia jego niską energochłonność, a masy betonowe w parterze pełnią funkcję magazynowania energii termicznej.

Fot. Peter Jurkovic | Arch. JRKVC

Projekt został zaprezentowany jako dom o minimalnych kosztach eksploatacyjnych, bez zaawansowanych systemów energetycznych, co pozwala utrzymać niski koszt budowy przy jednoczesnym zachowaniu wysokiej efektywności energetycznej.