Arch. MAKE Architects

Wzórzrównoważonej architektury

Karangahake House to ekologiczny dom prefabrykowany, który powstał w zaledwie cztery dni na farmie w Nowej Zelandii. Położony na północnej wyspie w mieście Waihi, z widokiem na pasmo Kaimai, wąwóz Karangahake i rzekę Waitawheta, idealnie wpisuje się w naturalny krajobraz. Projekt domu zleciła młoda rodzina – Sarah i James – która postawiła na zrównoważony rozwój, minimalny wpływ na środowisko oraz prefabrykację jako sposób na ograniczenie ingerencji w teren. Architekci z MAKE Architects inspirowali się prostotą „chat włóczęgów” – minimalistycznych schronień typowych dla nowozelandzkich wędrowców, nadając budynkowi prostą, szczytową formę o wyjątkowym charakterze.

Arch. MAKE Architects

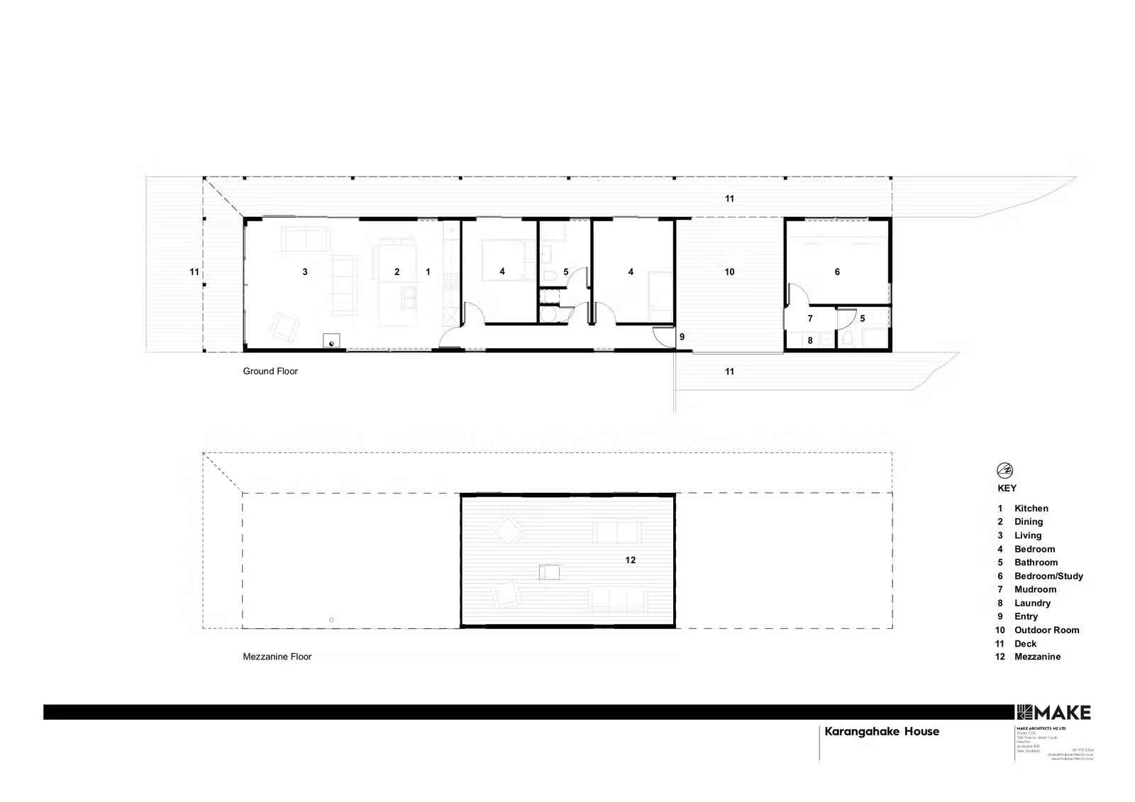
Dom o powierzchni niespełna 100 m² został zaprojektowany z myślą o funkcjonalności i harmonii z naturą. Składa się z trzech sypialni i dwóch łazienek, a także apartamentu gościnnego, który pełni również funkcję biura. Przestrzenie mieszkalne połączono z „zewnętrznym pokojem”, chronioną strefą z panoramicznymi widokami na las i farmy, zapewniając nieprzerwane połączenie z otaczającą przyrodą. Całość otwiera się na tarasy od strony północnej i wschodniej. Wnętrza wykończono naturalnymi materiałami – od podłogi z laminowanego drewna, po ściany pokryte dekoracyjną płytą zabezpieczoną olejem bezrozpuszczalnikowym – tworząc ciepłą i przytulną atmosferę.

Arch. MAKE Architects

Karangahake House to przykład domu ekologicznego z prefabrykatów, który łączy efektywność budowy z troską o środowisko. Panele ścienne, dachowe i podłogowe przygotowano w fabryce, a montaż na miejscu trwał zaledwie cztery dni. Wykończenie zajęło kolejne trzy miesiące, obejmując m.in. instalacje, okna i elewację. Dom został obłożony twardzielowym drewnem daglezji z certyfikowanych plantacji, zabezpieczonym naturalnym impregnatem krzemianowym, który z czasem tworzy szlachetną, srebrzystą patynę. Przemyślana wentylacja, odporne na warunki atmosferyczne materiały i energooszczędność sprawiają, że Karangahake House jest modelowym przykładem architektury przyszłości, która pozostawia krajobraz nienaruszony.