Fot. Roos Alderhoff fotografie | Arch. CUBE Architecten

Nowoczesna rozbudowadomu przedwojennego

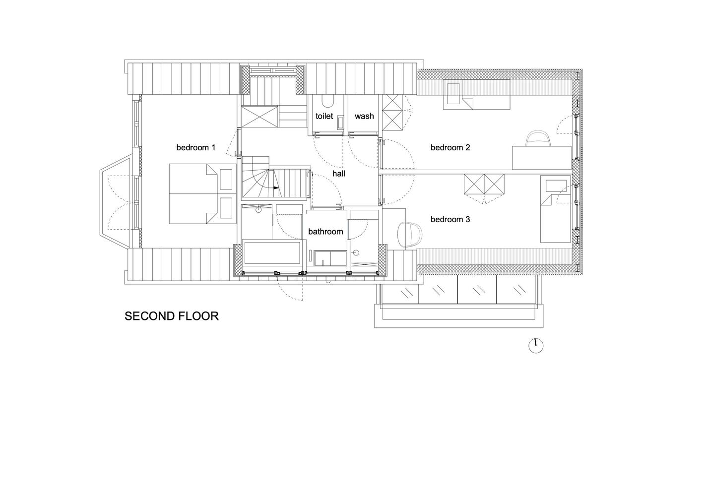
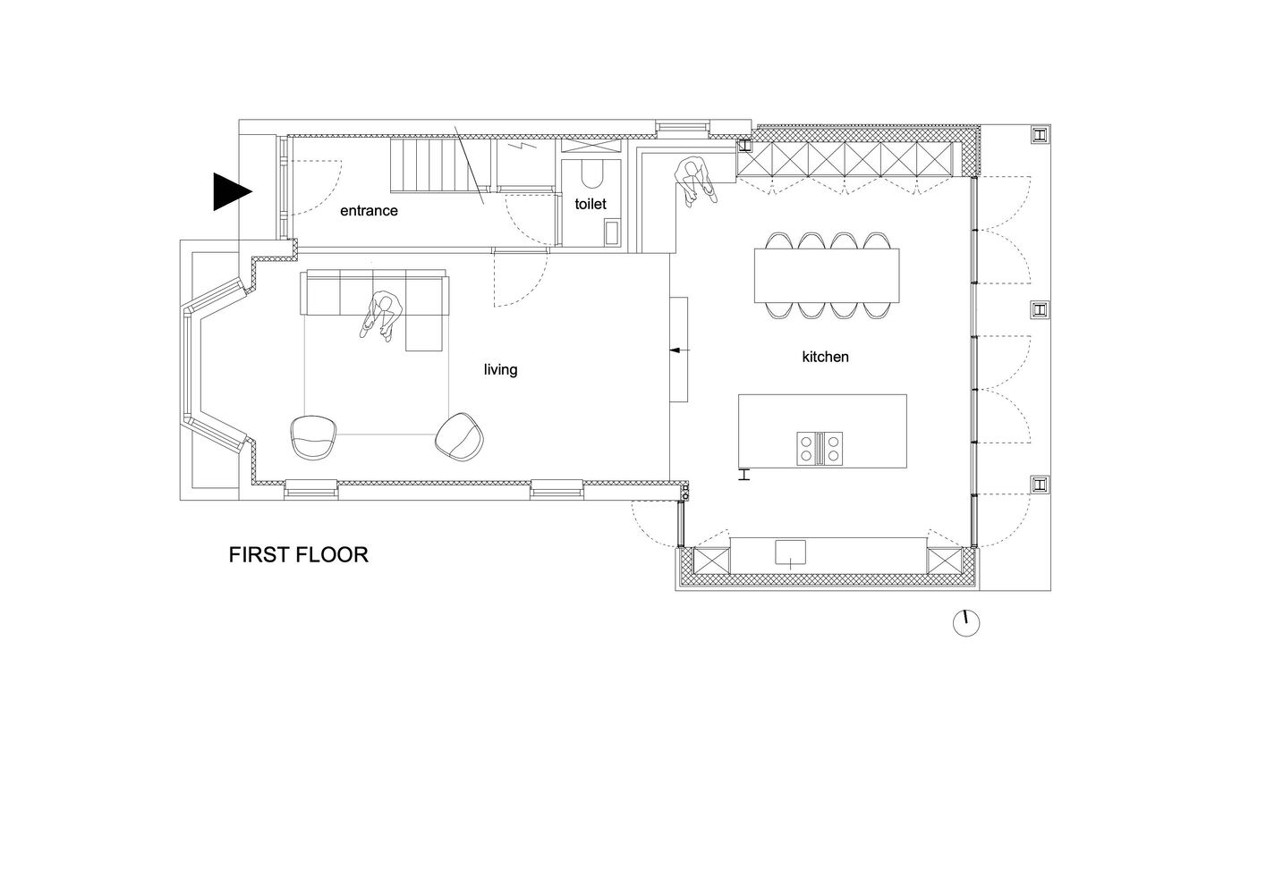
Dom KDW 199, pochodzący z 1934 roku, przeszedł kompleksową renowację i rozbudowę, której głównym celem było podniesienie efektywności energetycznej oraz zwiększenie przestrzeni użytkowej. Zachowując urok i detale architektury lat 30., projekt połączył tradycję z nowoczesnym podejściem do formy i funkcji. Kluczowym wyzwaniem było stworzenie harmonii pomiędzy historyczną strukturą budynku a nowoczesnym rozszerzeniem, które wzbogaciło bryłę o 5 metrów na każdym z trzech poziomów.

Fot. Roos Alderhoff fotografie | Arch. CUBE Architecten

Nowoczesna stodoła ukryta z tyłu

Od strony ulicy dom nadal prezentuje się w klasycznej formie, jednak z ogrodu zaskakuje nowoczesnym charakterem rozbudowy. Do jej wykończenia użyto trzech materiałów: opalanego drewna (technika Shou Sugi Ban), szkła oraz naturalnego kamienia. Dzięki opalaniu elewacji uzyskano nie tylko wyjątkowy efekt wizualny, ale również trwałość, bez potrzeby okresowego odnawiania powłoki. Idealnie zintegrowane panele słoneczne stanowią część spójnego projektu, w którym technologia i estetyka idą w parze.

Rozszerzona część domu mieści otwartą jadalnię z podłogą nieco niżej niż w salonie części pierwotnej, co wprowadza subtelną grę poziomów. Kuchnię umieszczono w grubym murze z kamienia, który wystaje poza główną bryłę, niczym nowoczesna szuflada. Przeszklone ściany, cofnięte nieco względem elewacji, tworzą werandę wspartą na trzech kolumnach, wzmacniającą atmosferę otwartości przy jednoczesnym zachowaniu kameralnego klimatu.

Fot. Roos Alderhoff fotografie | Arch. CUBE Architecten

Energooszczędność i komfort

W ramach modernizacji wykonano kompleksową izolację termiczną starej części budynku. Elewacje zostały docieplone od wewnątrz, aby nie naruszyć historycznego wyglądu zewnętrznego. Nawet schody zostały przesunięte, by umożliwić ciągłość warstwy izolacyjnej. Dach zyskał nowe płyty warstwowe spełniające aktualne normy energetyczne. W efekcie dom nie tylko zyskał na przestrzeni i estetyce, ale stał się także nowoczesnym, energooszczędnym miejscem do życia.

Rozbudowa KDW 199 to znakomity przykład, jak dawna architektura może współistnieć z nowoczesnymi rozwiązaniami projektowymi, tworząc przestrzeń harmonijną i funkcjonalną. Projekt ten stanowi inspirację dla wszystkich, którzy pragną połączyć historię z przyszłością, zachowując ducha miejsca, a jednocześnie odpowiadając na współczesne potrzeby użytkowe.