Fot. Florian Amoser | Arch. Lukas Lenherr Architektur GmbH

Dom drewniany o małymmetrażu i dużej funkcjonalności

Pośrodku wsi Jonschwil w regionie Alttoggenburg w Szwajcarii stała stara, drewniana wozownia. Dawniej znana jako „Schilte Siebni”, nawiązywała do lokalnego zwyczaju oznaczania najbardziej nieregularnie usytuowanych budynków na terenie wsi. Dziś, na rzucie kwadratu o wymiarach 6 x 6 metrów, stoi tu Kleines Haus – nowoczesny, zrównoważony i niezwykle funkcjonalny mały dom drewniany o powierzchni mieszkalnej niespełna 99 m². Ten kompaktowy budynek to doskonały przykład na to, jak może wyglądać nowoczesna stodoła w wersji minimalistycznej.

Fot. Florian Amoser | Arch. Lukas Lenherr Architektur GmbH

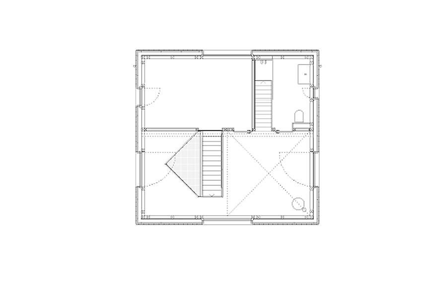
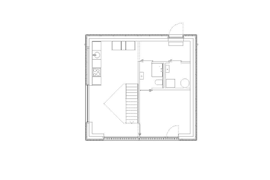
W dawną konstrukcję wozowni wpisano trzy kondygnacje mieszkalne – jedna nad drugą, z pokojami i strefami mokrymi, które tworzą pionową przestrzeń życiową o spiralnym układzie. Duże, drewniane okna otwierają dom na otoczenie i pozwalają na przenikanie naturalnego światła. Brak korytarzy i sekwencyjny układ wnętrz, inspirowany japońską architekturą, tworzy harmonijną przestrzeń bez zbędnych podziałów. Kleines Haus wykonany jest z naturalnych materiałów – drewna, włókna drzewnego i wełny owczej. Te ekologiczne komponenty gwarantują zdrowy mikroklimat oraz bardzo dobrą izolację termiczną. Dom nie jest podpiwniczony z uwagi na wysoki poziom wód gruntowych. Niewielka objętość budynku oznacza nie tylko niskie zapotrzebowanie na energię, ale również niskie koszty ogrzewania. Ciepło zapewnia piec opalany drewnem, wspomagany przez ogrzewanie podłogowe na łatwym do utrzymania podłożu.

Fot. Florian Amoser | Arch. Lukas Lenherr Architektur GmbH

Drewniana elewacja z lokalnego modrzewia oraz okna z sosny nawiązują do kontekstu historycznego miejsca. Wzór śrub na elewacji pełni funkcję estetyczną i przeciwdziała starzeniu drewna. Budynek – mimo nowoczesnego charakteru – wpisuje się w tradycję regionu i wzmacnia jego tożsamość. Dom traktowany jest jako magazyn materiałów budowlanych – większość elementów jest przykręcona, nieklejona i łatwa do demontażu. Rama kuchni została wykonana z odzyskanych części. Takie podejście wpisuje się w ideę gospodarki cyrkularnej i ponownego wykorzystania zasobów.

Fot. Florian Amoser | Arch. Lukas Lenherr Architektur GmbH

Kleines Haus oferuje komfortową przestrzeń dla czteroosobowej rodziny, a jego pionowa koncepcja mieszkalna sprzyja integracji domowników. Minimalizm, oszczędność i funkcjonalność czynią go przykładem na to, że mniej znaczy więcej – a odpowiedzialne podejście do projektowania przekłada się na zrównoważony rozwój, niskie koszty eksploatacji i niewielki wpływ na środowisko.