Fot. Matias Riveros | Arch. Viento Norte

Wiejski dom z drewnianąelewacją i nowoczesną formą

Casa MiniDV to kompaktowy dom w stylu nowoczesnej stodoły, zaprojektowany przez Viento Norte Arquitectos z myślą o harmonii z naturą i funkcjonalności. Usytuowany na działce o powierzchni 5000 m², budynek doskonale wpisuje się w wiejski krajobraz, wykorzystując naturalną linię drzew jako integralny element kompozycji.

Fot. Matias Riveros | Arch. Viento Norte

Dwuspadowy dach, minimalistyczna forma i hermetyczna elewacja od strony drogi zapewniają poczucie prywatności i wtopienie w otoczenie. W strefie użytkowej znajduje się plac manewrowy, piwnica i szklarnia, podkreślające praktyczny charakter domu.

Fot. Matias Riveros | Arch. Viento Norte

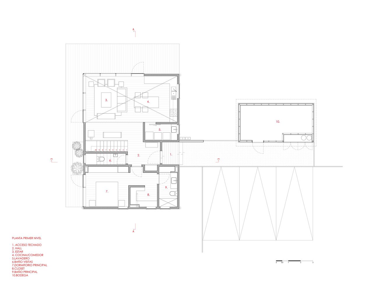
Wnętrze skupia się na otwartej przestrzeni dziennej z salonem o podwójnej wysokości, dużym narożnym oknem oraz zintegrowaną kuchnią i jadalnią. Na piętrze umieszczono pokój zabaw, a prywatne pomieszczenia zaprojektowano jako zwarte i komfortowe.

Fot. Matias Riveros | Arch. Viento Norte

Dom zbudowano na betonowym fundamencie z drewnianą konstrukcją, wykończoną białą deską sosnową. Grafitowe okna i cynkowe elewacje nadają nowoczesnego charakteru, łącząc tradycję z nowoczesnością. Casa MiniDV to idealny przykład nowoczesnej stodoły, łączącej ekologiczną architekturę, komfort życia i bliskość natury.