Fot. Beczak / Beczak / Architekci

Oinspiracji

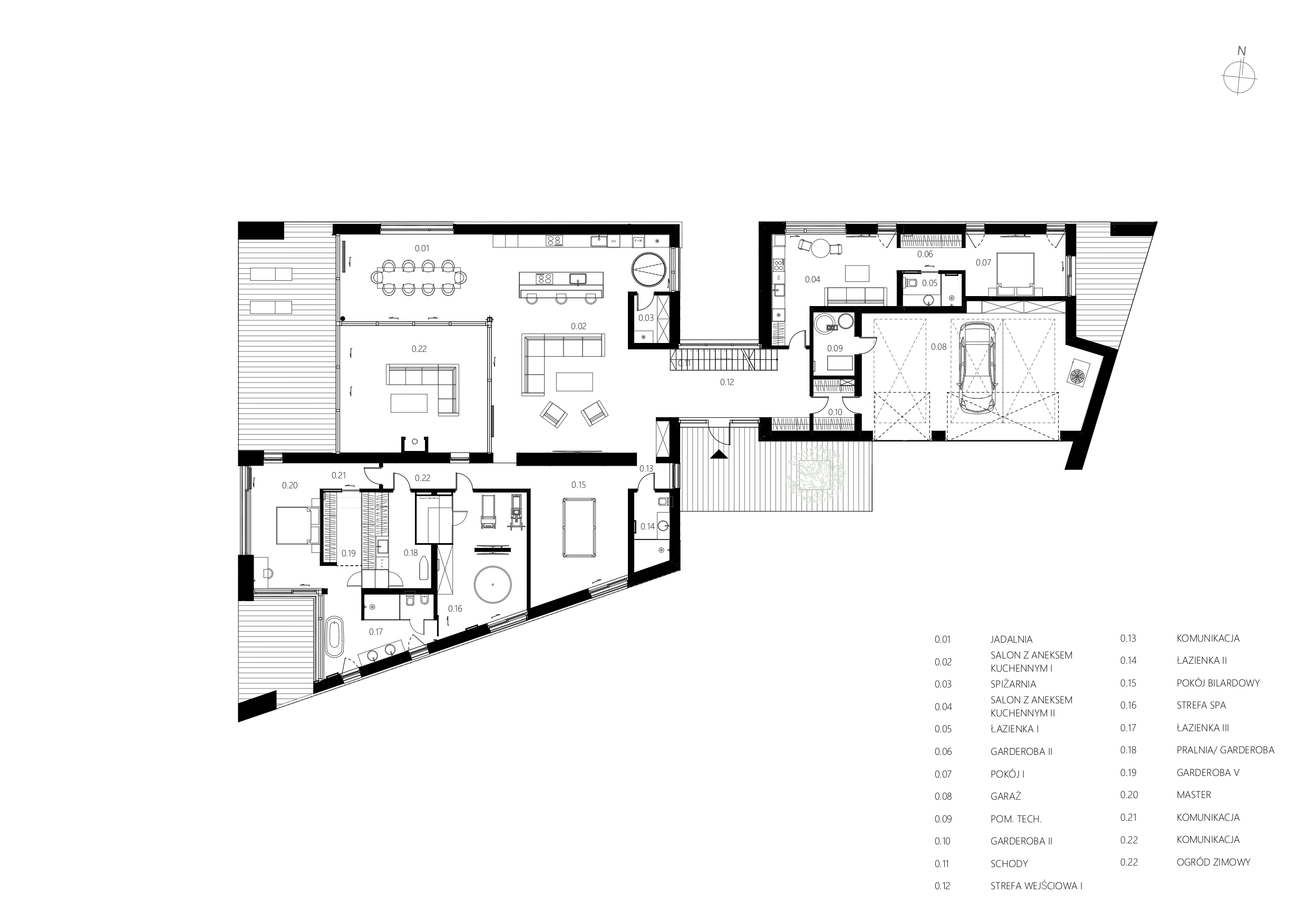
Zadaniem projektowym było stworzenie minimalistycznej, a zarazem wygodnej przestrzeni dla rodziny trzyosobowej. Parter został zaadresowany dla rodziców natomiast całe piętro stanowi przestrzeń dla dziecka. Parter został podzielony na 3 strefy: prywatną rodziców, wspólną wypoczynkową i gościnno-techniczną. Dodatkowym atrybutem w projektowaniu domu była miłość domowników do rodzinnego gotowania. Stąd piwniczka w kuchni oraz dwa miejsca w których można realizować się kuchennie. Kuchnia tradycyjna oraz kuchnia tarasowa.

Fot. Beczak / Beczak / Architekci

Dom optymalnie wykorzystuje działkę w zakresie kierunków świata i popołudniowego korzystania z uroków ogrodu. Maksymalnie upłynnia granicę pomiędzy wnętrzem domu a otoczeniem. Wzmacniające ten efekt tarasy zostały zaprojektowane na parterze oraz na piętrze a ich łączna powierzchnia powierzchnia przekracza 400m2.

Program domu to niecałe 530m2.