Fot. ARCHMONDO
  • Architekt

    ARCHMONDO
  • Lokalizacja

    Kownatki, Polska

Osiedle nadjeziorem otoczone naturą

Kownatki to powstające osiedle domów położone nad jeziorem o tej samej nazwie, w jednym z najbardziej malowniczych zakątków Mazur. Lokalizacja łączy w sobie bliskość wody i sąsiedztwo sosnowego lasu, który miejscami wdziera się na posesje domów, tworząc atmosferę spokoju i naturalnej intymności. Projekt od początku zakładał maksymalne wykorzystanie walorów krajobrazowych, tak aby przyszli mieszkańcy mogli mieszkać w bezpośrednim kontakcie z otaczającą przyrodą.

Fot. ARCHMONDO

Nowoczesna interpretacja mazurskiej tradycji

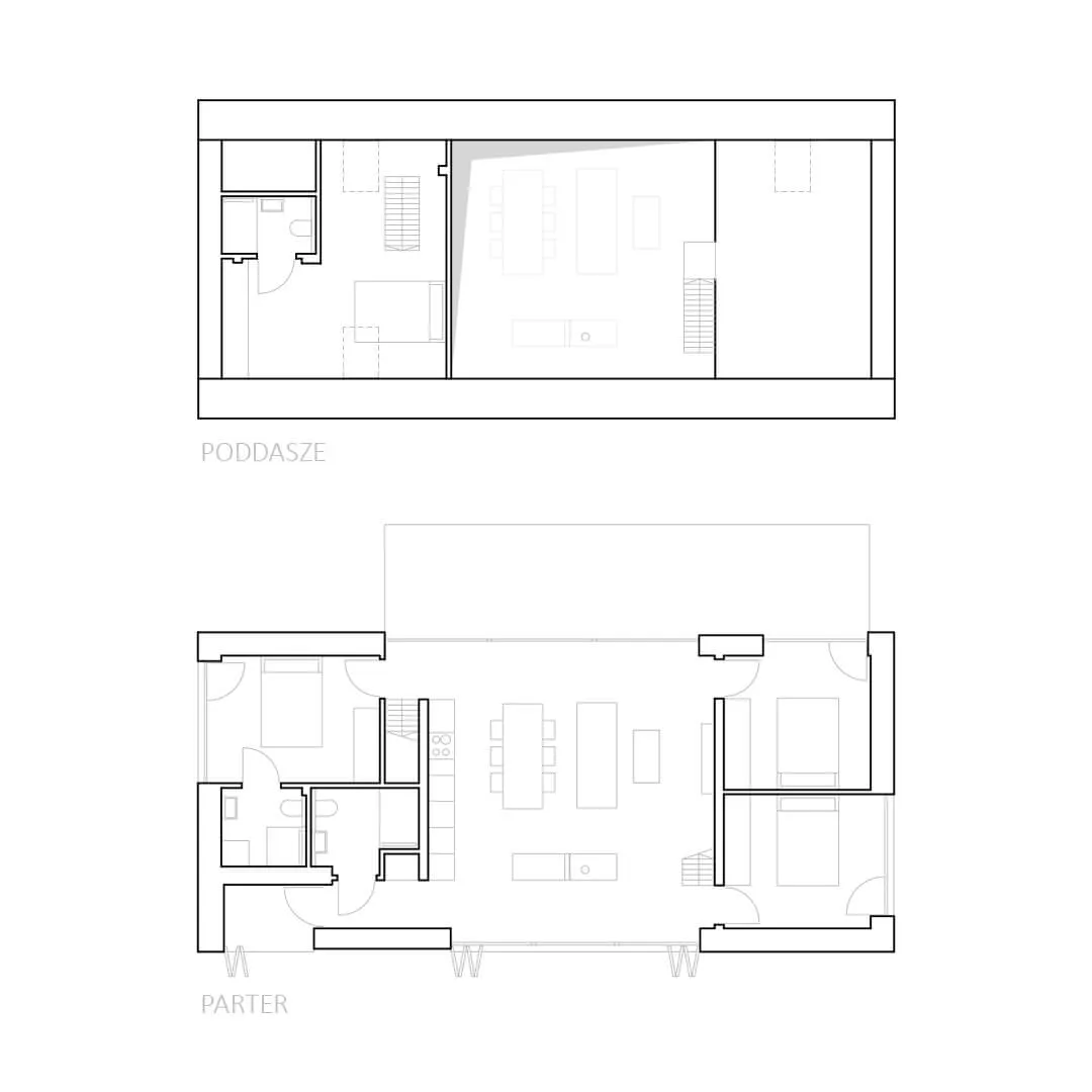
Domy zaprojektowano na prostokątnym planie z dwuspadowym dachem, co stanowi świadome nawiązanie do mazurskiej zabudowy. Architektura pozostaje jednak współczesna i oszczędna, oparta na czystych liniach i harmonijnych proporcjach. Wyróżnia ją możliwość wyboru jednej z trzech elewacji: drewnianej, betonowej lub ceramicznej. Dzięki temu osiedle zachowuje spójność formy, a jednocześnie zyskuje różnorodność, która pozwala każdemu domowi nabrać indywidualnego wyrazu.

Przenikanie wnętrz z krajobrazem

Duże przeszklenia stanowią jeden z kluczowych elementów projektu. Otwarte na jezioro, las i naturalną zieleń, zapewniają płynne połączenie wnętrza z otoczeniem. Światło słoneczne wnika do środka przez cały dzień, a widok na wodę staje się integralną częścią przestrzeni mieszkalnej. To domy, w których architektura nie dominuje nad naturą — raczej pozwala jej współtworzyć atmosferę codzienności.

Fot. ARCHMONDO

Domy całoroczne i letniskowe

Kownatki zaprojektowano jako miejsce elastyczne pod względem sposobu użytkowania. Domy mogą funkcjonować zarówno jako całoroczne, jak i rekreacyjne, dzięki czemu odpowiadają na potrzeby inwestorów poszukujących komfortowej bazy wypoczynkowej, ale także tych, którzy chcą zamieszkać na Mazurach na stałe. Przemyślane układy pomieszczeń zapewniają wygodę użytkowania o każdej porze roku.

Bogate zaplecze rekreacyjne

Atutem osiedla jest rozbudowana infrastruktura wypoczynkowa dostępna wyłącznie dla mieszkańców. Prywatna plaża z przystanią umożliwia korzystanie z uroków jeziora, natomiast korty tenisowe, boiska, place zabaw i kameralne miejsca do relaksu tworzą przestrzeń sprzyjającą aktywności i odpoczynkowi. To kompleks, który stworzono z myślą o wysokim komforcie życia oraz harmonii z naturą.

Projekt wpisujący się w potrzeby współczesnych mieszkańców

Kownatki to odpowiedź na oczekiwania osób poszukujących miejsca łączącego wygodę, architektoniczną jakość i otoczenie przyrody. Osiedle oferuje unikatowe połączenie nowoczesnych rozwiązań z naturalnym krajobrazem Mazur, tworząc przestrzeń, w której można zarówno wypoczywać, jak i budować codzienność blisko natury.