Arch. ARCHMONDO
  • Architekt

    ARCHMONDO
  • Lokalizacja

    Kownatki, Polska

Osiedle nad jeziorem zanurzonew mazurskiej przyrodzie

Kownatki to powstające osiedle domów położone nad malowniczym jeziorem o tej samej nazwie, w jednym z najspokojniejszych i najbardziej urokliwych zakątków Mazur. Sąsiedztwo sosnowego lasu sprawia, że przyroda wchodzi bezpośrednio na działki, otulając domy naturalną zielenią i tworząc atmosferę sprzyjającą wypoczynkowi. To miejsce, w którym codzienność płynie wolniej, a kontakt z naturą staje się integralną częścią życia.

Arch. ARCHMONDO

Architektura inspirowana mazurską tradycją

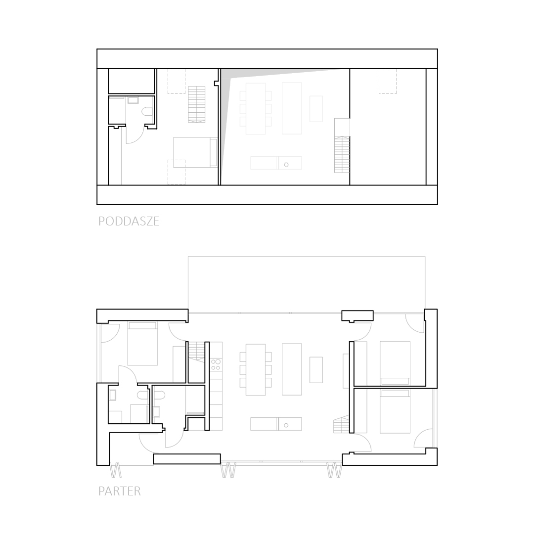
Domy zaprojektowano na prostokątnym planie z dwuspadowymi dachami — formą, która świadomie nawiązuje do tradycyjnej zabudowy regionu. Architektura pozostaje jednak współczesna, oparta na prostocie, harmonijnych proporcjach i świadomym użyciu materiałów. Każdy budynek można wykończyć w jednym z trzech wariantów elewacji: drewnem, płytami betonowymi lub ceramiką. Dzięki temu całe osiedle zachowuje spójność stylistyczną, a jednocześnie zyskuje indywidualny charakter poszczególnych domów.

Wnętrza otwarte na krajobraz

Duże przeszklenia to kluczowy element projektu, pozwalający na przenikanie się wnętrza z naturą. Otwierają one przestrzenie mieszkalne na jezioro, las i światło, tworząc niepowtarzalny klimat zmieniający się wraz z porami roku. Domy zostały zaprojektowane tak, aby mieszkańcy mogli w pełni korzystać z widoków i naturalnego doświetlenia, niezależnie od pory dnia.

Arch. ARCHMONDO

Domy całoroczne i letniskowe

Kownatki oferują elastyczność użytkowania — domy mogą pełnić rolę zarówno całorocznych rezydencji, jak i komfortowych domów letniskowych. Przemyślane układy pomieszczeń, doświetlone wnętrza i kontakt z krajobrazem zapewniają wygodę niezależnie od sezonu, odpowiadając na potrzeby osób, które chcą mieszkać w bliskości natury lub traktować osiedle jako bazę wypoczynkową.

Prywatna strefa rekreacji dla mieszkańców

Dużym atutem osiedla jest rozbudowana infrastruktura rekreacyjna dostępna wyłącznie dla mieszkańców. Prywatna plaża z przystanią umożliwia korzystanie z jeziora, a korty tenisowe, boiska, plac zabaw i kameralne strefy wypoczynkowe tworzą idealne warunki do aktywności i relaksu. To przestrzeń zaprojektowana tak, aby każdy mógł odpoczywać w sposób, który najbardziej mu odpowiada.

Mazurski azyl dla miłośników natury

Projekt Kownatki to odpowiedź na potrzeby tych, którzy poszukują harmonijnego połączenia nowoczesnej architektury, komfortu i wyjątkowo malowniczego otoczenia. Osiedle oferuje możliwość życia lub wypoczynku w bliskości jeziora i lasu, tworząc spokojne, bezpieczne i inspirujące miejsce do codziennego funkcjonowania.