Fot. Alex Shoots Buildings | Arch. Atelier 111 Architekti

Współczesny domw tradycyjnej formie

Kozina House (cz. Dům na Kozině) to przykład udanej renowacji historycznego domu w centrum południowoczeskiego miasteczka. Zaniedbana wcześniej nieruchomość zyskała drugie życie, oferując współczesną alternatywę dla podmiejskich willi, przy jednoczesnym zachowaniu lokalnego kontekstu architektonicznego.

Fot. Alex Shoots Buildings | Arch. Atelier 111 Architekti

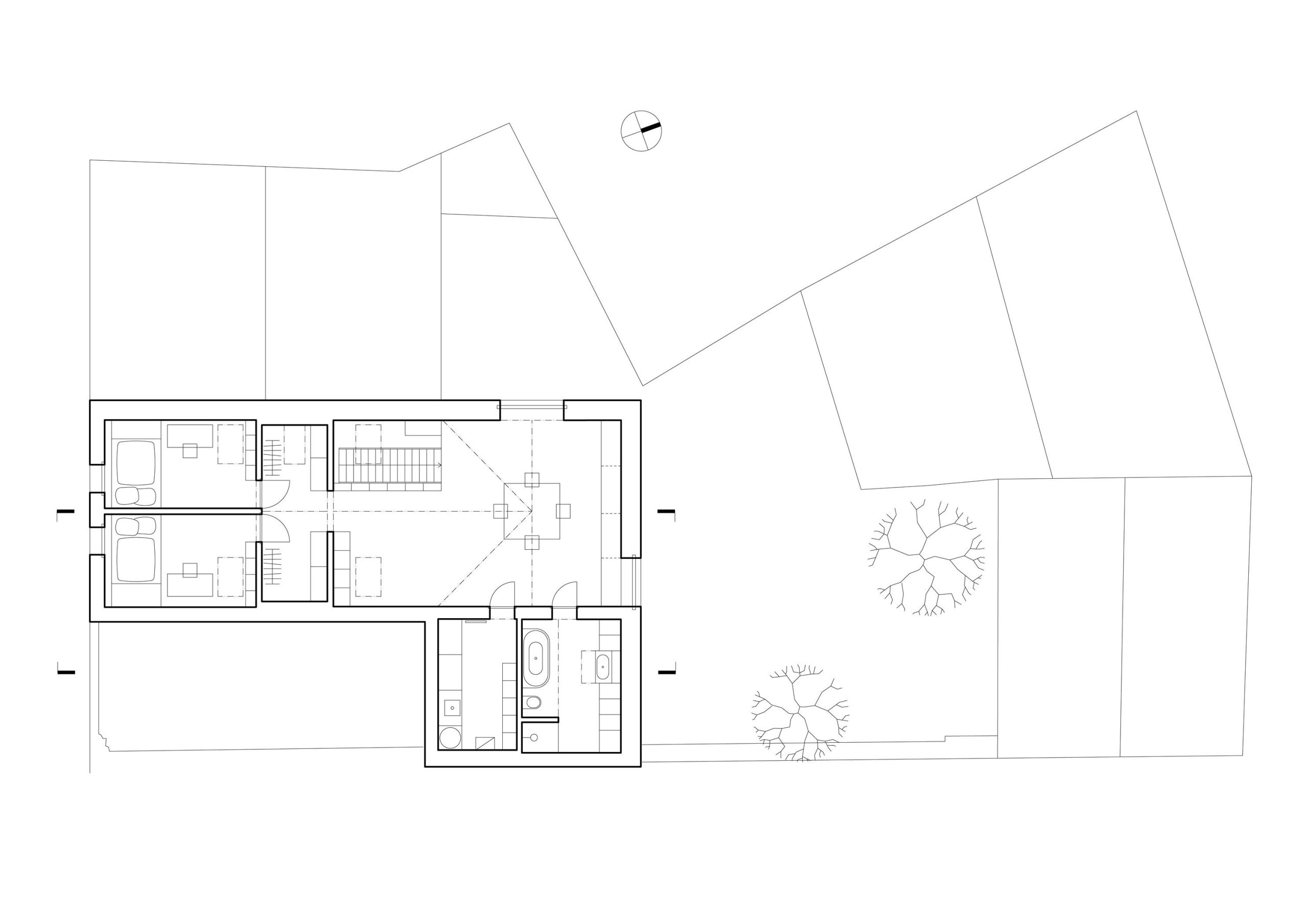
Dom powstał z połączenia dwóch sąsiadujących budynków – jeden w ruinie, drugi po nieudanej modernizacji. Architekci usunęli zbędne elementy, odsłaniając oryginalne kamienne mury, cegły i detale historyczne. Projekt zakładał poszanowanie skali, kształtu i materiałów oryginalnej zabudowy. Na ograniczonej powierzchni udało się stworzyć funkcjonalną przestrzeń mieszkalną: duży salon z tarasem, poddasze dla dzieci, sypialnię z łazienką, garaż na dwa auta, warsztat z windą samochodową oraz ogród z drzewami owocowymi.

Fot. Alex Shoots Buildings | Arch. Atelier 111 Architekti

Wnętrze dostosowano do dwóch stref wejściowych – pieszej od strony placu oraz samochodowej od zaplecza. Charakterystycznym elementem jest duże okno w szczycie elewacji, które kadruje widok na wieżę pobliskiego kościoła. Nowe otwory okienne pozostawiono minimalistyczne, by kontrastowały z tradycyjnie dzielonymi oknami historycznego budynku. Kozina House to przykład świadomej przebudowy, która łączy współczesną funkcjonalność z szacunkiem dla dziedzictwa.