Fot. Apertura Arquitectónica | Arch. Garza Camisay arquitectos

Centralnym dom z dziedzińcem imodułową konstrukcją betonową

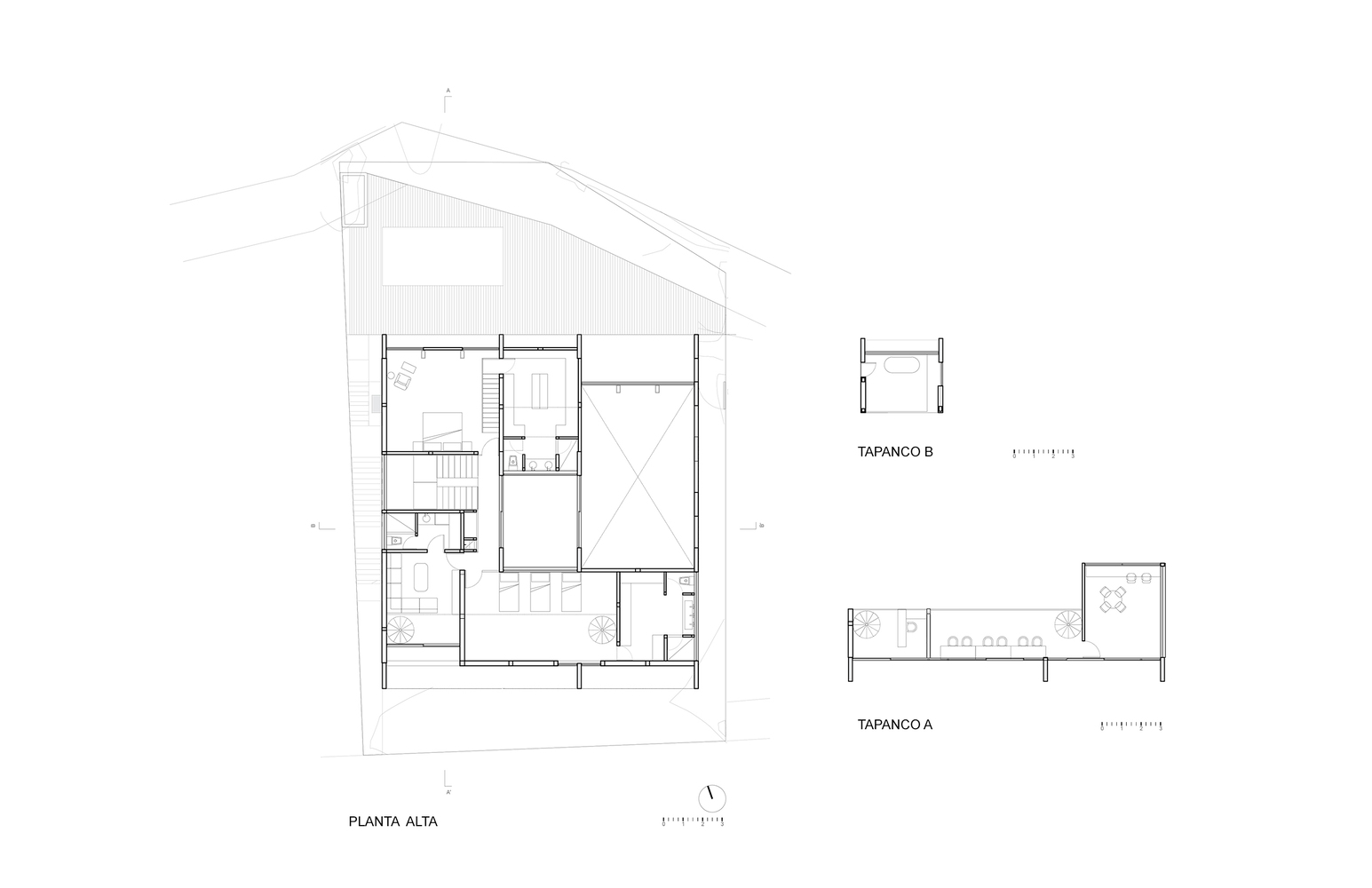
Dom, zaprojektowany jako nowoczesna stodoła, znajduje się na prostokątnej działce w sąsiedztwie innych budynków oraz małego strumyka z tyłu. Projekt w pełni wykorzystuje naturalne widoki, a jego organizacja przestrzenna ma dwa główne cele: optymalizację objętości wnętrza oraz harmonijne połączenie przestrzeni z otoczeniem. Osiąga się to dzięki optymalizacji wysokości z przodu i z tyłu budynku oraz koncentracji programu na dwóch poziomach z dodatkową antresolą jako trzecim poziomem.

Fot. Apertura Arquitectónica | Arch. Garza Camisay arquitectos

Biorąc pod uwagę wydłużony kształt działki, zaprojektowano centralny dziedziniec, który zapewnia naturalne światło oraz efektywną wentylację przestrzeni. To centralne miejsce stanowi oś, wokół której zbiegają się spadziste dachy. Różnice wysokości między środkową częścią budynku a jego krawędziami mają kluczowe znaczenie w organizacji przestrzeni: powierzchnie mieszkalne znajdują się po bokach, a obszary usługowe w centralnej części. Maksymalną wysokość budynku dostosowano do wysokości sąsiednich budynków, aby zachować estetyczną harmonię z otoczeniem.

Fot. Apertura Arquitectónica | Arch. Garza Camisay arquitectos

Betonowa konstrukcja domu ukazuje modularny porządek, z równomiernie rozmieszczonymi drewnianymi belkami na dachu, które określają wymiary pomieszczeń wewnętrznych. Podobny rytm powtórzeń widoczny jest w detalach elewacji, co podkreśla nowoczesny design. Ściana ceglana pełni funkcję granicy, dzieląc przestrzeń zewnętrzną i wewnętrzną, ale nie jest elementem nośnym. To rozwiązanie dodatkowo akcentuje nowoczesny charakter budynku, jednocześnie wprowadzając elementy klasycznej architektury w duchu nowoczesnej stodoły.