Fot. Esteban Arteaga | Arch. María Laura Cristi, Tramarquitectura

Eklektyczna nowoczesnastodoła z widokiem

Ekologiczny dom ma dwa poziomy i dwuspadowy dach, a z jednej strony opiera się na kolumnach, które wyrównują pochylony teren działki. Ze względu na swą lokalizację mieszkańcy mogą podziwiać piękne widoki na jezioro Llanquihue oraz górujące nad okolicą wulkany Osorno i Calbuco. Para prosiła architektów o uwzględnienie tych wyjątkowych widoków, które stały się priorytetem w całym procesie projektowym. Znaczenie miała też ekspozycja na słońce całego wnętrza oraz wszechstronność i przestronność pomieszczeń. Właściciele chcieli również wprowadzić w projekt odzyskane rodzime materiały budowlane oraz stare elementy, które gromadzili przez wiele lat. W tworzeniu projektu aktywnie uczestniczyła właścicielka, która sama jest artystką, a która zdecydowanie pomogła ukształtować ostateczny wygląd całej nowoczesnej stodoły, projektując w dużym stopniu jej wnętrza.

Fot. Esteban Arteaga | Arch. María Laura Cristi, Tramarquitectura

W ten sposób powstał eklektyczny projekt, który wyraźnie łączy się z tradycją regionu, krajobrazem oraz kreatywnością właścicieli. Aby spełnić wszystkie życzenia swoich klientów, architekci zaprojektowali długi dom z dwoma poziomami o powierzchni 200 m2. Stanął on na pozostałościach dawnej stodoły, wspierając się z jednej strony na betonowych plintach, które znajdują się w części niższej działki.

Fot. Esteban Arteaga | Arch. María Laura Cristi, Tramarquitectura

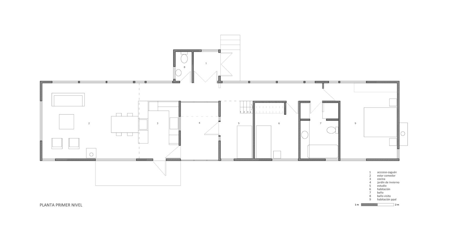
Do nowoczesnej stodoły wchodzi się od strony wschodniej, a po wejściu zaskakuje piękny, zimowy ogród o podwójnej wysokości. Ociepla on popołudniowe słońce, tworząc w domu atmosferę ciepłą i pełną życia. Ten zimowy ogród to centrum całego domu nadający wiejski charakter. Po stronie północnej urządzono przestrzenie wspólne – salon, jadalnię oraz połączoną kuchnię. Całość ogrodził balkon drugiego piętra. Bardziej prywatne pomieszczenia znajdują się w skrzydle południowym, gdzie architekci zaplanowali sypialnie, domowe biuro oraz łazienki.

Fot. Esteban Arteaga | Arch. María Laura Cristi, Tramarquitectura

Z zewnątrz dom pokryty jest oryginalną elewacją. Niebiesko-szara blacha łączy się na ścianie północnej, wschodniej i południowej z drewnem modrzewiowym pochodzącym z odzysku, które ułożono na metalowej konstrukcji w sposób skośny, która nadaje całości efekt dynamiczny.