Fot. Adam Currie | Arch. McGarry-Moon Architects

Nowoczesna stodoław kamieniu

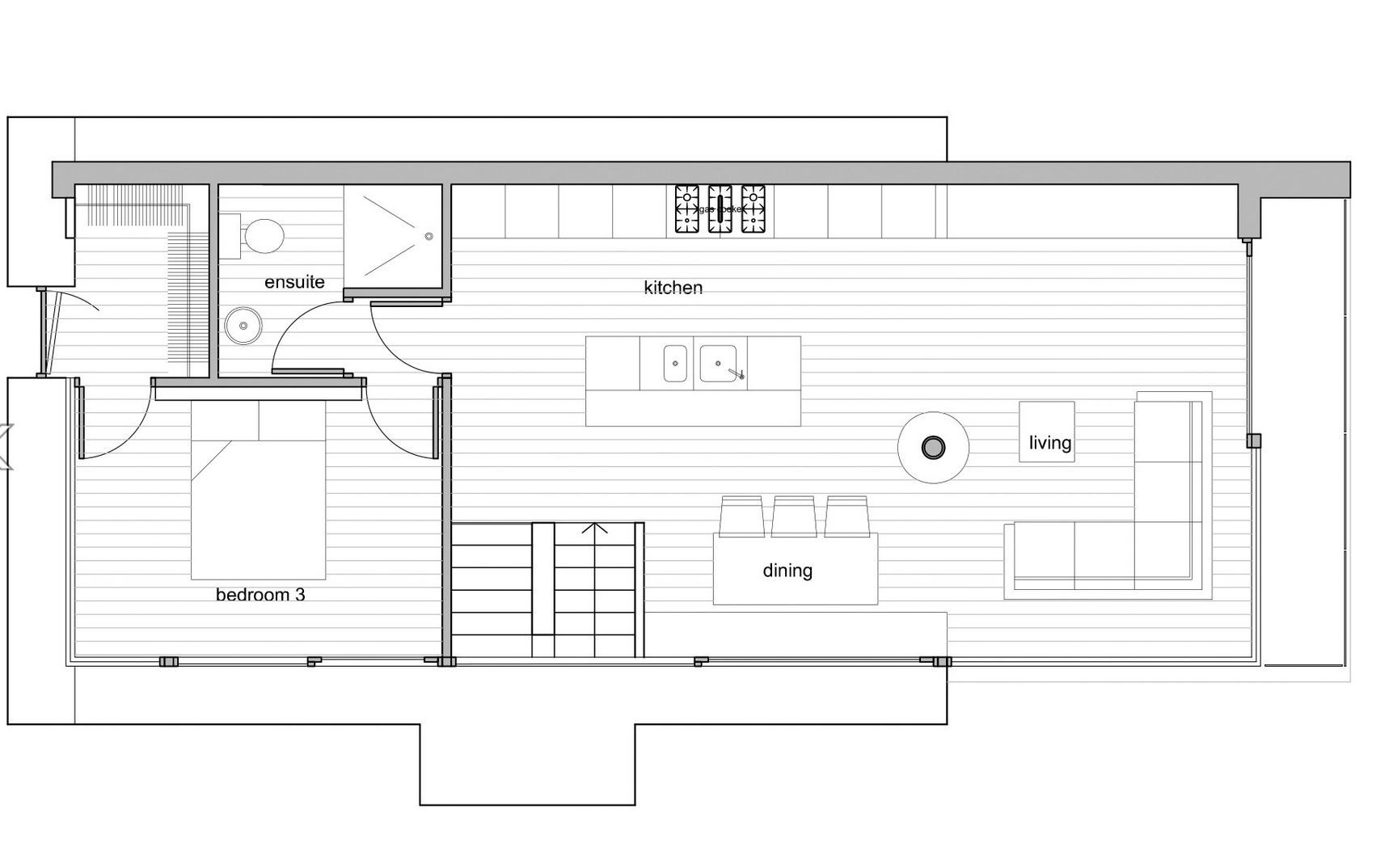
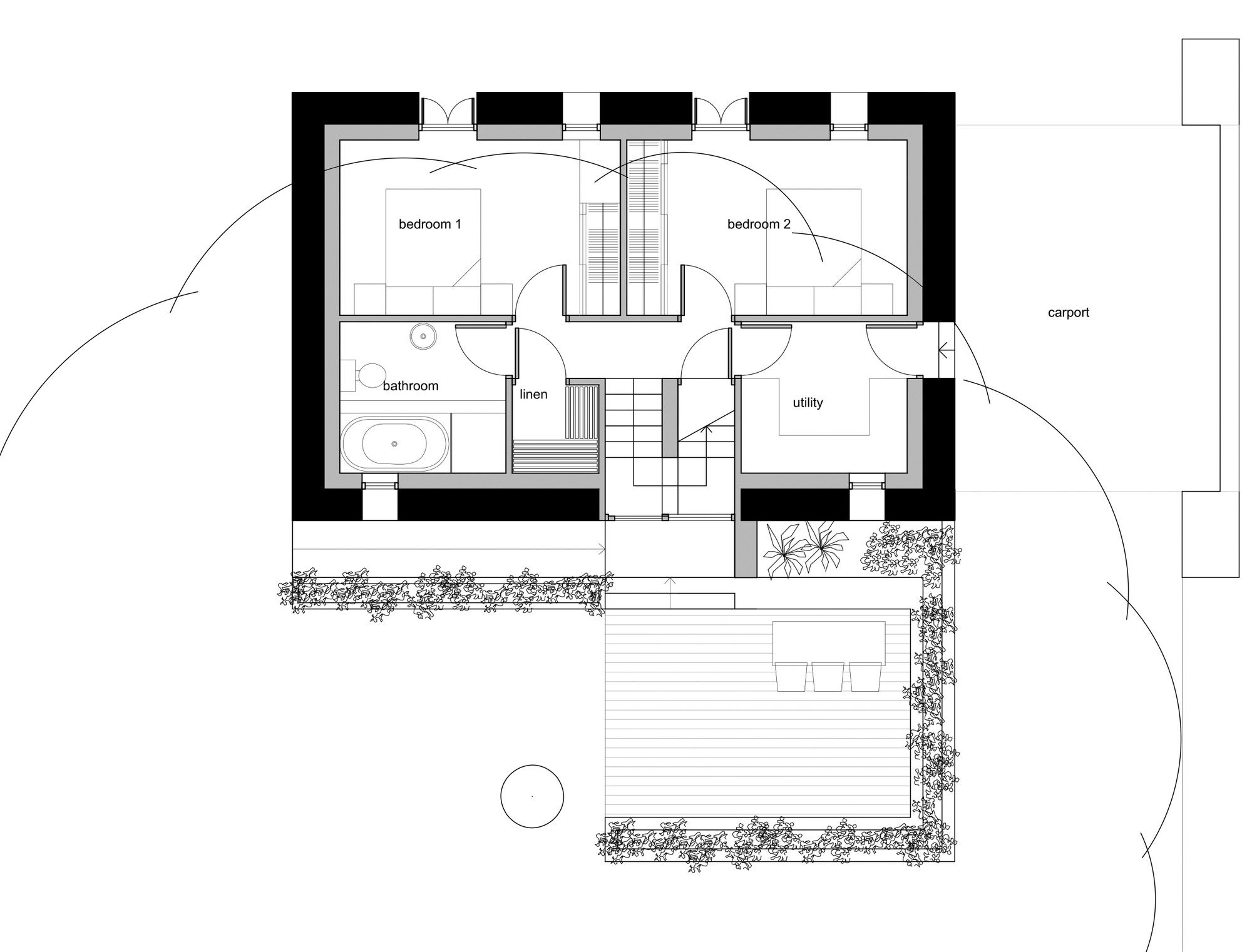
Znakomity architekt wkomponował nowoczesną stodołę w istniejącą kamienną konstrukcję, tworząc dom, który łączy styl klasyczny i nowoczesny. W przestronnej kuchni dominuje długa metalowa kolumna podporowa, a miedziane elementy i dodatki dodają wnętrzu elegancji. Duże szklane okna w kuchni pozwalają porannemu słońcu wypełniać przestrzeń blaskiem, tworząc wyjątkową atmosferę. Z przodu domu znajduje się nieduży balkon z nowoczesną szklaną balustradą, który harmonijnie dopełnia całość projektu.

Fot. Adam Currie | Arch. McGarry-Moon Architects

Pierwotnie budynek był opustoszałą, kamienną stodołą z drewnianymi drzwiami. Po wyburzeniu górnej warstwy wzniesiono stalową konstrukcję, która nadała budynkowi nowoczesny charakter i wytrzymałość.