Fot. Lorenzo Zandri | Arch. Fletcher Crane Architects

Harmonia tradycjii nowoczesności

Dom Lowater położony w samym sercu Marlow w Wielkiej Brytanii. Ten klejnot architektury, wychodzący bezpośrednio na Tamizę, to unikalny projekt z cegły obejmujący trzy różne bryły.

Fot. Lorenzo Zandri | Arch. Fletcher Crane Architects

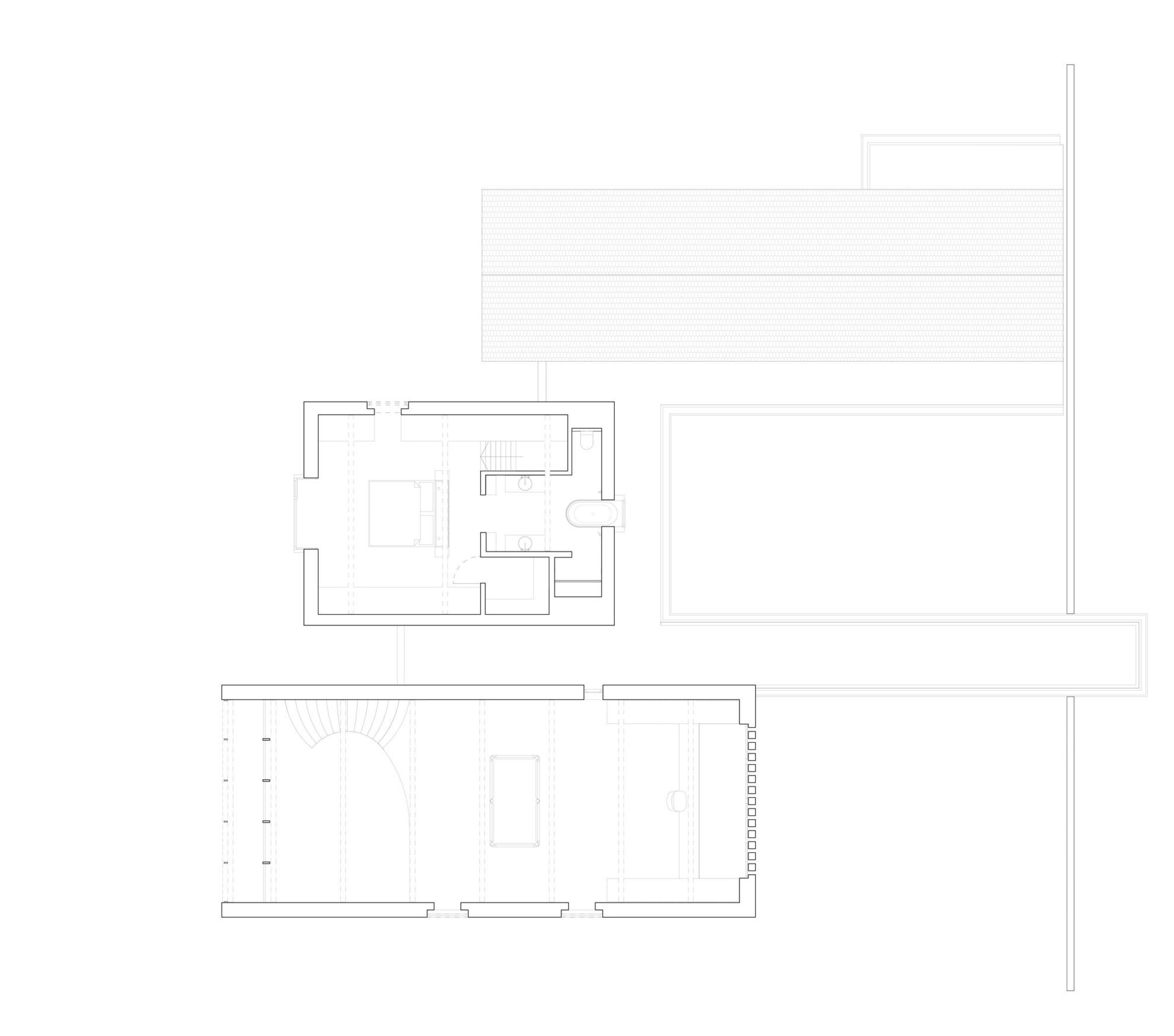
Dzięki projektowi obejmującemu rzekę i odzwierciedlającym lokalne tradycje architektoniczne Lowater oferuje spokojną przystań z dziedzińcem, który pięknie łączy przestrzeń wewnętrzną i zewnętrzną. Jest świadectwem harmonijnego połączenia z sąsiadującym kościołem i Tamizą. Ma na celu uwydatnienie lokalnego krajobrazu architektonicznego jego trwałym urokiem. Nowoczesna stodoła składa się z dwóch poziomów, podzielonych na trzy konstrukcje dwuspadowe z czerwonej cegły. Ceglana fasada głównego szczytu dodaje odrobinę dramatyzmu, częściowo ukrywając i odbijając światła. Obszar ten łączy kuchnię, salon i jadalnię pod antresolą, tworząc wrażenie przestronności. Na środkowym szczycie znajduje się salon i główna sypialnia na piętrze, natomiast w części północnej znajdują się dodatkowe sypialnie i garaż.

Fot. Lorenzo Zandri | Arch. Fletcher Crane Architects

Dzięki starannemu projektowi Lowater nie tylko szanuje swoje historyczne i naturalne otoczenie, ale także wprowadza współczesną przestrzeń życiową, która jest zarówno funkcjonalna, jak i estetyczna.