Arch. INT2 Architecture

Designerskie studiona wynajem

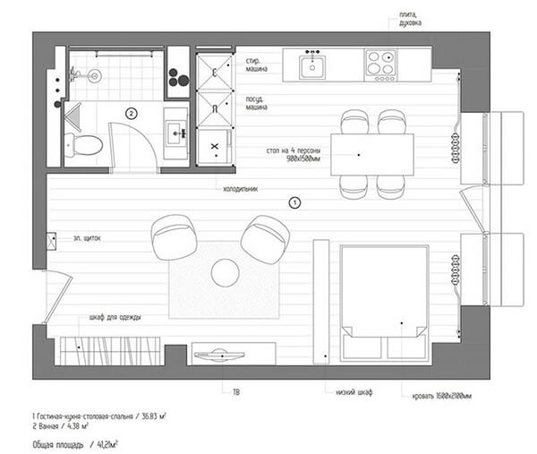
To niewielkie, ale przestronne studio w Moskwie zostało zaprojektowane specjalnie na wynajem, łącząc funkcjonalność z atrakcyjnym designem. Projekt zrealizowano przy stosunkowo niskim budżecie, jednak efekt końcowy jest w pełni profesjonalny i designerski. Inspiracją była surowa prostota, która pozwoliła uzyskać efekt minimalistycznej nowoczesnej stodoły w miejskim kontekście, zachowując jednocześnie przestronność i komfort użytkowania.

Arch. INT2 Architecture

Wnętrze studia wyróżnia się industrialnym charakterem – ściany zostały pomalowane bez gładzi, sufity wykonano z betonu, a podłogi z malowanego drewna. Dominującym materiałem jest metal, obecny w meblach, szafkach i stołach ze stali nierdzewnej, a także w półkach i detalach spawanych. Niepowtarzalny charakter wnętrza podkreślają różnorodne elementy pochodzące z pchlich targów i aukcji internetowych, takie jak cztery różne krzesła w jadalni czy industrialna podstawa pod umywalkę w łazience, co tworzy spójną koncepcję miejskiej, nowoczesnej stodoły.

Arch. INT2 Architecture

Pomimo że styl tego studia jest mocno surowy, rozwiązania zastosowane w projekcie sprawdzają się idealnie w kontekście krótkoterminowego wynajmu. Przemyślany układ funkcjonalny, trwałe materiały i minimalistyczny design tworzą przestrzeń, która jest jednocześnie atrakcyjna wizualnie i praktyczna. To przykład nowoczesnej stodoły przeniesionej w miejską przestrzeń, gdzie prostota i industrialne elementy spotykają się z komfortem użytkowania.