Fot. Benjamin Benschneider | Arch. SkB Architects

Nowoczesna przestrzeńdo wypoczynku i rozrywki

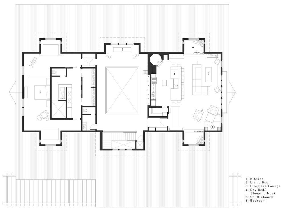
Zaczęło się od potrzeby stworzenia prostej stodoły w sadzie w rejonie Manson w amerykańskim stanie Waszyngton, ale początkowy zamysł ewoluował i ostatecznie powstało coś znacznie większego. Architekci firmy SkB Architects stworzyli budynek, który po renowacji jest nie tylko stodołą, ale też domem wakacyjnym i miejscem rozrywki. To wszystko w otoczeniu nowoczesnych udogodnień i zachwycających widoków.Działka o powierzchni blisko 5 hektarów leży w środkowej części stanu Waszyngton. Architekci inspirowali się rysunkami swych klientów tworząc dużą stodołę o powierzchni prawie tysiąca metrów kwadratowych. Na parterze znalazła się strefa rozrywki z doskonale wyposażoną kuchnią i miejsce do przechowywania sprzętu potrzebnego w sadzie. Poniżej jest piwnica na wino, a na poziomie wyższym urządzono pokoje dzienne i sypialnie dla gości.

Fot. Benjamin Benschneider | Arch. SkB Architects

Budynek ma hybrydową formę dachu, ponieważ opiera się na tradycyjnym kształcie dachu dwuspadowego, ale ma dodatkowe elementy, takie jak okna mansardowe, czy dodatkowe załamania. Duże okna mansardowe pozwalają przełamać wielkość budynku, zwiększają ilość światła, jaka wpada do wnętrza oraz zapewniają większą przestrzeń w pokojach gościnnych, które znajdują się na piętrze.

Fot. Benjamin Benschneider | Arch. SkB Architects

Duże, przesuwne drzwi otwierają się po obu stronach budynku, by zachęcić gości i domowników do stworzenia bliższych relacji z krajobrazem. Drzwi garażowe znajdujące się w każdym „skrzydle” budynku dodatkowo wzmacniają więzi wnętrza z otoczeniem.

Fot. Benjamin Benschneider | Arch. SkB Architects

Z zewnątrz budynek obłożony jest barwionym na czarno drewnem, które z czasem będzie lekko płowiało i nabierało mniej ostrej barwy, by w końcu wmieszać się idealnie w otaczającą dom okolicę. Jak mówi projektant Kyle Gaffney: „Pokazaliśmy klientowi kilka czarnych stodół, które stawały się bardziej częścią samego sadu, niż stanowiły osobny obiekt. Drzwi na parterze i piętrze są jednak pomalowane lakierem bezbarwnym, by zapewniały ożywczy kontrast.”

Fot. Benjamin Benschneider | Arch. SkB Architects

Wewnątrz parter to w zasadzie jedna, ogromna przestrzeń otwarta, która świetnie nadaje się do organizacji imprez lub przechowywania samochodów z kolekcji zabytkowych pojazdów właściciela. Duża kuchnia wyposażona jest nawet w profesjonalny piec do pizzy stanowi dobrą równowagę dla komercyjnej wielkości budynku. Kuchnia oraz sąsiadujący z nią salon otwierają się na ogromne zewnętrzne patio.

Fot. Benjamin Benschneider | Arch. SkB Architects

Trzypoziomowa klatka schodowa ma drewniane stopnie, które łączą trzy poziomy budynku. Patrząc w górę można podziwiać dwadzieścia cztery odsłonięte belki drewniane, które przyczyniają się do bardziej industrialnego wyglądu wnętrza. Belki wspierają się na stalowych uchwytach, które dodatkowo wzmacniają taki efekt.