Nowoczesny dom parterowy
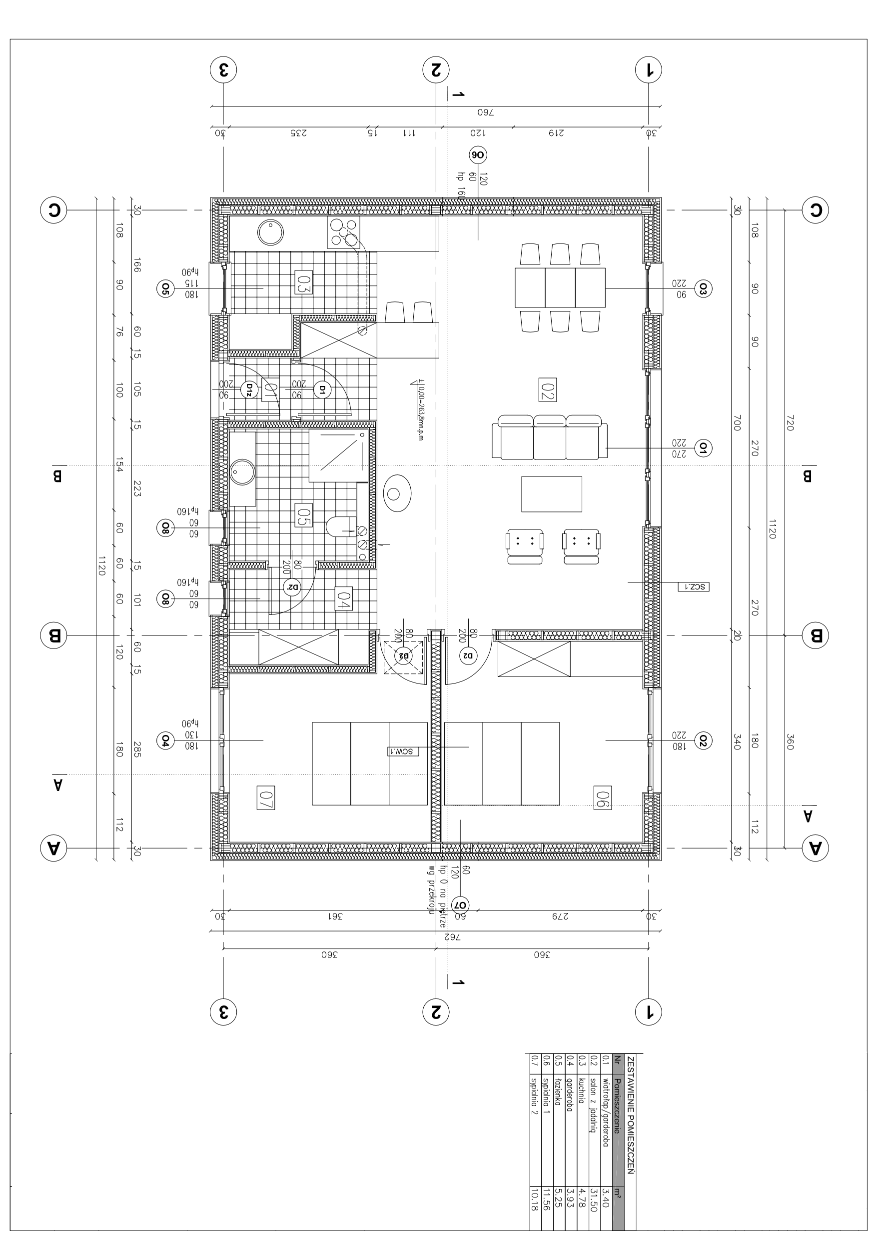
Kompaktowy dom parterowy o powierzchni 70 m², inspirowany stylem nowoczesnej stodoły. Prosta, minimalistyczna bryła oraz funkcjonalny układ zapewniają komfort codziennego użytkowania. Strefa dzienna to kuchnia oraz salonem z jadalnią, z dużymi przeszkleniami prowadzącymi na taras i ogród. Część prywatna obejmuje dwie sypialnie, łazienkę oraz garderobę. Wejście do domu prowadzi przez praktyczny wiatrołap. Dom łączy nowoczesną estetykę z ekonomicznymi rozwiązaniami, idealny dla osób ceniących prostotę, funkcjonalność i bliskość natury.
Projekt pokazuje, jak na niewielkim metrażu można stworzyć dom, który jest jednocześnie uporządkowany, jasny i wygodny w codziennym użytkowaniu. Prosta bryła, duże przeszklenia i czytelny podział na strefę dzienną oraz prywatną sprawiają, że przestrzeń „pracuje” z naturalnym światłem i otoczeniem. To dom zaprojektowany bez nadmiaru — skupiony na funkcjonalności, proporcjach i spokojnej relacji z ogrodem.
