36,6 m², które redefiniuje skalę komfortu
Minimalistyczna bryła, naturalne drewno i imponujące, dwukondygnacyjne przeszklenie od strony ogrodu. MDDOM 41 to kompaktowy dom, który pokazuje, że komfort nie jest funkcją metrażu, lecz proporcji i światła.
Skala, która zaskakuje
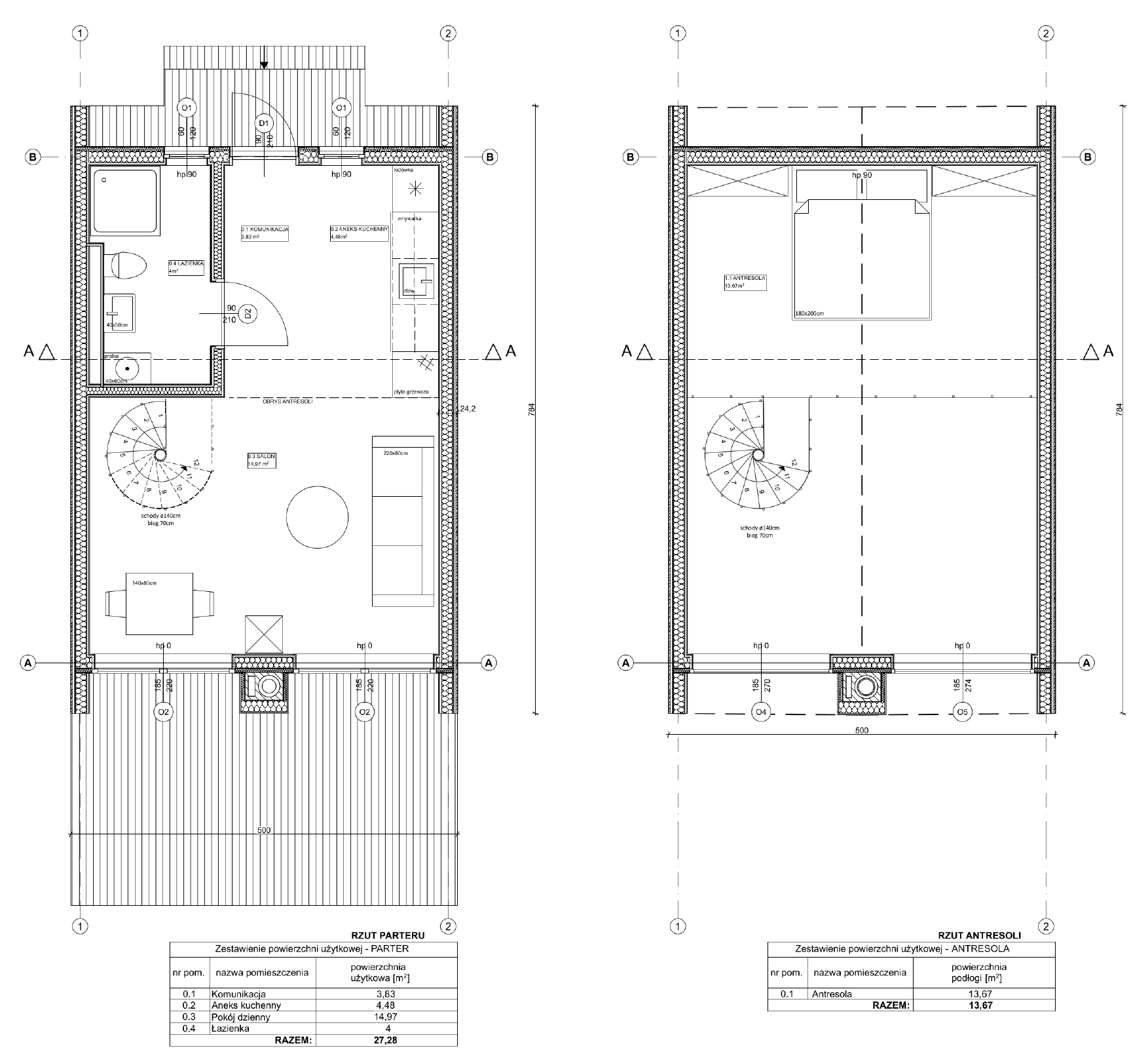
Powierzchnia użytkowa wynosi 36,6 m², a powierzchnia po podłodze 40,95 m² . To liczby, które sugerują niewielki obiekt. W praktyce jednak wysoki sufit i panoramiczne okno budują przestrzeń wizualnie znacznie większą. Ogród staje się naturalnym przedłużeniem wnętrza, a światło pełni rolę głównego materiału architektonicznego.
Przemyślany układ funkcjonalny
Wnętrze zaplanowano w sposób maksymalnie czytelny:
- jasny salon z aneksem kuchennym,
- komfortowa łazienka,
- wydzielona komunikacja,
- antresola pełniąca funkcję sypialni
Antresola wprowadza wyraźny podział stref dziennej i nocnej bez potrzeby zwiększania powierzchni zabudowy. To rozwiązanie racjonalne, a jednocześnie efektowne przestrzennie.
Zwarta bryła, realna efektywność
MDDOM 41 opiera się na zwartej, energooszczędnej formie. Ograniczona kubatura sprzyja optymalizacji kosztów budowy i późniejszej eksploatacji. Naturalne drewno podkreśla ponadczasowy charakter architektury i wpisuje dom w krajobraz – niezależnie od lokalizacji.
Dla kogo?
To propozycja dla singla lub pary, jako pierwszy dom, całoroczny domek rekreacyjny albo świadomie zaplanowana inwestycja pod wynajem. Model odpowiada na rosnącą potrzebę budowania mądrzej – bez nadmiaru, z koncentracją na jakości przestrzeni.
MDDOM 41 udowadnia, że 36,6 m² może wystarczyć, jeśli każdy metr ma jasno określoną rolę.
To architektura, w której forma wynika z funkcji, a światło staje się kluczowym elementem kompozycji.
